- N E U B A U
- ein Reihen-M I T T E L haus
- in T E C H N I K F E R T I G (d.h. alle Anschlüsse sind vorhanden, Strom und Wasser)
- Sie machen noch die Fliessen und die Sanütärobjekte, kaufen und einbauen und die Innentüren ebenfalls, so wie die Tapeten der Wände
- SCHLÜSSELFERTIG möglich ( Aufpreis von 50T€)
- Effizienzhaus 40
- Satteldach mit 45 ° Dachneigung (also 35 m² Reserve, zum späteren Ausbau vorhanden)
- Grundstück im Angebot inklusive (Anteil von 232 m² für 195.000,-€)
- inkl. Bodenplatte
- inkl. Belüftungsanlage
- Luftwasserwärmepumpe mit Fußbodenheizung
- 3-fach verglaste Kunststofffenster
- inkl. elektrischer Rollläden
- 7 m x 9 m
Abriss bereits erledigt, anteilig jeder Käufer 25.000,--€ Abrisskosten.
DETAILBESCHREIBUNG:
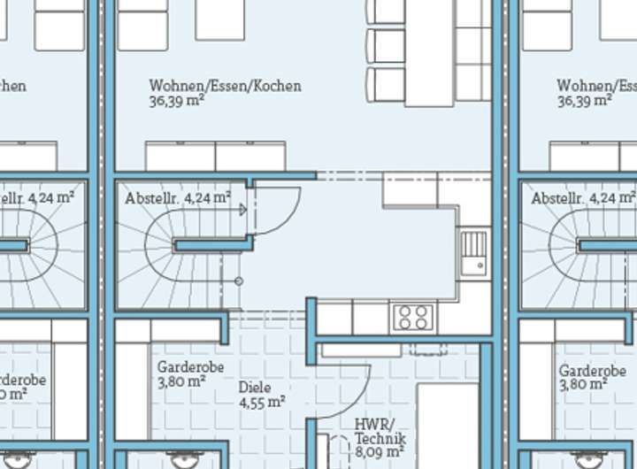
Im EG liegt der großzügige, lichtdurchflutete Mittelpunkt des Hauses mit einem Wohnbereich von über 32 m², mit 2 Fenstern und einer großen Tür in den Garten, inkl. offener Küche.
Zusätzlich bietet das EG eine Diele, eine Garderobe, Stauraum unter der Treppe, einen HAR/HWR und ein Gäste-WC.
Im Obergeschoss befinden sich 2 helle Kinderzimmer mit bodentiefen Fenstern. (je ca. 11,5 m²)
Das Bad hat einen Leiterheizkörper, ein Waschbecken, eine Toilette, eine bodengleiche Dusche und ein Fenster sorgt für viel Helligkeit.
Das Elternschlafzimmer ist gut geschnitten (13 m²), hat auch 1 bodentiefes Fenster und genügend Stellfläche für Ihre Schränke.
Satteldach mit 45 ° Dachneigung
- d.h. zum späteren Ausbau möglich (gegen Aufpreis von 89 T€)
Dieses Haus verfügt über eine Luftwasserwärmepumpe mit Fußbodenheizung.
Abbildung zeigt Sonderausstattung, die nicht inklusive ist!
Änderungen können zu Mehrpreisen führen.
Nicht im Angebot enthaltene Kosten:
Grundstücksnebenkosten ca. 13,95% (Courtage, Notar und Grunderwerbssteuer).
Baunebenkosten (Erdarbeiten + Hausanschluss) circa 40- 45 T€.
Rufen Sie gleich an und vereinbaren Sie noch heute einen Beratungstermin in unserem Musterhaus Bad Vilbel - Platz 8
Wir übernehmen den Eintritt und freuen uns auf Sie.
MIT Eigenleistungen, Mittelhaus in HG mit Süd-West Garten
61352 Bad Homburg vor der Höhe
Die vollständige Adresse der Immobilie erhalten Sie vom Anbieter.
Auf Karte anzeigen
Die vollständige Adresse der Immobilie erhalten Sie vom Anbieter.
Finanzierungszertifikat
In nur zwei Minuten zu Ihrem persönlichen Finanzierungszertifkat.
Infos
| Haustyp | Reihenmittelhaus |
|---|---|
| Etagenzahl | 2 |
| Wohnfläche ca. | 110 m2 |
| Nutzfläche | 6 m2 |
| Grundstücksfläche | 232 m2 |
| Zimmer | 4 |
| Anzahl Garage/Stellplatz | 2 |
Kosten
| Kaufpreis |
549.000 € |
|---|---|
| Provision |
5,95 % 5,95% inkl. 19% MwSt. nur vom Grundstückspreis |
Finanzierungsrechner:
Kaufpreis:
600.000 €
Eigenkapital:
600.000 €
Monatliche Rate
0 €
Effektiver Jahreszins
0 %
Sollzinsbindung
10 Jahre
Bausubstanz & Energieausweis
| Baujahr | 2026 |
|---|---|
| Bauphase | Haus in Planung (projektiert) |
| Objektzustand | Erstbezug |
| Qualität der Austattung | Gehoben |
| Heizungsart | Wärmepumpe |
| Wesentliche Energieträger | Strom |
| Energieausweis | liegt vor |
| Energieausweistyp | Verbrauchsausweis |
| Energieverbrauchskennwert | 40,0 kWh/(m²*a) |
| Energieeffizienzklasse | A |
40,0
kWh/(m²*a)
Energieeffizienzklasse A
- A+
- A
- B
- C
- D
- E
- F
- G
- H
- 0
- 25
- 50
- 75
- 100
- 125
- 150
- 175
- 200
- 225
- >250
Beschreibung des Objekts
Ausstattung
Reihen-M I T T E L-haus 110
Viel Wohnraum auf möglichst wenig Baugrund schaffen – ein Reihenmittelhaus ist dafür eine optimale Lösung.
Unseren Vorschlagsentwurf das Reihenmittelhaus 110 zeigen wir als sogenannten Dreispänner.
Der Erdgeschossgrundriss ist offen gestaltet und zur Gartenseite hin mit einer großen, bodentiefen Verglasung ausgestattet. So wirkt das Haus großzügig und hell – auch das Mittelhaus, bei dem die Belichtung über die Giebelflächen entfällt.
Im Eingangsbereich entsteht durch die große Garderobe gleich nach dem Gäste-WC ein besonders offenes Raumgefühl. Hier ist unter der Treppe ausreichend Stauraum vorhanden.
Im Obergeschoss ist der Flur zugunsten der Zimmer effektiv geplant.
In einer Nische im Familienbad ist Platz für die Waschmaschine.
So bleibt die Wäsche gleich dort, wo sie anfällt. Bei unserer Planungsvariante 1 mit Satteldach steht über dem Obergeschoss ein Spitzboden zur Verfügung, der zusätzlichen Stauraum bietet, aber auch gleich oder später ausgebaut werden kann:
35 m² mehr Wohnraum möglich für nur 89 T€.
MERKMALE
DACHFORM Satteldach
DACHNEIGUNG 45°
WOHNFLÄCHE 101,89 m²
GRUNDFLÄCHE 110,60 m²
ANZAHL GESCHOSSE 2
Lage
Das Grundstück befindet sich direkt auf der anderen Straßenseite vom Neubaugebiet " Am Hühnerstein " im Ortsteil Ober-Erlenbach.
Bodenrichtwert hier nur bei 900€/m², gegenüber im Neubaugebiet "Hühnerstein" liegt der BRW 250€ höher pro m² !
Das Grundstück hat eine optimale Süd-West Ausrichtung.
D.h. Sie haben den ganzen Tag Sonne im Garten !
Das Haus steht hinten, der Garten ist vorne.
Wir haben hier ein Baufenster von 7 m (Front) x 9 m (Tiefe).
In unmittelbarer Nähe befinden sich:
- Einkaufmöglichkeiten für den täglichen Bedarf
- Kindergarten, Kinderhort und Grundschule
- Bank
- Ärzte
- Apotheke
Sonstige Angaben
Fertighaus Vorteile:
Es ist eine grundlegende Entscheidung, ob man ein Massivhaus oder ein Fertighaus baut. Wie gut Fertighäuser wirklich sind und welche Vorteile ein Fertighaus bietet, haben wir für Sie in einer kurzen Übersicht zusammengestellt, die Ihnen die Entscheidung erleichtern soll.
Beispielsweise können bei einem Fertighaus vor der Planung und Einrichtung bereits Ausstellungshäuser besichtigt werden, was grundlegende Entscheidungen erleichtern sollte.
Zudem steht Ihnen während des gesamten Bauablaufs ein kompetenter Betreuer zur Seite, der Ihr Ansprechpartner in allen Belangen ist und somit die Bauphase für Sie enorm erleichtert.
- Fixe Baukosten
- Kurze Bauzeit
- Witterungsunabhängiges bauen (Bauen auch im Winter)
- Inspiration durch Ausstellungshäuser
- Vier unterschiedliche Ausbaustufen
- Beratung, Bau und Koordination alles aus einer Hand
- Bemusterung an einem Ort
- individuelle Architektenplanung für mehr Spielraum
- Hohe Qualität durch präzise
- Vorfertigung und jahrelange Erfahrung
- Energieeffizienz durch beste Wärmedämmung und moderne Heiztechnik
- Über 36.000 zufriedene Hanse Haus Bauherren
- Fairster Fertigungsanbieter zum 11. Mal in Folge
- Ausgezeichnetes Preis-Leistungs-Verhältnis
Weitere Dokumente
BLBGrundriss
EG Mittel
>
>
OG Mittel
>
>
Adresse
61352 Bad Homburg vor der Höhe
Interessante Orte
Preis- und Lageinformationen
Preistrend für Bestandsimmobilien in Bad Homburg vor der Höhe