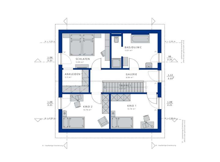
Das Bien-Zenker Haus "EVOLUTION 136" besticht durch seine elegante Satteldach-Architektur und eine durchdachte Raumaufteilung, die Ihnen und Ihrer Familie maximalen Wohnkomfort bietet. Auf einer großzügigen Wohnfläche von 136,50 m² finden Sie fünf Zimmer, die ideal für das tägliche Leben und Homeoffice-Arbeitsplätze geeignet sind. Das Erdgeschoss ist offen gestaltet und lädt zu geselligen Zusammenkünften ein, während das Obergeschoss individuelle Rückzugsorte bietet. Die geradläufige Treppe verbindet stilvoll die beiden Geschosse und macht die Diele zum Blickfang des Hauses. Dieses Zuhause bietet Platz für Ihre persönlichen Gestaltungsideen.
Grundrisse und Abbildungen können Extras zeigen. Flächenangaben nach DIN 277.
Ihr Traum von nachhaltigem Wohnen: Bien-Zenker mit KfW Fördermittel
60435 Frankfurt am Main
Die vollständige Adresse der Immobilie erhalten Sie vom Anbieter.
Auf Karte anzeigen
Die vollständige Adresse der Immobilie erhalten Sie vom Anbieter.
Finanzierungszertifikat
In nur zwei Minuten zu Ihrem persönlichen Finanzierungszertifkat.
Infos
| Wohnfläche ca. | 136 m2 |
|---|---|
| Grundstücksfläche | 400 m2 |
| Zimmer | 5 |
Kosten
| Kaufpreis |
870.000 € |
|---|
Finanzierungsrechner:
Kaufpreis:
600.000 €
Eigenkapital:
600.000 €
Monatliche Rate
0 €
Effektiver Jahreszins
0 %
Sollzinsbindung
10 Jahre
Bausubstanz & Energieausweis
| Baujahr | unbekannt |
|---|
Beschreibung des Objekts
Ausstattung
In Ihrem künftigen Zuhause erwarten Sie zahlreiche Komfortdetails, die den Alltag bereichern. Die fünf Zimmer sind optimal aufgeteilt und bieten Platz für die ganze Familie und Gäste. Ein lichtdurchflutetes Wohnzimmer lädt zum Entspannen ein, und die durchdachte Raumaufteilung schafft eine harmonische Verbindung zwischen den Bereichen. Im Obergeschoss stehen Ihnen großzügige Räume zur Verfügung, die sich perfekt an Ihre Bedürfnisse anpassen lassen. Die Verbindung von Stil und Funktionalität macht Ihr Zuhause zu einem Ort des Wohlfühlens.
Das Haus bietet ausreichend Stauraum und praktische Details wie Abstellräume, die für Ordnung sorgen. Eine Terrasse kann Teil des Außenbereichs sein, die Ihnen die Möglichkeit gibt, die Natur zu genießen. Diese Elemente erweitern den Wohnraum und schaffen eine harmonische Verbindung zwischen Innen- und Außenbereich.
Mit der gewählten Ausbaustufe übernehmen wir den Rohbau und den technischen Innenausbau, während Sie sich um Bodenbeläge, Malerarbeiten und Sanitärinstallationen kümmern können. So profitieren Sie von einem hohen Maß an Eigenverantwortung und den Vorteilen des staatlichen Qualitätssiegels QNG für nachhaltiges Bauen. Bringen Sie Ihre persönlichen Vorstellungen ein, während wir Ihnen ein Fundament für ein energieeffizientes und wohngesundes Zuhause bieten.
Lage
Frankfurt am Main bietet Ihnen eine hervorragende Lebensqualität und zahlreiche Annehmlichkeiten direkt vor der Haustür. In unmittelbarer Nähe finden Sie Bildungseinrichtungen, von Kindergärten über Schulen bis hin zu Hochschulen, die exzellente Lernmöglichkeiten für Ihre Kinder bieten. Auch Gesundheitsdienstleister sind zahlreich vertreten, sodass Ihre Familie bestens versorgt ist.
Die Einkaufsmöglichkeiten sind vielfältig und leicht erreichbar: Supermärkte, Fachgeschäfte und Einkaufszentren bieten alles für den täglichen Bedarf. Für Ihre Freizeit stehen Ihnen Parks, Sporteinrichtungen und kulturelle Angebote zur Verfügung, die keine Wünsche offenlassen.
Die Anbindung an den öffentlichen Personennahverkehr ist optimal, sodass Sie schnell und bequem die Innenstadt und andere Stadtteile erreichen. Auch die Autobahn ist in wenigen Minuten erreichbar und bietet Ihnen eine ausgezeichnete Verbindung zu umliegenden Städten und Regionen. Hier leben Sie in einem Umfeld, das urbanen Lebensstil und Rückzugsmöglichkeiten in der Natur vereint.
Sonstige Angaben
Profitieren Sie von KfW Fördermitteln für QNG zertifizierte Bien-Zenker Häuser.
Adresse
60435 Frankfurt am Main
Interessante Orte
Preis- und Lageinformationen
Preistrend für Bestandsimmobilien in Berkersheim