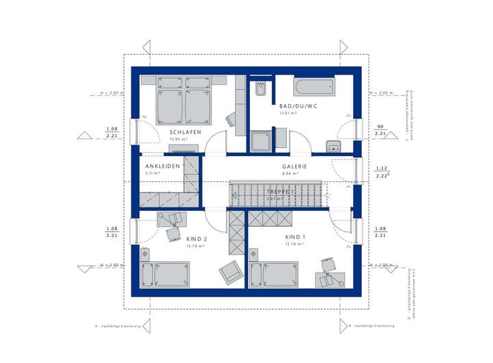
Das Bien-Zenker EDITION 145 beeindruckt mit einem eleganten und unaufdringlichen Erscheinungsbild, das sich harmonisch in ländliche und urbane Wohngebiete einfügt. Mit einer großzügigen Wohnfläche von 145,72 m² und fünf Zimmern bietet dieses Fertighaus ein durchdachtes Raumkonzept, das sowohl stilvolles Wohnen als auch hohen Wohnkomfort vereint. Im Erdgeschoss erwartet Sie ein offener Wohn-, Ess- und Kochbereich, der zum Verweilen und Kommunizieren einlädt. Hier findet die Familie einen zentralen Ort, um gemeinsame Zeit zu verbringen und das Leben zu genießen. Im Obergeschoss laden gemütliche Privaträume und ein helles Homeoffice dazu ein, sich zurückzuziehen und die Ruhe zu genießen. Dieses durchdachte Raumkonzept fördert eine angenehme Raumwirkung, in der sich jeder Bewohner wohlfühlen kann, ganz gleich, ob es sich um eine Familie, Paare oder Singles handelt.
Grundrisse und Abbildungen können Extras zeigen. Flächenangaben nach DIN 277.
Bien-Zenker EDITION 145 - Ihr individuelles Zuhause in Klein Auheim
63456 Hanau
Die vollständige Adresse der Immobilie erhalten Sie vom Anbieter.
Auf Karte anzeigen
Die vollständige Adresse der Immobilie erhalten Sie vom Anbieter.
Finanzierungszertifikat
In nur zwei Minuten zu Ihrem persönlichen Finanzierungszertifkat.
Infos
| Wohnfläche ca. | 145 m2 |
|---|---|
| Grundstücksfläche | 398 m2 |
| Zimmer | 5 |
Kosten
| Kaufpreis |
568.000 € |
|---|---|
| Provision | Nein |
Finanzierungsrechner:
Kaufpreis:
600.000 €
Eigenkapital:
600.000 €
Monatliche Rate
0 €
Effektiver Jahreszins
0 %
Sollzinsbindung
10 Jahre
Bausubstanz & Energieausweis
| Baujahr | unbekannt |
|---|
Beschreibung des Objekts
Ausstattung
Die Aufteilung des EDITION 145 ist perfekt für moderne Familien gestaltet. Mit fünf Zimmern, darunter mehrere Schlafzimmer und ein Homeoffice, ist ausreichend Platz für individuelle Rückzugsorte vorhanden. Die offene Gestaltung des Wohn- und Essbereichs schafft eine einladende Atmosphäre, während die Bäder durch ihre geschickte Anordnung Privatsphäre und Komfort bieten. Die hellen, lichtdurchfluteten Räume fördern ein angenehmes Wohnklima und sorgen für eine positive Raumwirkung, die das tägliche Leben bereichert.
Ein besonderes Highlight sind die vielseitigen Nutzungsmöglichkeiten des Hauses. Neben der großzügigen Terrasse, die Ihnen und Ihrer Familie ein wunderbares Plätzchen im Freien bietet, sind auch Abstellräume und weitere funktionale Flächen Bestandteil des Hauses. Diese Details bereichern den Alltag und bieten Ihnen zusätzlichen Stauraum für Freizeitaktivitäten oder Gartenutensilien. Jedes Element ist durchdacht, um Ihren Lebensstil zu unterstützen und ein harmonisches Zuhause zu schaffen.
Die Ausbaustufe "Zur Ausstattung fertig" (ZAF) ist ideal für kreative Köpfe, die selbst Hand anlegen möchten. Bien-Zenker übernimmt den Rohbau sowie den technischen Innenausbau, während Sie die Gestaltung der Böden, Malerarbeiten und Sanitärinstallationen in Ihre eigenen Hände nehmen können. So sparen Sie nicht nur Geld, sondern bringen auch Ihre persönliche Note in Ihr neues Zuhause ein. Diese Art des Bauens ermöglicht es Ihnen, Ihre handwerklichen Fähigkeiten auszuleben und das Haus nach Ihren Vorstellungen zu gestalten. Der gesamte Bauablauf wird von den erfahrenen Mitarbeitern von Bien-Zenker begleitet, sodass Sie sicher sein können, dass Sie in besten Händen sind.
Lage
Klein Auheim bietet Ihnen eine hervorragende Lebensqualität mit einer Vielzahl von Möglichkeiten in der Umgebung. Bildungseinrichtungen wie Schulen und Kindergärten sind schnell erreichbar, was besonders für Familien von Vorteil ist. Auch die Gesundheitsversorgung ist durch nahegelegene Ärzte und Apotheken gewährleistet. Einkaufsmöglichkeiten sind in der Nähe und bieten alles, was Sie für den täglichen Bedarf benötigen. In der Freizeit können Sie die Natur genießen oder sich in den umliegenden Parks und Sporteinrichtungen aktiv betätigen. Die Anbindung an den öffentlichen Nahverkehr und die Autobahn ist optimal, was Ihnen eine schnelle Erreichbarkeit der Städte in der Umgebung ermöglicht. So genießen Sie sowohl die Ruhe des Wohnorts als auch die Vorzüge einer urbanen Umgebung.
Adresse
63456 Hanau
Interessante Orte
Preis- und Lageinformationen
Preistrend für Bestandsimmobilien in Hanau