Die attraktive Liegenschaft aus dem Jahr 1964 befindet sich in einer ruhigen, naturnahen Wohngegend, die durch ihre gute Anbindung an die städtische Infrastruktur überzeugt. Das im Jahr 1964 erbaute Gebäude besteht aus drei Wohneinheiten von denen zurzeit eine vermietet ist.
Mit einer Wohnfläche von insgesamt 306 m² und einer Grundstücksfläche von 598 m² bietet das Haus viel Platz und Komfort für seine Bewohner.
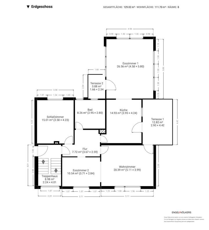
Das im Jahr 1994 erweiterte Erdgeschoss überzeugt mit ca. 111m² Wohnfläche, die sich auf vier gut geschnittene Zimmer, ein großzügiges Badezimmer mit Dusche und Badewanne sowie einen offen gestalteten Wohn- und Essbereich mit integrierter Küche verteilen. Ein Kachelofen im Wohnzimmer sorgt dabei für eine behagliche Atmosphäre und zusätzliche Wärme an kühleren Tagen. Der direkte Zugang zur Terrasse und dem liebevoll angelegten Garten schafft eine ideale Verbindung zwischen Innen- und Außenbereich.
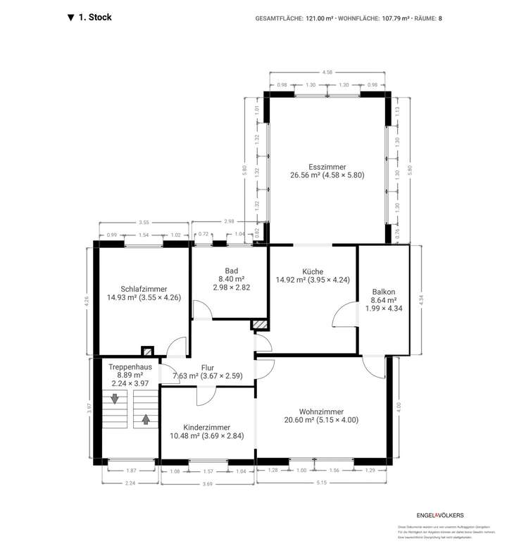
Im 1. Obergeschoss befindet sich eine abgeschlossene Wohneinheit mit ca. 107m², die seit 15 Jahren zuverlässig zu einer monatlichen Kaltmiete von 760€ vermietet ist – ein attraktives Plus für Kapitalanleger. Die derzeitige Miete ist als deutlich steigerungsfähig einzuschätzen und bietet somit weiteres Entwicklungspotenzial.
Das 88m² große Dachgeschoss bietet drei helle Zimmer sowie einen Balkon mit schönem Ausblick ins Grüne – ideal für Eigennutzer oder zur weiteren Vermietung.
Für zusätzlichen Komfort sorgen bis zu fünf PKW-Stellplätze direkt auf dem Grundstück. Jeder Wohneinheit stehen eigene Stellflächen zur Verfügung – ein wertvoller Vorteil, der sowohl den Alltag erleichtert als auch die Attraktivität des Objekts für Bewohner und Besucher gleichermaßen erhöht.
Das Haus ist mit einer Ölheizung ausgestattet & die Fenster sind zweifach isolierverglast und mit Rollläden versehen, um den Energieverbrauch zu reduzieren.
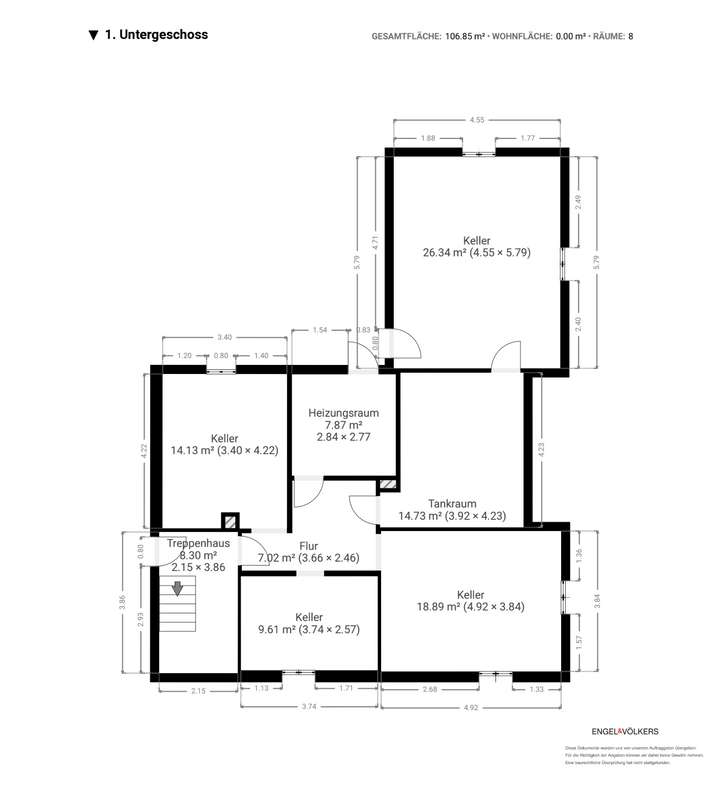
Für weiteren Stauraum befinden sich im Keller abschließbare Räume für jede Wohneinheit, die sich ideal für die Aufbewahrung von Fahrrädern oder Werkzeugen eignen. Ein gemeinschaftlich genutzter Garten rundet das Angebot ab und bietet allen Bewohnern Raum für Freizeitaktivitäten im Freien – sei es zum Gärtnern, Grillen oder einfach zum Entspannen im Grünen. Zusätzlich steht im Garten eine praktische Gartenhütte zur Verfügung, die weiteren Platz für Gartengeräte bietet.
Charmantes Mehrfamilienhaus in begehrter, ruhiger und dennoch zentraler Lage in Messel
64409 Messel
Die vollständige Adresse der Immobilie erhalten Sie vom Anbieter.
Auf Karte anzeigen
Die vollständige Adresse der Immobilie erhalten Sie vom Anbieter.
Finanzierungszertifikat
In nur zwei Minuten zu Ihrem persönlichen Finanzierungszertifkat.
Infos
| Haustyp | Mehrfamilienhaus |
|---|---|
| Etagenzahl | 3 |
| Wohnfläche ca. | 306 m2 |
| Grundstücksfläche | 598 m2 |
| Bezugsfrei ab | sofort |
| Zimmer | 11 |
| Badezimmer | 3 |
| Anzahl Garage/Stellplatz | 6 |
Kosten
| Kaufpreis |
695.000 € |
|---|---|
| Provision |
3.57 % inkl. gesetzl. MwSt. |
Finanzierungsrechner:
Kaufpreis:
600.000 €
Eigenkapital:
600.000 €
Monatliche Rate
0 €
Effektiver Jahreszins
0 %
Sollzinsbindung
10 Jahre
Bausubstanz & Energieausweis
| Baujahr | 1964 |
|---|---|
| Objektzustand | Renovierungsbedürftig |
| Wesentliche Energieträger | Öl |
| Energieausweis | liegt vor |
| Energieausweistyp | Bedarfsausweis |
| Energieverbrauchskennwert | 312,7 kWh/(m²*a) |
| Energieeffizienzklasse | H |
312,7
kWh/(m²*a)
Energieeffizienzklasse H
- A+
- A
- B
- C
- D
- E
- F
- G
- H
- 0
- 25
- 50
- 75
- 100
- 125
- 150
- 175
- 200
- 225
- >250
Beschreibung des Objekts
Ausstattung
Abstellkammer
Einbauküche
Blick ins Grüne
Fliesen
Laminat
Mamor
Vollunterkellert
Lage
Messel ist eine lebendige Stadt im südhessischen Landkreis Darmstadt-Dieburg, die durch ihre Nähe zur Natur und gleichzeitig gute Anbindung an größere Städte überzeugt. Die Großstadt Frankfurt am Main ist in nur 26 km erreichbar, während Darmstadt lediglich 11 km entfernt liegt, was die Stadt zu einem beliebten Wohnort macht.
Inmitten einer grünen Umgebung erleben Sie die Ruhe des Landlebens, während Sie gleichzeitig die Nähe zu vielen wichtigen städtischen Einrichtungen und Verkehrsanbindungen genießen.
Die Anbindung an den öffentlichen Nahverkehr ist hervorragend: Haltestellen befinden sich in fußläufiger Nähe und ermöglichen eine bequeme Verbindung in die umliegenden Städte. Auch der Bahnhof ist schnell erreichbar und sorgt für eine unkomplizierte Anbindung an die Region und darüber hinaus. Für Autofahrer bietet die Nähe zur Autobahn A26 eine gute Verbindung, und der internationale Flughafen Frankfurt ist ebenfalls zügig erreichbar.
Besonders für Familien oder im Alltag von großer Bedeutung ist zudem das breite Angebot an nahegelegenen Bildungs- und Betreuungseinrichtungen wie Schulen und Kindergärten.
Einkaufsmöglichkeiten für den täglichen Bedarf befinden sich in unmittelbarer Nähe – Supermärkte und Einzelhandelsgeschäfte sind bequem zu Fuß erreichbar. Auch für den kulinarischen Genuss ist gesorgt: Verschiedene gastronomische Angebote laden in der Umgebung zum Verweilen ein.
Das nahegelegene UNESCO-Welterbe Grube Messel bietet spannende Einblicke in die Entwicklung der Säugetiere – ein ideales Ausflugsziel in der Umgebung.
Die Lage des Hauses bietet Ihnen somit eine hervorragende Kombination aus naturnahem Wohnen und schneller Erreichbarkeit sämtlicher wichtiger Einrichtungen des täglichen Bedarfs, was sie besonders attraktiv für Familien und Berufspendler macht.
Infrastruktur:
- Bushaltestelle 0,6 km
- Grundschule Messel 0,6 km
- Kindertagesstätte Fossilchen 0,9 km
- Hartmut Weller Bäckerei 0,9 km
- Netto 0,4 km
Sonstige Angaben
Der Makler-Vertrag mit uns und/oder unserem Beauftragten kommt durch die Beauftragung der Maklertätigkeit in Textform (z.B. E-Mail mit Bestätigung der gewollten Inanspruchnahme) zustande. Die Höhe der Courtage richtet sich nach den ab dem 23.12.2020 in Kraft getretenen gesetzlichen Regelungen zur Teilung der Maklercourtage. Hiernach wird die Courtage regelmäßig für beide Parteien (Eigentümer und Käufer) jeweils in Höhe von 3 % zuzüglich Umsatzsteuer in jeweils geltender Höhe, derzeit also insgesamt 3,57 % des Kaufpreises einschließlich Umsatzsteuer bei notariellem Vertragsabschluss verdient und fällig. Die Höhe der Bruttocourtage unterliegt einer Anpassung bei Steuersatzänderung, Grunderwerbssteuer, Notar- und Gerichtskosten trägt der Käufer.
Grundriss
Grundriss
>
>
Grundriss
>
>
Grundriss
>
>
Grundriss
>
>
Adresse
64409 Messel
Interessante Orte
Preis- und Lageinformationen
Preistrend für Bestandsimmobilien in Messel