Das EVOLUTION 161 von Bien-Zenker ist weit mehr als nur ein Fertighaus - es ist Ihre ganz persönliche Wohlfühloase, die individuell auf Ihre Wünsche und Vorstellungen abgestimmt ist. Die großzügige Wohnfläche von 170 m² verteilt auf insgesamt 5 Zimmer, bietet nicht nur Platz für Ihre Familie, sondern auch für Ihre Träume. Mit 3 Schlafzimmern und 3 Badezimmern ist eine perfekte Balance zwischen Privatsphäre und Gemeinschaft gewährleistet. Egal, ob Sie eine moderne Dachform oder eine traditionelle Variante bevorzugen, mit Bien-Zenker gestalten Sie Ihr Zuhause ganz nach Ihrem individuellen Geschmack. Die Verwendung innovativer Architektur-Bauteile macht das EVOLUTION 161 zu einer zeitgemäßen Wahl, die sowohl ästhetisch als auch funktional begeistert.
Der Komfort des EVOLUTION 161 wird durch viele Details verstärkt. Lichtdurchflutete Räume schaffen eine einladende Atmosphäre und die durchdachte Raumaufteilung sorgt für eine optimale Nutzung des vorhandenen Platzes. Genießen Sie entspannte Stunden auf Ihrer eigenen Terrasse oder im Garten Ihres 1210 m² großen Grundstücks, wo Sie wunderbare Abende mit Freunden oder Familie verbringen können. Mit der Möglichkeit, Abstellräume und zusätzliche Gestaltungselemente zu integrieren, wird Ihr Zuhause nicht nur schön, sondern auch praktisch.
Wir kümmern uns um den gesamten Hausbau - vom Rohbau bis zur letzten Fliese. So erleben Sie einen reibungslosen Bauablauf, der Ihnen Zeit und Nerven spart. Diese Ausbaustufe bietet Ihnen maximalen Komfort und erfüllt alle Anforderungen des staatlichen Qualitätssiegels für Nachhaltigkeit. Profitieren Sie von einem individuell gestalteten Zuhause und attraktiven Förderungen über die KfW, um Ihre Wohnträume zu verwirklichen.
Grundrisse und Abbildungen können Extras zeigen. Flächenangaben nach DIN 277.
Bien-Zenker: Ihr maßgeschneidertes individuelles Wohnglück im Norden von Hamburg
22397 Hamburg
Die vollständige Adresse der Immobilie erhalten Sie vom Anbieter.
Auf Karte anzeigen
Die vollständige Adresse der Immobilie erhalten Sie vom Anbieter.
Finanzierungszertifikat
In nur zwei Minuten zu Ihrem persönlichen Finanzierungszertifkat.
Infos
| Haustyp | Einfamilienhaus |
|---|---|
| Wohnfläche ca. | 170 m2 |
| Grundstücksfläche | 1.210 m2 |
| Zimmer | 5 |
| Schlafzimmer | 3 |
| Badezimmer | 3 |
Kosten
| Kaufpreis |
1.310.560 € |
|---|
Finanzierungsrechner:
Kaufpreis:
600.000 €
Eigenkapital:
600.000 €
Monatliche Rate
0 €
Effektiver Jahreszins
0 %
Sollzinsbindung
10 Jahre
Bausubstanz & Energieausweis
| Baujahr | unbekannt |
|---|---|
| Bauphase | Haus in Planung (projektiert) |
| Qualität der Austattung | Gehoben |
Beschreibung des Objekts
Ausstattung
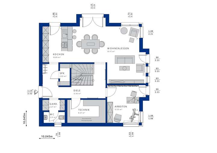
Die harmonische und effiziente Grundrissgestaltung des EVOLUTION 161 ermöglicht es Ihnen, den vollen Nutzen aus Ihrer Wohnfläche zu ziehen. Die 3 Schlafzimmer sind perfekt als Rückzugsorte geeignet, während die 3 Badezimmer für höchsten Komfort im Alltag sorgen. Die Raumaufteilung bietet jedem Familienmitglied seinen eigenen Bereich, ohne auf gemeinschaftliche Erlebnisse verzichten zu müssen. Dies macht das EVOLUTION 161 besonders attraktiv für Familien, die Privatsphäre schätzen und dennoch gerne Zeit miteinander verbringen.
Besonderheiten wie eine großzügige Terrasse und lichtdurchflutete Wohnräume schaffen eine einladende Atmosphäre, die zum Verweilen einlädt. Die durchgängigen Fensterfronten lassen viel Tageslicht hinein und sorgen für ein angenehmes Raumklima. Der Garten auf dem 1210 m² großen Grundstück bietet reichlich Platz für kreative Freizeitgestaltungen, während Abstellräume zusätzlichen Stauraum bieten und somit für Ordnung sorgen.
Die Ausbaustufe "Schlüsselfertig" sorgt dafür, dass Sie sich um nichts kümmern müssen. Der Preis umfasst den gesamten Bauprozess, einschließlich des Innenausbaus, und gewährleistet, dass Ihr zukünftiges Zuhause von den ersten Entwürfen bis zur finalen Gestaltung in besten Händen ist. Diese komfortable Lösung bedeutet für Sie nicht nur weniger Stress, sondern auch ein Zuhause, das auf die neuesten Standards der Nachhaltigkeit und Energieeffizienz ausgelegt ist.
Lage
Hamburg, die pulsierende Metropole an der Elbe, bietet Ihnen eine hervorragende Lebensqualität und zahlreiche Möglichkeiten für Bildung, Gesundheit, Einkauf und Freizeit. Besonders im Stadtteil Wohldorf-Ohlstedt genießen Sie eine ideale Kombination aus urbanem Leben und naturnaher Erholung. In der Umgebung finden Sie eine Vielzahl von Schulen, Kindergärten und medizinischen Einrichtungen, die für Familien von großem Vorteil sind. Einkaufsmöglichkeiten sind in unmittelbarer Nähe, sodass Sie alles für den täglichen Bedarf bequem erreichen können. Zudem profitieren Sie von einem ausgezeichneten öffentlichen Nahverkehr, der Ihnen schnelle Verbindungen in die Innenstadt und zu anderen Stadtteilen bietet. Die Autobahn ist ebenfalls gut erreichbar und eröffnet Ihnen die Möglichkeit, auch die wunderschöne Umgebung Hamburgs bequem zu erkunden.
Sonstige Angaben
Der hier angegebene Wert zur zu zahlenden Grunderwerbsteuer ist ein vom Portalbetreiber automatisierter Wert, der nicht der Realität entspricht, da die Grunderwerbsteuer nur auf den im Gesamtangebot einberechneten Grundstückswert berechnet wird.
Inkl. PV - Anlage und Speicher für die eigene Stromversorgung
Auf Wunsch können alle Kriterien für eine KFN - QNG Förderung erfüllt werden.
Hausabbildungen mit Sonderwünschen
Grundrisse können individuell geändert und angepasst werden
Auf Wunsch ist ein Keller möglich
Adresse
22397 Hamburg
Interessante Orte
Preis- und Lageinformationen
Preistrend für Bestandsimmobilien in Wohldorf-Ohlstedt
>
>