Bist du bereit? Lass uns loslegen!
Warum warten, wenn dein eigenes Zuhause nur eine Entscheidung entfernt ist?
Unsere Wegbegleiter holen dich dort ab, wo du gerade stehst, und ebnen deinen persönlichen Weg zum Wohneigentum.
Fehlt dir noch das passende Grundstück? Wir helfen dir, es zu finden.
Hast du Fragen zur Finanzierung? Wir haben die Lösung.
Bist du unsicher, welches Haus das richtige für dich ist? Unsere Experten unterstützen dich dabei.
Es gibt nie den perfekten Moment, aber es gibt den richtigen Schritt.
Dein Zuhause beginnt heute mit White&Black.
Dein Zuhause, so individuell wie du.
22399 Hamburg
Die vollständige Adresse der Immobilie erhalten Sie vom Anbieter.
Auf Karte anzeigen
Die vollständige Adresse der Immobilie erhalten Sie vom Anbieter.
Finanzierungszertifikat
In nur zwei Minuten zu Ihrem persönlichen Finanzierungszertifkat.
Infos
| Haustyp | Einfamilienhaus |
|---|---|
| Wohnfläche ca. | 139 m2 |
| Nutzfläche | 0 m2 |
| Grundstücksfläche | 445 m2 |
| Zimmer | 5 |
| Schlafzimmer | 3 |
| Badezimmer | 1 |
| Anzahl Garage/Stellplatz | 0 |
Kosten
| Kaufpreis |
751.312 € |
|---|---|
| Provision | Nein |
Finanzierungsrechner:
Kaufpreis:
600.000 €
Eigenkapital:
600.000 €
Monatliche Rate
0 €
Effektiver Jahreszins
0 %
Sollzinsbindung
10 Jahre
Bausubstanz & Energieausweis
| Baujahr | 2026 |
|---|---|
| Bauphase | Haus in Planung (projektiert) |
| Qualität der Austattung | Gehoben |
| Heizungsart | Wärmepumpe |
Beschreibung des Objekts
Ausstattung
THINK BLACK – All in.
- Schlüsselfertig & sofort bezugsbereit – ohne zusätzlichen Aufwand
- Kompletter Innenausbau – keine Handwerkersuche, kein Planungsstress
- Durchdachte Raumaufteilung – moderne Wohnkonzepte für jede Lebensphase
- Innovative Haustechnik – zukunftssicheres Wohnen mit höchster Effizienz
- Maximaler Komfort – alles fertig, alles drin
Für alle, die einfach einziehen und losleben wollen!
Lage
Traumlage in 2. Reihe
Sonstige Angaben
Das Haus ist projektiert inkl. Grundstück. Das Grundstück wird in Kommission angeboten bzw. direkt von Dritten verkauft. Daher kann der genannte Preis aufgrund aktueller Marktsituationen schwanken.
Die Bauabwicklung kann kurzfristig nach Grundstückserwerb begonnen werden. Bilder zeigen möglicherweise Sonderausstattungen, die auf Wunsch gegen Aufspreis zusätzlich angeboten werden können.
Erhalte in deinem persönlichen Beratungsgespräch kostenlos alle wichtigen Informationen zu diesem Projekt, insbesondere: Lage und Bebauungsmöglichkeiten des Baugrundstücks, Baukosten-Kalkulation, Finanzierungs- u. Förderungsmöglichkeiten sowie detaillierte Architektur- uund Grundrissplanung.
Wir freuen uns darauf, dich beraten zu dürfen!
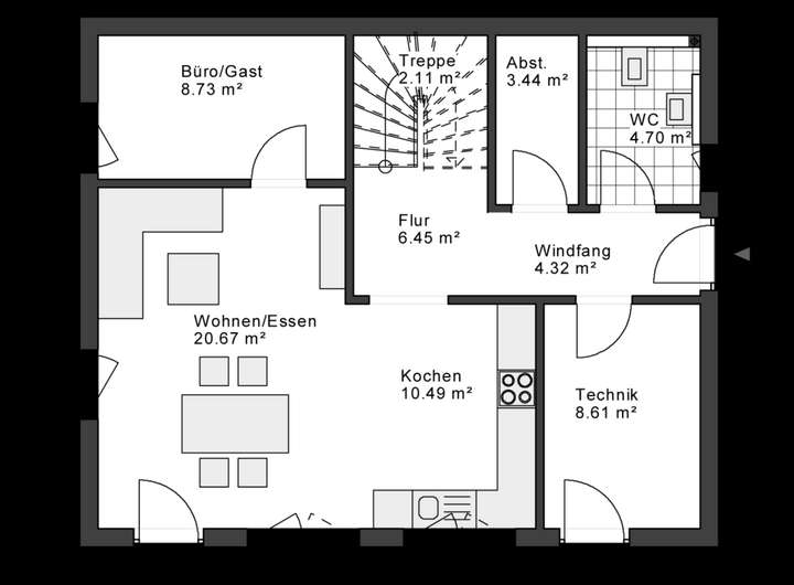
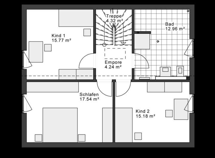
Grundriss
Grundriss EG
>
>
Grundriss OG
>
>
Adresse
22399 Hamburg
Interessante Orte
Preis- und Lageinformationen
Preistrend für Bestandsimmobilien in Poppenbüttel