Dieses Mittelreihenhaus bietet mit acht Zimmern und rund 131 m² Wohnfläche + Nutzfläche, viel Raum zur individuellen Entfaltung – ideal für Familien oder für alle, die Wohnen und Arbeiten unter einem Dach verbinden möchten. Die Aufteilung ist funktional, die Grundstruktur solide.
Die Ausstattung stammt überwiegend aus früheren Jahren und bietet Potenzial für eine persönliche Neugestaltung.
Besonders angenehm ist die nach Süden ausgerichtete Terrasse – ideal für sonnige Stunden im Freien. Im Inneren stehen ein Badezimmer mit Badewanne sowie separate WCs im Erdgeschoss und Dachgeschoss zur Verfügung. Die Böden sind größtenteils mit Linoleum versehen, was eine pflegeleichte, aber einfache Lösung darstellt.
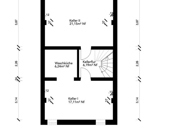
Ein beheizter Keller schafft zusätzlichen Stauraum oder Platz für Hobbys. Ergänzt wird das Raumangebot durch einen ausgebauten Spitzboden.
Jedem Eigentümer steht ein Stellplatz in der gemeinschaftlich genutzten Tiefgarage grundsätzlich zu, dieser kann bei Bedarf separat angemietet werden.
Das 1973 errichtete Haus steht auf einem ca. 123 m² großen Grundstück und befindet sich in einem nutzbaren Zustand mit Spielraum für individuelle Modernisierungen – eine gute Grundlage für alle, die ein Zuhause nach eigenen Vorstellungen gestalten möchten.
Viel Platz für die Familie: Reihenmittelhaus mit Südterrasse, mit 8 Zimmern!
22559 Hamburg
Die vollständige Adresse der Immobilie erhalten Sie vom Anbieter.
Auf Karte anzeigen
Die vollständige Adresse der Immobilie erhalten Sie vom Anbieter.
Finanzierungszertifikat
In nur zwei Minuten zu Ihrem persönlichen Finanzierungszertifkat.
Infos
| Haustyp | Reihenmittelhaus |
|---|---|
| Wohnfläche ca. | 131 m2 |
| Nutzfläche | 76 m2 |
| Grundstücksfläche | 123 m2 |
| Zimmer | 8 |
| Garage/Stellplatz | Tiefgarage |
| Anzahl Garage/Stellplatz | 1 |
Kosten
| Kaufpreis |
539.000 € |
|---|---|
| Provision |
zzgl. 3,57% Provision inkl. gesetzl Mwst. |
Finanzierungsrechner:
Kaufpreis:
600.000 €
Eigenkapital:
600.000 €
Monatliche Rate
0 €
Effektiver Jahreszins
0 %
Sollzinsbindung
10 Jahre
Bausubstanz & Energieausweis
| Baujahr | 1972 |
|---|---|
| Heizungsart | Gas-Heizung |
| Wesentliche Energieträger | Erdgas leicht |
| Energieausweis | liegt vor |
| Energieausweistyp | Bedarfsausweis |
| Energieverbrauchskennwert | 125,1 kWh/(m²*a) |
| Energieeffizienzklasse | D |
125,1
kWh/(m²*a)
Energieeffizienzklasse D
- A+
- A
- B
- C
- D
- E
- F
- G
- H
- 0
- 25
- 50
- 75
- 100
- 125
- 150
- 175
- 200
- 225
- >250
Beschreibung des Objekts
Ausstattung
– Mittelreihenhaus mit ca. 131 m² Wohnfläche
– Gebäudenutzfläche ca. 184 m²
– Grundstücksgröße ca. 123 m²
– 8 Zimmer auf mehreren Ebenen
– Heizungsart: Gas (2001)
– Baujahr 1973
– Südterrasse mit viel Sonne
– Badezimmer mit Badewanne
– WC im Erdgeschoss
– WC und Bad im OG und Duschbad im DG
– Beheizter Keller und ausgebauter Spitzboden
– Vorwiegend Linoleumböden
– Insgesamt bewohnbarer, aber renovierungsbedürftiger Zustand
– Stellplatz in der gemeinschaftlichen Tiefgarage (kann zusätzlich angemietet werden)
Lage
Die Lage des Hauses vereint ruhiges Wohnen mit guter Anbindung an städtische Infrastruktur. In einer gewachsenen Wohngegend gelegen, profitieren Sie von einer angenehmen Nachbarschaft und kurzen Wegen zu Einkaufsmöglichkeiten, Schulen, Kindergärten sowie medizinischer Versorgung. Auch öffentliche Verkehrsmittel sind bequem erreichbar, sodass Sie flexibel und schnell ins Hamburger Stadtzentrum gelangen. Die grüne Umgebung lädt zu Spaziergängen und Freizeitaktivitäten ein – ideal für Familien, Berufstätige oder alle, die stadtnah und dennoch entspannt wohnen möchten.
Sonstige Angaben
Ihre Zufriedenheit liegt uns am Herzen.
Wenn Sie innerhalb von 24 Stunden auf Ihre Anfrage keine Rückantwort erhalten haben, rufen Sie bitte unsere Hotline unter der Nummer: +49 171 9401099 an oder schreiben Sie uns eine E-Mail an: suehan.coemertpay@remax.de
Bitte haben Sie Verständnis dafür, dass wir nur Anfragen mit kompletten Kontaktdaten (Name, Anschrift, Telefonnummer und E-Mail Adresse) beantworten können.
Die Informationen in diesem Exposé berufen auf Angaben, die wir vom Veräußerer und / oder Dritten erhalten haben. Für deren Richtigkeit und Vollständigkeit übernehmen wir keine Haftung.
Wenn Sie jemanden kennen, der jetzt oder später seine Immobilie verkaufen möchte, melden Sie sich gerne bei uns.
Es winkt Ihnen eine Tippgeberprovision zu.
Wer wir sind?
- Weltweit in über 100 Ländern mit über 100.000 RE/MAX Immobilienmaklern die Nummer 1.
- Wir vermitteln Ihre Immobilie und haben über 1.000 Suchkunden, die sofort kaufen können.
- Was ist Ihre Immobilie wert? DEKRA zertifizierte kostenlose Wertermittlung Ihrer Immobilie durch unsere geschulten RE/MAX Immobilienmakler!
Sie möchten auch in den Traumberuf als RE/MAX Immobilienmakler einsteigen, dann bewerben Sie sich JETZT!
RE/MAX Immobilienmakler (w/m/d)
Gerne auch als Quereinsteiger oder als geförderter Umschüler.
Bewerben Sie sich, wenn Sie im Umkreis von 100 km wohnen unter der Nummer: +49 171 9401099 an oder schreiben Sie uns eine E-Mail an: suehan.coemertpay@remax.de
RE/MAX Hamburg
Sühan Cömertpay
Osterstraße 148
20255 Hamburg
+49 (0) 171 940 10 99
suehan.coemertpay@remax.de
Jeder Lizenznehmer ist ein rechtlich eigenständiges Unternehmen und handelt auf eigene Rechnung und Verantwortung.
Wir freuen uns auf die Zusammenarbeit.
Adresse
22559 Hamburg
Interessante Orte
Preis- und Lageinformationen
Preistrend für Bestandsimmobilien in Rissen