Dieses außergewöhnliche Objekt in der begehrten Villenkolonie von Darmstadt-Eberstadt bietet Ihnen ein unvergleichliches Lebensgefühl. Umgeben von hohen, alten Bäumen genießen Sie hier nicht nur eine ruhige Wohnlage im Grünen, sondern auch eine perfekte Anbindung an das öffentliche Verkehrsnetz, Schulen, Kindergärten sowie vielfältige Einkaufsmöglichkeiten in unmittelbarer Nähe.
Ein Zuhause mit Geschichte und Zukunft:
Das im Jahr 1938 errichtete Haus wurde 1963 durch einen geschmackvollen Anbau erweitert und erhielt 1974 einen exklusiven Zusatz – ein großzügiges, überdachtes Schwimmbad mit Zugang vom Haupthaus. Diese Kombination aus historischer Substanz und späteren Erweiterungen macht das Anwesen zu etwas ganz Besonderem.
Mit 8 Zimmern, 2 Küchen und 3 Bädern präsentiert sich das Haus als vielseitig nutzbar, z.B. als Mehrgenerationenhaus, das Familien unterschiedlichster Größe und Zusammensetzung Raum und Privatsphäre bietet. Das imposante Wohnzimmer im Erdgeschoss mit lichtdurchfluteten 38 m² bildet das Herzstück und den zentralen Treffpunkt für gemeinsame Stunden und Familienleben.
Lebensqualität mit vielen Highlights:
Das großzügige Grundstück von 808 m² lädt ein zum Verweilen und Genießen. Die gewachsenen Hecken sorgen für Privatsphäre und ein naturnahes Ambiente. Ein besonderes Erlebnis ist die weitläufige, sonnige Dachterrasse mit 61 m² Fläche und optimaler Südausrichtung – hier kann man den Tag entspannt ausklingen lassen oder Feste mit Familie und Freunden feiern.
Das überdachte Schwimmbad bietet eine private Wellnessoase, die nach zeitgemäßer Sanierung wieder in neuem Glanz erstrahlen kann.
Zukunft mit Potenzial:
Das Haus benötigt Modernisierungen, vor allem im energetischen Bereich. Hier liegt eine große Chance: Zahlreiche Förderprogramme erleichtern Sanierungen und helfen, das Zuhause zukunftssicher und nachhaltig zu gestalten. So verbinden sich der Charme eines traditionsreichen Hauses mit modernstem Wohnkomfort.
Der voll unterkellerte Bau bietet außreichend Stauraum und Nutzungsmöglichkeiten, während der ausbaufähige Dachboden Raum für weitere Zimmer schafft – perfekt für wachsende Familien oder individuelle Wohnwünsche.
Zu dem Anwesen gehört eine Garage, ergänzt durch eine großzügige Hofeinfahrt, die Platz für ein weiteres Fahrzeug bietet. Die fußläufig erreichbare Straßenbahn garantiert eine entspannte und schnelle Verbindung ins Zentrum von Darmstadt.
Dieses Haus vereint großzügigen Raum, Geschichte und modernes Potenzial in einer der besten Lagen Darmstadts. Nutzen Sie Ihre Chance, in der Villenkolonie Eberstadt ein Zuhause mit Charakter und viel Zukunftspotenzial zu gestalten!
Viel Raum für die ganze Familie in der exklusiven Villenkolonie Darmstadt-Eberstadt
64297 Darmstadt
Die vollständige Adresse der Immobilie erhalten Sie vom Anbieter.
Auf Karte anzeigen
Die vollständige Adresse der Immobilie erhalten Sie vom Anbieter.
Finanzierungszertifikat
In nur zwei Minuten zu Ihrem persönlichen Finanzierungszertifkat.
Infos
| Haustyp | Mehrfamilienhaus |
|---|---|
| Etagenzahl | 2 |
| Wohnfläche ca. | 217 m2 |
| Grundstücksfläche | 808 m2 |
| Bezugsfrei ab | 08.09.2025 |
| Zimmer | 8 |
| Badezimmer | 3 |
| Anzahl Garage/Stellplatz | 2 |
Kosten
| Kaufpreis |
1.125.000 € |
|---|---|
| Provision |
3.57 % inkl. gesetzl. MwSt. |
Finanzierungsrechner:
Kaufpreis:
600.000 €
Eigenkapital:
600.000 €
Monatliche Rate
0 €
Effektiver Jahreszins
0 %
Sollzinsbindung
10 Jahre
Bausubstanz & Energieausweis
| Baujahr | 1938 |
|---|---|
| Letzte Sanierung | 1974 |
| Objektzustand | Renovierungsbedürftig |
| Wesentliche Energieträger | Öl |
| Energieausweis | liegt vor |
| Energieausweistyp | Bedarfsausweis |
| Energieverbrauchskennwert | 478,5 kWh/(m²*a) |
| Energieeffizienzklasse | H |
478,5
kWh/(m²*a)
Energieeffizienzklasse H
- A+
- A
- B
- C
- D
- E
- F
- G
- H
- 0
- 25
- 50
- 75
- 100
- 125
- 150
- 175
- 200
- 225
- >250
Beschreibung des Objekts
Ausstattung
Blick ins Grüne
Parkett
Schwimmbad, innen, private
Vollunterkellert
Lage
Die Villenkolonie Eberstadt gehört zu den attraktivsten und traditionsreichsten Wohnvierteln im Süden Darmstadts. Geprägt von repräsentativen Villen aus der Zeit um die Jahrhundertwende, großzügigen Grundstücken und altem Baumbestand, vermittelt dieses historisch gewachsene Viertel eine besondere Wohnatmosphäre. Die breiten, von Bäumen gesäumten Straßen und die teils denkmalgeschützte Bausubstanz schaffen ein unverwechselbares Ensemble, das sowohl Familien als auch anspruchsvolle Individualisten anspricht. Wer Wert auf Ruhe, architektonischen Charme und ein gepflegtes Umfeld legt, findet hier eine der gefragtesten Adressen der Region.
Trotz der idyllischen Lage ist die Anbindung hervorragend: Die Heidelberger Landstraße mit Straßenbahn- und Busverbindungen ist fußläufig erreichbar und verbindet das Quartier in wenigen Minuten mit der Darmstädter Innenstadt. Über die nahegelegene Autobahn A5 bestehen schnelle Verbindungen in das gesamte Rhein-Main-Gebiet sowie zum internationalen Flughafen Frankfurt (ca. 30–40 Minuten Fahrzeit). Einkaufsmöglichkeiten für den täglichen Bedarf, Restaurants, Cafés, Ärzte und Apotheken befinden sich in unmittelbarer Nähe; Grund- und weiterführende Schulen sind ebenfalls schnell erreichbar.
Besondere Lebensqualität bietet die Villenkolonie Eberstadt durch ihre Vielzahl an Freizeit- und Erholungsmöglichkeiten: Die angrenzenden Wald- und Grünflächen laden zu ausgedehnten Spaziergängen, Joggingrunden und Radtouren ein. Zahlreiche Spielplätze und kleine Parks bieten Familien ein naturnahes Umfeld, während Sportvereine, Tennisplätze und Fitnessangebote in Eberstadt und im nahen Darmstadt ein breites Spektrum an Aktivitäten abdecken. Auch kulturell ist die Region bestens aufgestellt: Neben dem lebendigen Kulturangebot der Wissenschaftsstadt Darmstadt mit Theatern, Museen und Veranstaltungen bietet Eberstadt ein aktives Vereinsleben und regelmäßig stattfindende Feste, die den Stadtteil prägen.
Diese besondere Mischung aus Ruhe, historischer Substanz und urbaner Nähe macht die Villenkolonie zu einer idealen Wohnlage für Menschen, die sowohl Wert auf eine repräsentative Umgebung als auch auf eine aktive Freizeitgestaltung legen.
Sonstige Angaben
Der Makler-Vertrag mit uns und/oder unserem Beauftragten kommt durch die Beauftragung der Maklertätigkeit in Textform (z.B. E-Mail mit Bestätigung der gewollten Inanspruchnahme) zustande. Die Höhe der Courtage richtet sich nach den ab dem 23.12.2020 in Kraft getretenen gesetzlichen Regelungen zur Teilung der Maklercourtage. Hiernach wird die Courtage regelmäßig für beide Parteien (Eigentümer und Käufer) jeweils in Höhe von 3 % zuzüglich Umsatzsteuer in jeweils geltender Höhe, derzeit also insgesamt 3,57 % des Kaufpreises einschließlich Umsatzsteuer bei notariellem Vertragsabschluss verdient und fällig. Die Höhe der Bruttocourtage unterliegt einer Anpassung bei Steuersatzänderung, Grunderwerbssteuer, Notar- und Gerichtskosten trägt der Käufer.
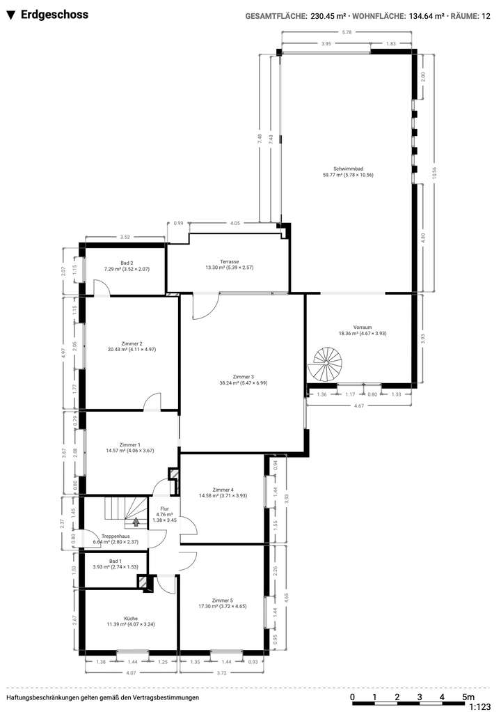
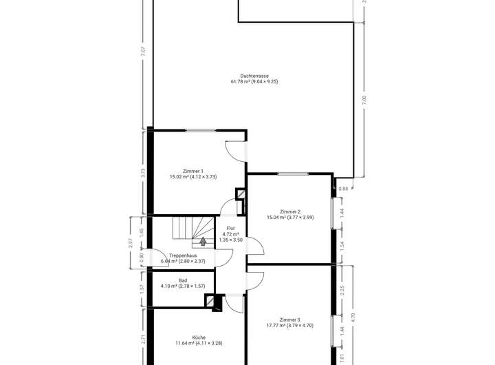
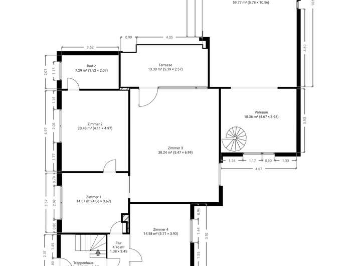
Grundriss
Grundriss Erdgeschoss
>
>
Grundriss 1. Obergeschoss
>
>
Grundriss Keller
>
>
Grundriss Keller 2
>
>
Adresse
64297 Darmstadt
Interessante Orte
Preis- und Lageinformationen
Preistrend für Bestandsimmobilien in Eberstadt