Exklusives Sanierungs- oder Neubauprojekt in Hamburg-Uhlenhorst Inmitten einer der begehrtesten Lagen Hamburgs.
Im Herzen von Uhlenhorst befindet sich dieses charmante Mehrfamilienhaus aus der Gründerzeit um 1900. Das Objekt überzeugt durch seine hervorragende Lagequalität und sein außergewöhnliches Entwicklungspotenzial – sowohl für Sanierer mit Blick auf historische Substanz, als auch für Bauträger, die hier ein hochwertiges Neubauprojekt realisieren möchten.
Das Grundstück umfasst ca. 329 m² und ist aktuell mit einem dreigeschossigen Mehrfamilienhaus mit drei freigestellten Eigentumswohnungen bebaut.
Für Sanierer bietet das Bestandsgebäude mit seiner erhaltenswerten Bausubstanz (vor 1925) eine solide Grundlage für eine stilvolle Modernisierung im Gründerzeit-Ambiente. Aufgrund des Baujahres bestehen attraktive steuerliche Abschreibungsmöglichkeiten für Kauf-, Modernisierungs- und Instandsetzungsaufwendungen. Das Gebäude steht nicht unter Denkmalschutz.
Für Projektentwickler eröffnet sich die Chance, auf dem Grundstück ein Neubauprojekt mit bis zu ca. 580 m² Wohnfläche zu realisieren. Die Umgebung zeigt bereits erfolgreiche Beispiele: In direkter Nachbarschaft entsteht derzeit eine moderne viergeschossige Wohnbebauung – ein starkes Indiz für das hohe Entwicklungspotenzial dieser Mikrolage.
Als erfahrenes Immobilienunternehmen begleiten wir nicht nur den Verkauf dieses Entwicklungsgrundstücks, sondern stehen auch für die Vermarktung der entstehenden Neubauwohnungen als professioneller Vertriebspartner zur Verfügung. Unser Netzwerk und unsere Markt-
Exklusive Stadtvilla in Bestlage
22089 Hamburg
Die vollständige Adresse der Immobilie erhalten Sie vom Anbieter.
Auf Karte anzeigen
Die vollständige Adresse der Immobilie erhalten Sie vom Anbieter.
Finanzierungszertifikat
In nur zwei Minuten zu Ihrem persönlichen Finanzierungszertifkat.
Infos
| Haustyp | Mehrfamilienhaus |
|---|---|
| Etagenzahl | 3 |
| Wohnfläche ca. | 230 m2 |
| Grundstücksfläche | 329 m2 |
| Bezugsfrei ab | 1.11.2025 |
| Zimmer | 11 |
| Schlafzimmer | 4 |
| Badezimmer | 4 |
Kosten
| Kaufpreis |
3.780.000 € |
|---|---|
| Provision |
3,57 % inkl. MwSt. |
Finanzierungsrechner:
Kaufpreis:
600.000 €
Eigenkapital:
600.000 €
Monatliche Rate
0 €
Effektiver Jahreszins
0 %
Sollzinsbindung
10 Jahre
Bausubstanz & Energieausweis
| Baujahr | 1910 |
|---|---|
| Objektzustand | Renovierungsbedürftig |
| Heizungsart | Gas-Heizung |
| Wesentliche Energieträger | Gas |
| Energieausweis | liegt vor |
| Energieausweistyp | Bedarfsausweis |
| Energieverbrauchskennwert | 170,1 kWh/(m²*a) |
| Energieeffizienzklasse | F |
170,1
kWh/(m²*a)
Energieeffizienzklasse F
- A+
- A
- B
- C
- D
- E
- F
- G
- H
- 0
- 25
- 50
- 75
- 100
- 125
- 150
- 175
- 200
- 225
- >250
Beschreibung des Objekts
Ausstattung
Grundstück/Mehrfamilienhaus
Erschließungsstand:
bebaut, voll erschlossen
Bebaubarkeit:
Mehrfamilienhaus
Baurecht:
Es besteht ein Baustufenplan aus dem Jahre 1954 mit der Ausweisung W3g.
Der Nachbar hat ein abweichendes Baurecht mit 4 Vollgeschossen + Staffelgeschoss erwirkt.
Bebauung:
4-geschossige Bebauung zulässig,
Es kann in Abstimmung mit dem Nachbarn eine Tiefgarage auf das Nachbargrundstück erweitert werden.
Lage
Der Hamburger Stadtteil Uhlenhorst liegt im Bezirk Hamburg-Nord und zählt zu den beliebtesten und charmantesten Wohngegenden der Stadt Hamburg.
Die Uhlenhorst zählt zu den wertstabilsten und begehrtesten Wohnlagen Hamburgs. Gegenüber des Objekts liegt der idyllische Averhoff-Park, der für eine grüne und ruhige Atmosphäre sorgt – mitten in der Stadt. Der Standort vereint urbanes Leben, exklusive Nachbarschaft und höchste Lebensqualität.
Uhlenhorst ist geprägt von einer eleganten und ruhigen Atmosphäre. Die Kombination aus Altbauten aus der Gründerzeit, gepflegten Villen, großzügigen Stadtwohnungen und viel Grün schafft ein besonders angenehmes Stadtbild. Die Nähe zur Alster sorgt für viele Wasserlagen und ein hohes Maß an Lebensqualität. Entlang der Kanäle findet man Spazierwege, kleine Brücken und viel alten Baumbestand.
Die zentrale Lage macht Uhlenhorst sowohl bei Familien als auch bei Berufstätigen beliebt. Es gibt gute Anbindungen an den öffentlichen Nahverkehr, vor allem durch die U-Bahn-Linie U3 (z. B. Station „Mundsburg“) sowie mehrere Buslinien. Auch mit dem Fahrrad ist man schnell in der Innenstadt.
Uhlenhorst ist ein gefragter Wohnort, was sich auch in den hohen Immobilienpreisen und Mieten widerspiegelt. Besonders begehrt sind Lagen direkt am Wasser oder mit Blick auf die Alster. Der Stadtteil vereint urbanes Leben mit einer fast schon dörflichen Ruhe.
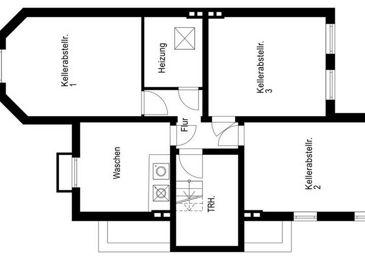
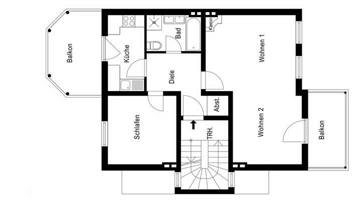
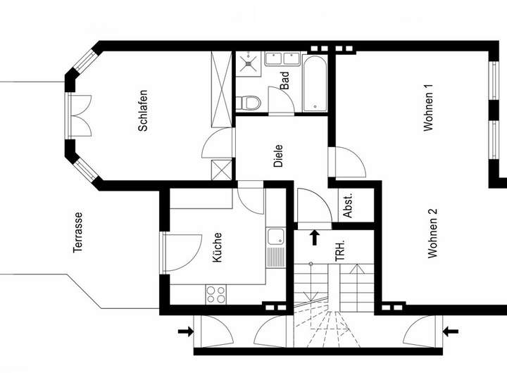
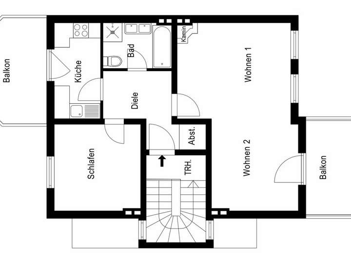
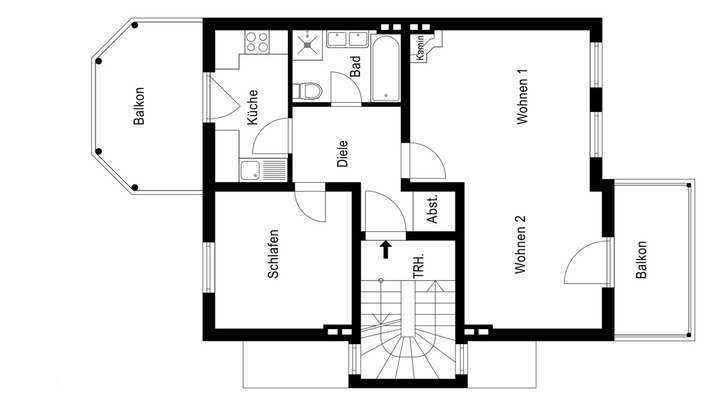
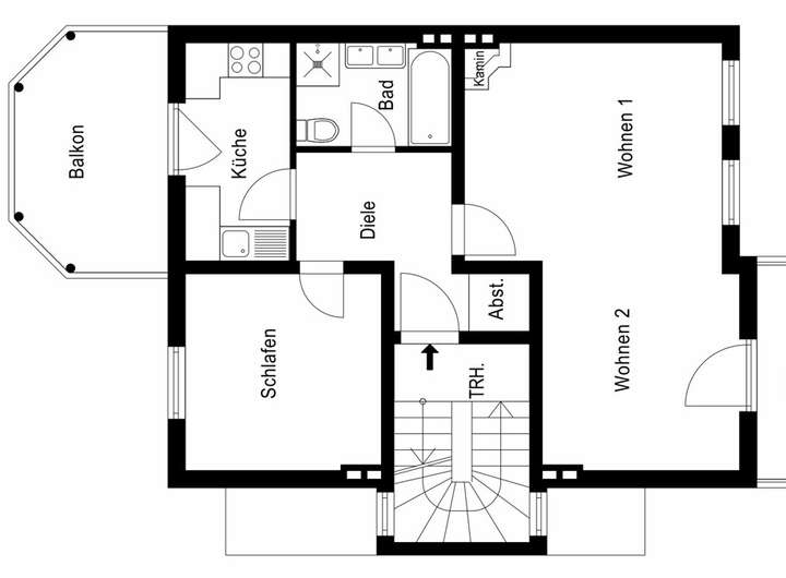
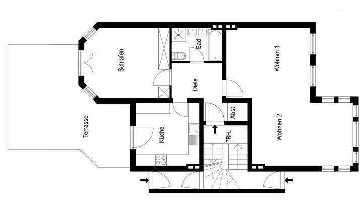
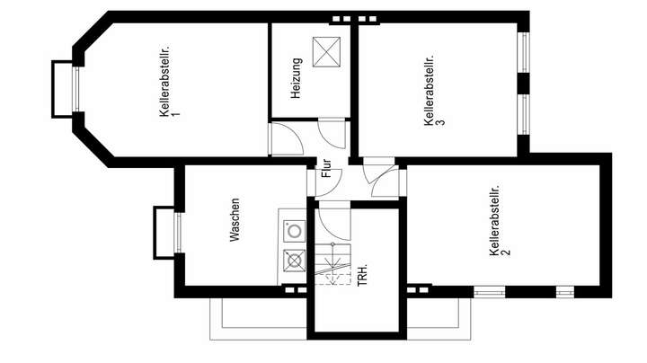
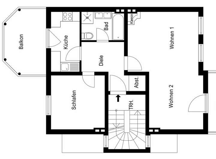
Grundriss
Kellergeschoss
>
>
Erdgeschoss
>
>
1.Obergeschoss
>
>
2.Obergeschoss
>
>
Adresse
22089 Hamburg
Interessante Orte
Preis- und Lageinformationen
Preistrend für Bestandsimmobilien in Eilbek