Dieses charmante Einfamilienhaus aus dem Jahr 1948 präsentiert sich auf einem großzügigen Grundstück von 622 m² und bietet eine Wohnfläche von 168 m². Mit sechs Zimmern eröffnet es vielfältige Gestaltungsmöglichkeiten für individuelle Wohnträume und bietet auch großen Familien oder zwei Generationen ausrechend Platz.
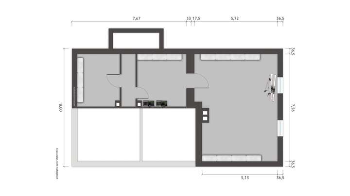
Beim Betreten des Hauses empfängt Sie ein einladender Flur, der den Weg in den Wohn- und Essbereich weist. Große Fensterfronten sorgen hier für eine angenehme Atmosphäre und bieten einen Blick ins Grüne. Die angrenzende Terrasse erweitert den Wohnraum nach draußen und lädt zu entspannten Stunden im Freien ein. Zwei großzügige Schlafzimmer sind im Erdgeschoss ebenfalls vorhanden. 
Die Küche ist funktional gestaltet und bietet ausreichend Platz. Zwei Badezimmer, eines im Erdgeschoss und eines im Obergeschoss, sind klassisch gefliest und bieten alle Annehmlichkeiten für den täglichen Komfort.
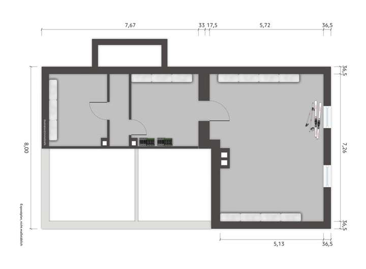
Im Obergeschoss befinden sich zwei weitere Schlafzimmer, die durch ihre großzügige Raumaufteilung und Helligkeit überzeugen. 
Im Teilkeller des Hauses ist großzügiger Stauraum vorhanden. Hier ist auch die Gas-Zentralheizungsanlage des Herstellers Buderus untergebracht.
Der kleine Garten des Hauses bietet Raum für Erholung und Freizeitaktivitäten. Hier können Sie Ihrer Kreativität freien Lauf lassen und einen individuellen Rückzugsort gestalten. Einen Doppelgarage bietet Platz für zwei Fahrzeuge.
Dieses Haus vereint den Charme vergangener Zeiten mit den Möglichkeiten moderner Wohnansprüche und bietet eine ideale Basis für ein harmonisches Familienleben.
            
        Großzügiges Zweifamilienhaus für die ganze Familie zum Kauf in Farmsen-Berne - Wentzel Dr.
                     22159 Hamburg                            
Die vollständige Adresse der Immobilie erhalten Sie vom Anbieter.
        
            
            Auf Karte anzeigen
        
        
    Die vollständige Adresse der Immobilie erhalten Sie vom Anbieter.
 
    Finanzierungszertifikat
In nur zwei Minuten zu Ihrem persönlichen Finanzierungszertifkat.
Infos
| Haustyp | Einfamilienhaus | 
|---|---|
| Wohnfläche ca. | 168 m2 | 
| Grundstücksfläche | 622 m2 | 
| Bezugsfrei ab | nach Vereinbarung | 
| Zimmer | 6 | 
| Schlafzimmer | 5 | 
| Badezimmer | 2 | 
| Garage/Stellplatz | Garage | 
| Anzahl Garage/Stellplatz | 2 | 
Kosten
| Kaufpreis | 695.000 € | 
|---|---|
| Provision | Nein | 
Finanzierungsrechner:
                    
                     Kaufpreis:
                        
                            600.000 €
                        
                    
                    
                    
                
            
                        
                            Eigenkapital:
                            
                                 600.000 €
                            
                        
                    
                
            
                        Monatliche Rate
                        0 €
                    
                    
                        
                            Effektiver Jahreszins
                        
                        0 %
                    
                    
                        Sollzinsbindung
                        10 Jahre
                    
                Bausubstanz & Energieausweis
| Baujahr | 1948 | 
|---|---|
| Objektzustand | Modernisiert | 
| Qualität der Austattung | Normal | 
| Heizungsart | Zentralheizung | 
| Wesentliche Energieträger | Gas | 
| Energieausweis | liegt vor | 
| Energieausweistyp | Bedarfsausweis | 
| Energieverbrauchskennwert | 238,0 kWh/(m²*a) | 
| Energieeffizienzklasse | G | 
                                                    238,0
                                kWh/(m²*a)
                                                
                    Energieeffizienzklasse G
- A+
- A
- B
- C
- D
- E
- F
- G
- H
- 0
- 25
- 50
- 75
- 100
- 125
- 150
- 175
- 200
- 225
- >250
Beschreibung des Objekts
Ausstattung
                - Einfamilienhaus mit Baujahr 1948
- Grundstücksfläche: 622m²
- Wohnfläche: 168 m²
- Anzahl der Zimmer: 6
- Energieeffizienzklasse: G
- Balkon vorhanden
- Gepflegter Gartenbereich
- Ruhige Wohnlage
- Gute Anbindung an öffentliche Verkehrsmittel
- Traditionelle Bauweise mit Satteldach
- Fenster mit Doppelverglasung
- Zentralheizung
- Parkmöglichkeiten vor dem Haus
               
        Lage
                Die Immobilie liegt in einer ruhigen Wohnstraße, eingebettet in eine grüne Umgebung, die zum Entspannen einlädt. Die Nachbarschaft ist geprägt von einer harmonischen Mischung aus Natur und urbanem Leben, die ein angenehmes Wohngefühl vermittelt.
Für die tägliche Nahversorgung sind mehrere Supermärkte bequem zu Fuß erreichbar, was den Einkauf zu einem stressfreien Erlebnis macht. Auch Drogerien und andere Geschäfte des täglichen Bedarfs befinden sich in der Nähe, sodass alles Notwendige schnell zur Hand ist.
Die Anbindung an den öffentlichen Nahverkehr ist hervorragend. Mehrere Bushaltestellen sind nur wenige Gehminuten entfernt, und die nächste Bahnstation ist ebenfalls gut erreichbar. Dies ermöglicht eine schnelle Verbindung in die umliegenden Stadtteile und ins Zentrum von Hamburg. Die Autobahn ist ebenfalls in kurzer Fahrzeit erreichbar, was die individuelle Mobilität zusätzlich erleichtert. Der nächste Flughafen ist ca. 10 Kilometer entfernt, was eine bequeme Anbindung für Reisen bietet.
In der Freizeit locken zahlreiche Parks und Spielplätze in der Umgebung, die besonders für Familien ein großes Plus darstellen. Sportbegeisterte finden in der Nähe verschiedene Sportstätten, die eine Vielzahl an Aktivitäten ermöglichen. Die Umgebung bietet zudem eine Auswahl an Restaurants, die für kulinarische Abwechslung sorgen und zu gemütlichen Abenden einladen.
                
        Sonstige Angaben
                Immobilienbewertung: 
Sie möchten Ihre aktuelle Immobilie verkaufen und sind bereits auf der Suche nach etwas Neuem? Dann lassen Sie uns gemeinsam den nächsten Schritt gehen. Wir von Wentzel Dr. bewerten Ihr Zuhause kostenlos und unverbindlich – direkt bei Ihnen vor Ort oder am Telefon.
Finanzierung: 
Um bestmöglich auf Ihren bevorstehenden Kauf vorbereitet zu sein, empfehlen wir Ihnen, auch die passende Finanzierung im Blick zu behalten. Gern unterstütze wir Sie dabei und bieten Ihnen mit unseren starken Partnern maßgeschneiderte Lösungen, die Ihre Wünsche und finanziellen Möglichkeiten berücksichtigen.
Sprechen Sie unseren Berater unter den angegebenen Kontaktdaten gerne an!
           
        Grundriss
                                    Keller
                                                                             >
                                        >
                                                                    
                                                                         >
                                        >
                                                                    Adresse
22159 Hamburg
Interessante Orte
Preis- und Lageinformationen
                Preistrend für Bestandsimmobilien in Farmsen-Berne
    
        
                    
            
        
     
                                     
                                     
                                     
                                     
                                     
                                     
                                     
                                     
                                     
                                     
                                     
                                     
                                     
                                     
                                     
                                     
                                     
                                     
                                     
                                     
                                     
                                     
                                     
                                     
                                    