Dieses großzügige Einfamilienhaus aus dem Jahr 1895 befindet sich in einer der beliebtesten Wohnlagen Hamburgs – im Stadtteil Wandsbek, direkt angrenzend an Marienthal. Auf einem ca. 662 m² großen Grundstück bietet das Haus rund 317 m² Wohnfläche, ergänzt durch ca. 120 m² Nutzfläche im Keller sowie 7 Außenstellplätze mit Zufahrt über den Knutzenweg.
Bei den 583m² handelt es sich um die BGF des gesamten Gebäudes.
Das Gebäude wurde in Massivbauweise errichtet und über die Jahre teilweise modernisiert (u. a. wurden einzelne Fenster erneuert). Gleichzeitig eröffnet es aufgrund des vorhandenen Instandsetzungsbedarfs viel Potenzial für individuelle (Neu-)Gestaltung und zeitgemäße Modernisierung. Der aktuelle Gewerbemieter räumt das Haus Ende 2025/ Q.1 2026, sodass das Haus leer geliefert wird.
Die Raumaufteilung erstreckt sich über vier Ebenen – Keller, Erdgeschoss, Obergeschoss und ausgebautes Dachgeschoss – und bietet flexible Nutzungsmöglichkeiten. Ob Wohnen mit großzügigem Platzangebot oder eine Kombination aus Wohnen und Praxis/ Büro: Das Haus lässt sich vielseitig an die Bedürfnisse seiner künftigen Eigentümer anpassen.
Die Dichtheitsprüfung/ Sielbefahrung wurde nicht durchgeführt und ein Energieausweis liegt nicht vor (wurde nie erstellt). Eine Fernwärmeleitung liegt in der Bärenallee, was für einen potenziellen Erwerber viele Vorteile bringt.
Weitere Fakten:
- keine Altlasten o. Baulasten
- kein Denkmalschutz
- keine Anliegerbeiträge (Auskunft Mai 2025)
leere Lieferung, provisionsfrei - gewerblich genutztes Einfamilienhaus mit Entwicklungspotenzial
22041 Hamburg
Die vollständige Adresse der Immobilie erhalten Sie vom Anbieter.
Auf Karte anzeigen
Die vollständige Adresse der Immobilie erhalten Sie vom Anbieter.
Finanzierungszertifikat
In nur zwei Minuten zu Ihrem persönlichen Finanzierungszertifkat.
Infos
| Wohnfläche ca. | 317 m2 |
|---|---|
| Nutzfläche | 120 m2 |
| Grundstücksfläche | 662 m2 |
| Bezugsfrei ab | nach Vereinbarung |
| Zimmer | 12 |
| Garage/Stellplatz | Außenstellplatz |
| Anzahl Garage/Stellplatz | 7 |
Kosten
| Kaufpreis |
1.270.000 € |
|---|---|
| Provision | Nein |
Finanzierungsrechner:
Kaufpreis:
600.000 €
Eigenkapital:
600.000 €
Monatliche Rate
0 €
Effektiver Jahreszins
0 %
Sollzinsbindung
10 Jahre
Bausubstanz & Energieausweis
| Baujahr | 1895 |
|---|---|
| Objektzustand | Gepflegt |
| Heizungsart | Gas-Heizung |
| Wesentliche Energieträger | Gas |
Beschreibung des Objekts
Ausstattung
- Massivbauweise mit Satteldach
- Holzfenster mit Isolierverglasung
- Gasheizung, dezentrale Warmwasserbereitung (tlw. nicht mehr funktionstüchtig)
- Bäder in EG, OG und DG (teilweise älter, modernisierungsbedürftig)
- Vollbad im Keller
- Einbauküche im Keller & EG
- 7 PKW-Stellplätze auf dem Grundstück
Lage
Das Objekt liegt im beliebten Stadtteil Hamburg-Wandsbek (Bezirk Wandsbek). Die Umgebung ist geprägt von hochwertigen Wohnhäusern, Villen und gepflegten Grünanlagen.
Die Anbindung ist hervorragend: U-Bahn Wandsbek Markt (200 m), S-/U-Bahn Wandsbeker Chaussee (450 m), Bushaltestelle Hammer Straße (100 m). Autobahn A24 ca. 1,5 km, Hauptbahnhof 5 km, Flughafen 9,5 km. Einkaufsmöglichkeiten, Schulen, Parks und Ärzte sind in direkter Nähe vorhanden.
Sonstige Angaben
Das Objekt eignet sich für Investoren mit Entwicklungsgedanken ebenso wie für Eigennutzer mit Platzbedarf.
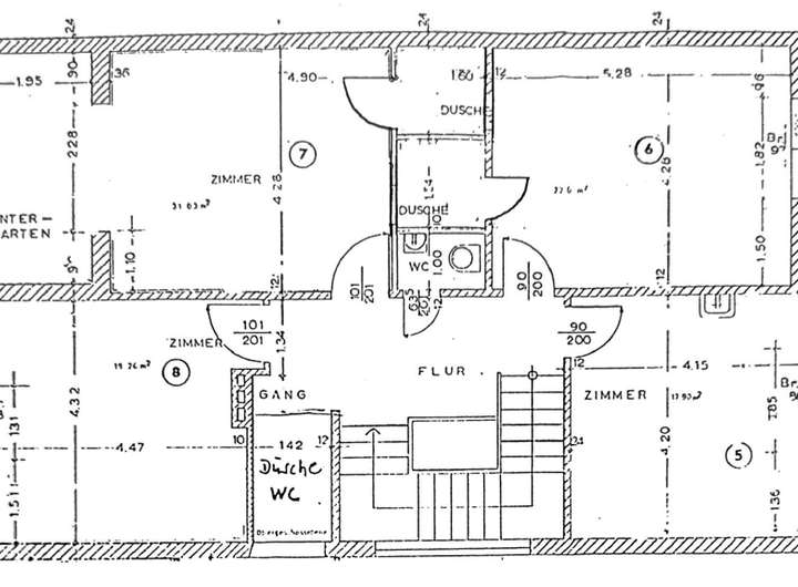
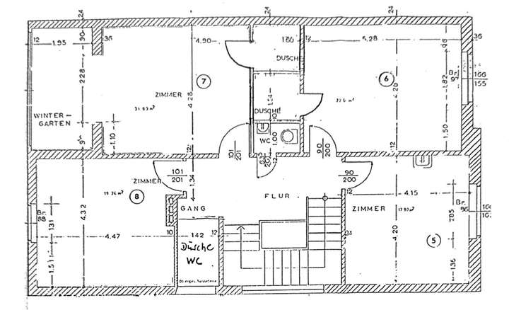
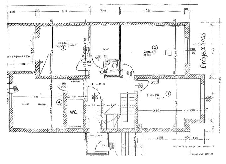
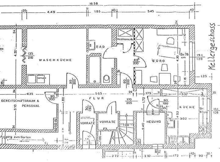
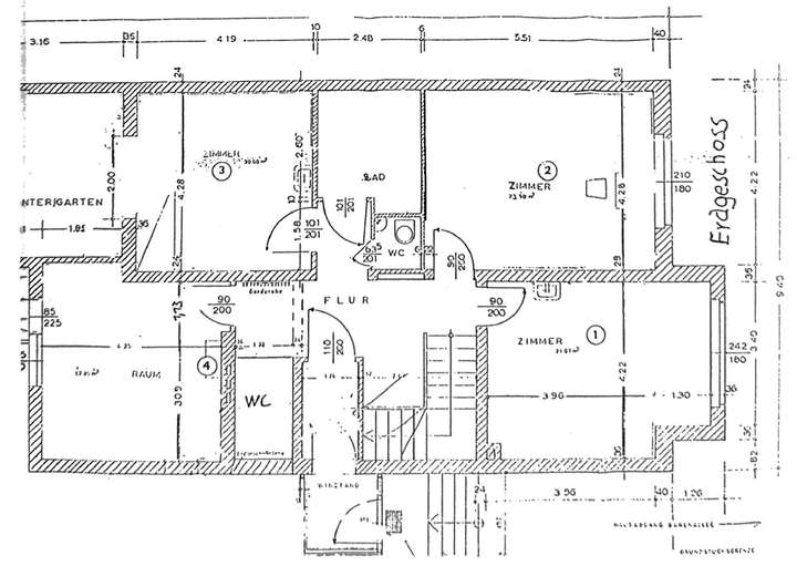
Grundriss
Keller
>
>
Erdgeschoss
>
>
1. Obergeschoss
>
>
Dachgeschoss
>
>
Adresse
22041 Hamburg
Interessante Orte
Preis- und Lageinformationen
Preistrend für Bestandsimmobilien in Marienthal