Zum Verkauf steht eine stilvolle und gepflegte Doppelhaushälfte, in Niedrigenergiebauweise. Die Wohnfläche von ca. 95 m² verteilt sich auf 2 Etagen und 4 Zimmer. Mit einer Nutzfläche von ca. 50 m² bietet das Haus ausreichend Stauraum.
Das Haus ist mit einer Fußbodenheizung im EG, sowie mit Heizkörpern im OG und Souterrain ausgestattet.
Die Doppelhaushälfte umfasst insgesamt vier Zimmer, darunter ein Badezimmer im OG und einem Duschbad im Erdgeschoss. Die Räumlichkeiten sind hell und freundlich gestaltet und bieten vielfältige Gestaltungsmöglichkeiten. Die Einbauküche bietet mit der gutdurchdachten und halboffenen Anordnung viel Platz für alle Küchenutensilien und Geschirr. Ein direkter Zugang zum Garten ist von der Küche sowie auch vom Wohnzimmer möglich.
Im Erdgeschoss ist neben der Eingangstür ein Gäste-WC mit Dusche.
Im Obergeschoss liegen 3 Zimmer und das Badezimmer mir Eckbadewanne, von dort haben Sie die Möglichkeit Ihre Wäsche über das Wäschefallrohr direkt in den Waschkeller zu befördern.
Das Souterrain ist zu einem Kosmetikstudio ausgebaut. Ein direkter Zugang über die Außentreppe ermöglicht Ihnen das Einhalten Ihrer Privatsphäre. Im Keller ist eine Toilette mit Waschbecken eingebaut. Sie können hier also gut Ihr Fußpflege- oder Kosmetikstudio etc. einrichten.
Die wunderschöne überdachte Terrasse lädt Sie zum Entspannen im Freien ein. Im Garten finden Sie eine kleine Freiterrasse aus Holz auf der Sie ebenfalls die Seele baumeln lassen können. Ein Gartenhäuschen lässt alle Gartengeräte und Fahrräder aus dem Sichtfeld verschwinden.
Die Lage der Immobilie ist zentral und dennoch ruhig gelegen. Einkaufsmöglichkeiten, Schulen und öffentliche Verkehrsmittel sind in unmittelbarer Nähe vorhanden. Die Doppelhaushälfte präsentiert sich in einem sehr guten Zustand und ist nach Vereinbarung beziehbar.
Kommen Sie zu einer Besichtigung, um sich von den Qualitäten dieses Hauses selbst zu überzeugen.
Stilvolle Doppelhaushälfte (Niedrigenergiehaus) mit ausgebautem Studio im Souterrain
22175 Hamburg
Die vollständige Adresse der Immobilie erhalten Sie vom Anbieter.
Auf Karte anzeigen
Die vollständige Adresse der Immobilie erhalten Sie vom Anbieter.
Finanzierungszertifikat
In nur zwei Minuten zu Ihrem persönlichen Finanzierungszertifkat.
Infos
| Haustyp | Doppelhaushaelfte |
|---|---|
| Wohnfläche ca. | 95 m2 |
| Grundstücksfläche | 270 m2 |
| Bezugsfrei ab | Frühjahr 2026 |
| Zimmer | 4 |
| Schlafzimmer | 3 |
| Badezimmer | 2 |
| Garage/Stellplatz | Carport |
| Anzahl Garage/Stellplatz | 1 |
Kosten
| Kaufpreis |
679.000 € |
|---|---|
| Provision |
2,90 % inkl. MwSt. Die Käufer-Courtage beträgt 2,90% des Kaufpreises inklusive der gesetzlichen Mehrwertsteuer und ist mit der Unterzeichnung eines notariellen Kaufvertrages der Interessenten von der HAMBURG FINANZ® Immobilien LA GmbH & Co. KG verdient und fällig. Wir haben mit dem Verkäufer einen provisionspflichtigen Maklervertrag in gleicher Höhe abgeschlossen. |
Finanzierungsrechner:
Kaufpreis:
600.000 €
Eigenkapital:
600.000 €
Monatliche Rate
0 €
Effektiver Jahreszins
0 %
Sollzinsbindung
10 Jahre
Bausubstanz & Energieausweis
| Baujahr | 2001 |
|---|---|
| Objektzustand | Gepflegt |
| Heizungsart | Gas-Heizung |
| Wesentliche Energieträger | Gas |
| Energieausweis | liegt vor |
| Energieausweistyp | Bedarfsausweis |
| Energieverbrauchskennwert | 111,5 kWh/(m²*a) |
| Energieeffizienzklasse | D |
111,5
kWh/(m²*a)
Energieeffizienzklasse D
- A+
- A
- B
- C
- D
- E
- F
- G
- H
- 0
- 25
- 50
- 75
- 100
- 125
- 150
- 175
- 200
- 225
- >250
Beschreibung des Objekts
Ausstattung
- Einbauküche
- ausgebauter Souterrain (Studio)
- WC auf jeder Etage
- Wäschefallrohr
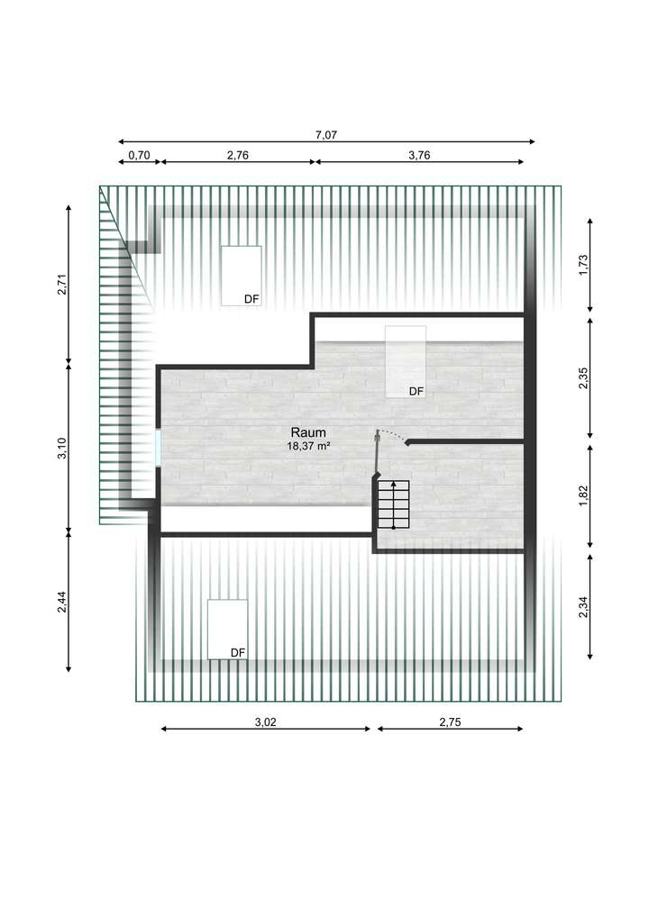
- ausgebauter Spitzboden
- Fußbodenheizung in EG und Heizkörper im OG, DG und Souterrain
- 2 Terrassen
- Gartenhäuschen
- Carport
Lage
Die Doppelhaushälfte liegt in einer ruhigen Wohnstraße in Bramfeld, einem beliebten Stadtteil im Bezirk Wandsbek.
Die gewachsene Struktur mit Einfamilienhäusern, Reihenhäusern und modernen Mehrfamilienhäusern zeichnet sich durch gepflegte Straßen, viel Grün und einer ausgezeichneten Nahversorgung aus: Bramfelder Dorfplatz mit Wochenmarkt, Marktplatz-Galerie, Supermärkte, Ärzte, Apotheken und Cafés. Ein EDEKA Markt befindet sich in 100 m Entfernung.
Größere Einkaufszentren wie AEZ Poppenbüttel oder Wandsbek Quarree sind schnell erreichbar.
Kitas, Grundschulen und weiterführende Schulen sind in unmittelbarer Nähe zu finden. Deshalb fühlen sich Familien hier ebenso wohl, wie Ruhesuchende, die Infrastruktur, Grünflächen und ein gepflegtes Umfeld schätzen.
Die Verkehrsanbindung ist durch die Metrobuslinie 17 gut und sorgt für eine schnelle Verbindung nach Barmbek, Berne, Wandsbek und in die Innenstadt. Der geplante U5-Bahnhof Bramfeld wird das Netz weiter stärken.
Bramfeld überzeugt durch eine angenehme Mischung aus städtischem Komfort und naturnaher Ruhe.
Sonstige Angaben
Alle Angaben sind ohne Gewähr und basieren ausschließlich auf den Angaben und Informationen, die uns von unserem Auftraggeber zur Verfügung gestellt wurden. Wir übernehmen keine Gewähr für die Vollständigkeit, Richtigkeit und Aktualität dieser Angaben. Änderungen vorbehalten.
Der Kaufinteressent erklärt, für eigene Rechnungen, das heißt nur für sich selbst und ohne fremden Auftrag zu handeln. Zur Erfüllung
der Verpflichtungen aus dem Geldwäschegesetz ist der Makler verpflichtet, die Identität der Vertragspartner zu überprüfen und zu dokumentieren. Bei Minderjährigen muss auch die Identität der Erziehungsberechtigten überprüft werden.
Grundriss
Erdgeschoss
>
>
Dachgeschoss
>
>
Spitzboden
>
>
Adresse
22175 Hamburg
Interessante Orte
Preis- und Lageinformationen
Preistrend für Bestandsimmobilien in Bramfeld