Dieses Haus ist mehr als nur eine Immobilie – es ist ein Zuhause mit Seele.
Es verbindet die bequeme fußläufige Nähe zum Main mit einer ruhigen Wohnlage und modernem Wohnkomfort. Historische Details treffen hier auf zeitgemäße Ausstattung und schaffen einen Ort, an dem man gern ankommt und bleibt. Wer das Besondere sucht und die Möglichkeit liebt, in wenigen Schritten am Wasser zu sein, wird sich hier sofort zuhause fühlen.
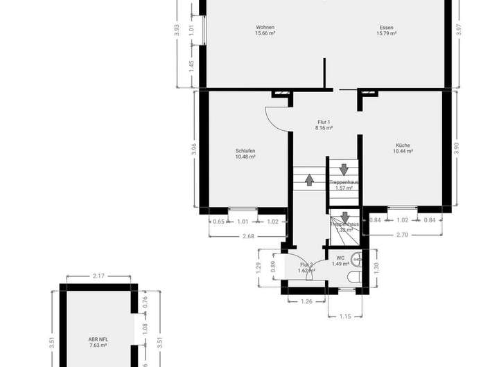
In einer angenehm verkehrsberuhigten Straße, nur einen kurzen Spaziergang vom Mainufer entfernt, entfaltet sich dieses sanierte Schmuckstück über zwei Etagen. Der einladende Eingangsbereich führt zunächst zum Gäste-WC, anschließend gelangt man über einige Stufen in den großzügigen Wohnbereich: Wohnzimmer, Essplatz und Küche sind hier harmonisch verbunden und schaffen Offenheit und Geborgenheit zugleich. Ein Kaminofen sorgt für warme, stimmungsvolle Momente und macht diesen Raum zum Herz des Hauses.
Ein weiteres, vielseitig nutzbares Zimmer auf dieser Ebene eignet sich hervorragend als Homeoffice, Gästezimmer oder Rückzugsort. Flexibilität ist hier kein Zusatz, sondern selbstverständlich.
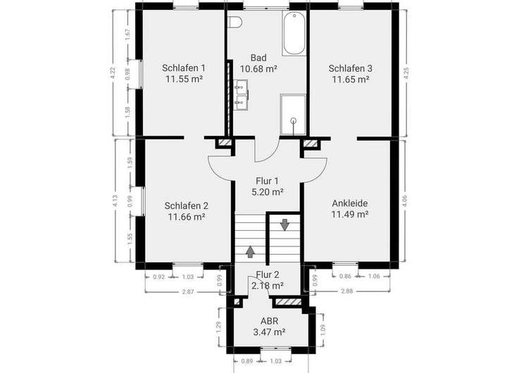
Über die schöne, original erhaltene Holztreppe aus dem Jahr 1900 erreichen Sie das Obergeschoss. Mehrere Zimmer bieten Platz für Schlafzimmer, Kinderzimmer oder individuelle Wohnideen. Das modernisierte Bad rundet das Raumangebot mit zeitgemäßem Komfort ab.
Auch der Keller erzählt Geschichte: Er stammt aus der Jahrhundertwende und bietet nicht nur Charakter, sondern auch praktische Abstellmöglichkeiten.
Rund um das Haus lassen sich Außenbereiche vielseitig nutzen – ob als Sitzecke für den Kaffee in der Sonne, Spielbereich oder grüne Ecke zum Entspannen.
Hier wohnen Sie in einem Haus, das Historie, Wohnqualität und Lagevorteil vereint.
Mit dem Main bequem zu Fuß erreichbar, einer ruhigen Umgebung und gleichzeitig guter Anbindung entsteht ein Lebensraum, der Sie jeden Tag aufs Neue bereichert.
            
        Platz für drei und Laptop
                     65795 Hattersheim am Main                            
Die vollständige Adresse der Immobilie erhalten Sie vom Anbieter.
        
            
            Auf Karte anzeigen
        
        
    Die vollständige Adresse der Immobilie erhalten Sie vom Anbieter.
    Finanzierungszertifikat
In nur zwei Minuten zu Ihrem persönlichen Finanzierungszertifkat.
Infos
| Haustyp | Einfamilienhaus | 
|---|---|
| Wohnfläche ca. | 129 m2 | 
| Nutzfläche | 65 m2 | 
| Grundstücksfläche | 230 m2 | 
| Bezugsfrei ab | nach Absprache | 
| Zimmer | 5 | 
| Badezimmer | 1 | 
| Anzahl Garage/Stellplatz | 2 | 
Kosten
| Kaufpreis | 
                675.000 € | 
        
|---|---|
| Provision | 
                            3,57% Gerne führen wir gemeinsam mit Ihnen eine Besichtigung durch und stehen im Anschluss mit weiteren Informationen zum Objekt zur Verfügung. Im Falle des Abschlusses eines Kaufvertrages wird die zu zahlende Maklerprovision von 3,57%, inklusive Mehrwertsteuer, von Ihnen getragen. Bitte beachten Sie, dass wir keine Haftung für die Angaben zum Objekt, seine Nutzung und Beschaffenheit übernehmen können. Die bereitgestellten Informationen basieren auf den Angaben des Eigentümers, und Änderungen der Bedingungen oder andere Bewertungen behält sich der/die Eigentümer*in jederzeit vor. Wir möchten darauf hinweisen, dass dieses Angebot ausschließlich für Sie bestimmt ist. Eine Weitergabe bedarf der ausdrücklichen Zustimmung durch uns, ansonsten löst die Weitergabe Provisionspflicht aus. Für weitere Fragen oder für die Vereinbarung eines Besichtigungstermins stehen wir Ihnen gerne zur Verfügung.  | 
    
Finanzierungsrechner:
                    
                     Kaufpreis:
                        
                            600.000 €
                        
                    
                    
                    
                
            
                        
                            Eigenkapital:
                            
                                 600.000 €
                            
                        
                    
                
            
                        Monatliche Rate
                        0 €
                    
                    
                        
                            Effektiver Jahreszins
                        
                        0 %
                    
                    
                        Sollzinsbindung
                        10 Jahre
                    
                Bausubstanz & Energieausweis
| Baujahr | 1900 | 
|---|---|
| Letzte Sanierung | 2025 | 
| Objektzustand | Saniert | 
| Qualität der Austattung | Gehoben | 
| Heizungsart | Wärmepumpe | 
| Wesentliche Energieträger | Solarheizung | 
| Energieausweis | liegt vor | 
| Energieausweistyp | Bedarfsausweis | 
| Energieverbrauchskennwert | 49,3 kWh/(m²*a) | 
| Energieeffizienzklasse | A | 
                                                    49,3
                                kWh/(m²*a)
                                                
                    Energieeffizienzklasse A
- A+
 - A
 - B
 - C
 - D
 - E
 - F
 - G
 - H
 
- 0
 - 25
 - 50
 - 75
 - 100
 - 125
 - 150
 - 175
 - 200
 - 225
 - >250
 
Beschreibung des Objekts
Ausstattung
                ∙ große Einbauküche mit Elektrogeräten 
∙ Gäste-WC mit Fenster
∙ Bad mit Dusche, Wanne u. Fenster
∙ Kaminofen im Wohnzimmer
∙ Schuppen für Fahrräder und Gartengeräte
∙ Klingelanlage mit Kamera und Gegensprechanlage
∙ Saniertes Haus mit historischem Flair
∙ Originaltreppe von ca. 1900
∙ Interessanter Keller aus dem Baujahr
∙ Verkehrsberuhigte Lage
∙ LAN-Anschlüsse in nahezu allen Räumen
∙ Wallbox in der Einfahrt
Sanierungen:
∙ Komplette Erneuerung der Wasser- und Stromleitungen (2017)
∙ Fassade (2018) neu angelegt und am Hauseingang gedämmt
∙ Neue Fenster (2023) für bessere Isolierung und Energieeffizienz
∙ Neue Haustür mit Fingerprint-System (2025) für schlüssellosen Zugang
∙ Photovoltaikanlage mit Speicher (2025) – eigener Strom, geringere Energiekosten
∙ Wärmepumpe (2025) – nachhaltige, effiziente Heiztechnik
∙ Neu belegtes Hoftor (2025) für gepflegte Optik
               
        Lage
                Hattersheim am Main, Stadtteil Okriftel, liegt in unmittelbarer Nähe zum Mainufer. Der Stadtteil bietet eine angenehme Mischung aus naturnahem Wohnen und guter Infrastruktur. Spazier- und Radwege entlang des Mains laden zu Freizeitaktivitäten im Grünen ein und schaffen eine hohe Wohn- und Lebensqualität.
Okriftel verfügt über verschiedene Einkaufsmöglichkeiten für den täglichen Bedarf, Restaurants sowie Cafés. Schulen, Kindergärten und Betreuungseinrichtungen befinden sich direkt vor Ort und machen die Lage besonders attraktiv für Familien. Darüber hinaus bietet Hattersheim ein vielfältiges Vereins- und Freizeitangebot, das von Sport bis Kultur reicht.
Die Verkehrsanbindung ist hervorragend: Über die nahegelegene S-Bahn-Station sind sowohl die Frankfurter Innenstadt als auch Wiesbaden in kurzer Zeit erreichbar. Mit dem Auto besteht durch die Anbindung an die A66 und A671 ebenfalls eine schnelle Verbindung in die gesamte Rhein-Main-Region. Auch der internationale Flughafen Frankfurt ist in wenigen Minuten erreichbar.
Insgesamt überzeugt die Lage durch die Kombination aus ruhigem Wohnen am Wasser, guter Infrastruktur vor Ort und optimaler Anbindung an die umliegenden Städte.
                
        Sonstige Angaben
                Gerne führen wir gemeinsam mit Ihnen eine Besichtigung durch und stehen im Anschluss mit weiteren Informationen zum Objekt zur Verfügung. Im Falle des Abschlusses eines Kaufvertrages wird die zu zahlende Maklerprovision von 3,57%, inklusive Mehrwertsteuer, von Ihnen getragen. Bitte beachten Sie, dass wir keine Haftung für die Angaben zum Objekt, seine Nutzung und Beschaffenheit übernehmen können. Die bereitgestellten Informationen basieren auf den Angaben des Eigentümers, und Änderungen der Bedingungen oder andere Bewertungen behält sich der/die Eigentümer*in jederzeit vor.
Wir möchten darauf hinweisen, dass dieses Angebot ausschließlich für Sie bestimmt ist. Eine Weitergabe bedarf der ausdrücklichen Zustimmung durch uns, ansonsten löst die Weitergabe Provisionspflicht aus. Für weitere Fragen oder für die Vereinbarung eines Besichtigungstermins stehen wir Ihnen gerne zur Verfügung.
           
        Grundriss
                                    Erdgeschoss
                                                                            
                                        >
                                                                    
                                                                                                                
                                        >
                                                                    
                                    Dachgeschoss
                                                                            
                                        >
                                                                    
                                                                                                                
                                        >
                                                                    
                                    Kellergeschoss
                                                                            
                                        >
                                                                    
                                                                        
                                        >
                                                                    Adresse
65795 Hattersheim am Main
Interessante Orte
Preis- und Lageinformationen
                Preistrend für Bestandsimmobilien in Hattersheim am Main