Objektbeschreibung:
Willkommen in Ihrem neuen Zuhause! Diese moderne Immobilie, erbaut im Jahr 2015, bietet ein außergewöhnliches Wohnambiente auf einem großzügigen Grundstück von
983 m2.
Mit einer Wohnfläche von insgesamt 165 Quadratmetern verteilt auf 6 Zimmern und einer Doppelgarage, die einen direkten Zugang zum Haus ermöglicht, wird Ihr Wohntraum wahr.
Renovierung / Umbau
Das Haus wurde in 2024 komplett renoviert. Glasvliestapeten, Elektrik, hochwertige Fliesenbeläge (auch in der Garage), hochwertige moderne Einbauküche, Außenanlagen, Überdachung, Garten mit Bepflanzung und eine Außensauna.
Innenbereich:
Betreten Sie das Haus durch den einladenden Hausflur oder durch die komfortable Doppelgarage, die nicht nur Platz für Ihre Fahrzeuge bietet, sondern auch einen direkten Zugang ins Innere des Hauses gewährt. Großzügige Raumhöher EG: 2,65 m
Wohnzimmer: Ein helles und großzügiges Wohnzimmer erwartet Sie, ideal zum Entspannen und Genießen von gemeinsamen Momenten mit Familie und Freunden. Große Fensterflächen mit Iso- Dreifachverglasung bringen viel Tageslicht herein und schaffen neben dem verbesserten Schall- und Wärmeschutz eine freundliche Atmosphäre.
Küche: Die moderne Küche ist ein Highlight dieses Hauses. Sie ist voll ausgestattet mit modernen Küchengeräten, Kochinsel, etc. Die große Fensterfront ermöglicht einen direkten Zugang zur Terrasse, welche sich in Kombination mit der angrenzenden Küche ideal für Grillabende eignet.
Schlafzimmer: Im Erdgeschoss befindet sich ein geräumiges Schlafzimmer, das Ihnen Privatsphäre und Komfort bietet. Ebenso können die Schlafräume in das OG verlegt werden.
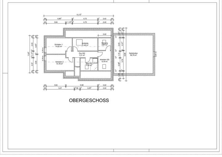
Gästezimmer und Büro: Im Dachgeschoss finden Sie zwei gemütliche Gästezimmer sowie ein Büro, perfekt für die Bedürfnisse Ihrer Familie.
Bäder: Zwei Bäder mit ebenerdiger Dusche und modernem Design stehen zur Verfügung. Das Wannenbad im Dachgeschoss lädt zur Entspannung ein. Ebenfalls finde Sie im Erdgeschoss ein Gäste-WC und einen großzügigen Hauswirtschaftsraum.
Sauna: Außensauna in massiver Blockbohlenbauweise mit Vorraum. Hochwertiger Saunaofen mit 10 kW von HUUM + Steuerung.
Beschreibung der Ausstattung, besondere Ausstattungsmerkmale:
- Fußbodenheizung sorgt für wohlige Wärme in allen Räumen.
- Die moderne Raumgestaltung schafft eine freundliche und einladende Atmosphäre.
- Hochwertige Dämmmaterialien und Stilvolles Design.
- Energieeffizienzklasse B garantiert niedrige Energiekosten.
- Dreifachverglaste Fenster bieten hervorragende Wärmedämmung und Schallschutz
- Eine effiziente Gastherme gewährleistet angenehmes Raumklima und spart Energie.
- Ebenerdige Dusche erlaubt Barrierefreies wohnen
- Doppelgarage mit viel Platz für Autos und mehr
- 2 x Kraftstrom 400 Volt für z.B. Ladestationen E-Autos, Hybrid, etc.
- Elektrische Außenmarquise für Südterrasse
- Überdachte Nordterrasse
- Abluftanlagen im Gäste-WC und Hauswirtschaftsraum
- Elektrische Rollläden im EG
- Moderne Elektrik
- Mehrschaliges Außenmauerwerk, Klinkerfassade, effiziente Dämmung.
Zusammenfassung:
•Baujahr: 2015
•Komplette Renovierung / Umbau in 2024 / neue Außensauna in 2025
•Neue Gartenanlage in 2024
•Wohnfläche ges.: ca. 165 m²
•Nutzfläche ges.: ca. 112 m²
•Grundstücksgröße: 983 m²
•Park-/Stellplätze: Außenstellplätze 4 und mehr
•Doppelgarage für 2 große Fahrzeuge (55 m²)
•Objektzustand: Sehr gepflegt
Finanzierungszertifikat
In nur zwei Minuten zu Ihrem persönlichen Finanzierungszertifkat.
Infos
| Haustyp | Einfamilienhaus |
|---|---|
| Etagenzahl | 2 |
| Wohnfläche ca. | 165 m2 |
| Nutzfläche | 112 m2 |
| Grundstücksfläche | 983 m2 |
| Bezugsfrei ab | nach Absprache |
| Zimmer | 6 |
| Schlafzimmer | 3 |
| Badezimmer | 2 |
| Garage/Stellplatz | Garage |
| Anzahl Garage/Stellplatz | 1 |
Kosten
| Kaufpreis |
475.000 € |
|---|---|
| Provision | Nein |
Finanzierungsrechner:
Kaufpreis:
600.000 €
Eigenkapital:
600.000 €
Monatliche Rate
0 €
Effektiver Jahreszins
0 %
Sollzinsbindung
10 Jahre
Bausubstanz & Energieausweis
| Baujahr | 2015 |
|---|---|
| Bauphase | Haus fertig gestellt |
| Objektzustand | Neuwertig |
| Wesentliche Energieträger | Gas |
| Energieausweis | liegt vor |
| Energieausweistyp | Bedarfsausweis |
| Energieverbrauchskennwert | 67,0 kWh/(m²*a) |
| Energieeffizienzklasse | B |
67,0
kWh/(m²*a)
Energieeffizienzklasse B
- A+
- A
- B
- C
- D
- E
- F
- G
- H
- 0
- 25
- 50
- 75
- 100
- 125
- 150
- 175
- 200
- 225
- >250
Beschreibung des Objekts
Ausstattung
Terrasse, Garten, Vollbad, Duschbad, Sauna, Einbauküche, Gäste-WC, Barrierefrei, Fliesen, Sonstiges (s. Text)
Bemerkungen:
- Hochwertige Großformatfliesen in 2024
- Vliestape + Malerarbeiten in 2024
- Fußbodenheizung
- 3-fach Verglasung, teilw. elektr. Rollladen
- Zwei Terrassen (Nord u. Süd) mit elektr. Markise bzw. Überdachung
- Gartenbereiche sehr gut eingewachsen und eingezäunt, hochwertige Bepflanzung
- Neue massive Blockbohlensauna mit Vorraum in 2025
- Neue hochwertige NOLTE Einbauküche (Bj. 2024)
- Doppelgarage mit 55 m², mit direkten Zugang zum Wohnhaus.
(Doppelgarage eignet sich auch hervorragend als Hobbywerkstatt)
- Nutzfläche über der Garage mit 55 m² mit Seilwinde (als Lager etc.)
- Barrierefreies wohnen im EG (Wohnen, Schlafen, Bad, WC)
- Seniorengerecht
- Laden Elektroauto: Kraftstrom 2 x 400 Volt, 2 x 230 Volt
Lage
Dieses gepflegte Einfamilienhaus befindet sich in der Samtgemeinde Hage, Ortsteil Berumbur, unweit der beliebten Küstenorte Norddeich, Nessmersiel und Dornumersiel. Die ostfriesischen Inseln sind in der Nähe und mittels den Fähren schnell & bequem zu erreichen. Sehr gute Nordsee Luftqualität!
Autobahnanbindung über Wittmund, Emden, etc. Nächste internationale Flugplätze in Bremen, Hamburg, Amsterdam.
Mehrere Supermärkte, div. Discounter, Restaurants, Tankstellen, Ärzte, Apotheken,
öffentliche Einrichtungen, Bushaltestellen, etc. befinden sich in der Nähe zu diesem Objekt. Die Ortsmitte der Samtgemeinde Hage ist in 5 Minuten zu erreichen. Der Kindergarten ist vor Ort, Grundschulen / KGS befinden sich in Hage, Gymnasien in Norden.
Infrastruktur (im Umkreis von 5 km):
Apotheke, Lebensmittel-Discount, Allgemeinmediziner, Kindergarten, Grundschule, Hauptschule, Realschule, Gymnasium, Gesamtschule, Öffentliche Verkehrsmittel
Sonstige Angaben
Heizungsart: Fußbodenheizung
Energieträger: Gas
ohne-makler (OM) ist weder Anbieter noch Vermittler der Immobilie. OM betreibt eine Plattform für Immobilieneigentümer, die unter anderem die gleichzeitige Veröffentlichung einzelner Inserate auf mehreren Immobilienportalen ermöglicht. Die Inhalte dieser Inserate werden ausschließlich von Dritten verantwortet. Für die Richtigkeit, Vollständigkeit oder Rechtmäßigkeit der Angaben übernimmt OM keine Haftung. Hinweise auf mögliche Rechtsverstöße können jederzeit gemeldet werden und werden nach Prüfung umgehend bearbeitet.
Grundriss
Grundriss
>
>
Grundriss
>
>
Adresse
Linienweg 5 c, 26524 Berumbur
Interessante Orte
Preis- und Lageinformationen
Preistrend für Bestandsimmobilien in Berumbur