Willkommen in Ihrem neuen Zuhause! Dieses charmante Zweifamilienhaus aus dem Jahr 1960 überzeugt durch seine Großzügigkeit, seinen gepflegten Zustand und den weitläufigen Garten, der Raum für Familie, Entspannung und Natur bietet.
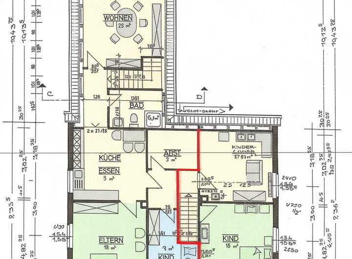
Auf rund 194 m² Wohnfläche verteilen sich mindestens 8 Zimmer und 2 Badezimmer, die vielfältige Nutzungsmöglichkeiten eröffnen – ob für Familien, Mehrgenerationen oder Wohnen und Arbeiten unter einem Dach.
Das Haus ist in zwei Wohneinheiten aufgeteilt:
Die helle Wohnung im Obergeschoss (ca. 90 m²) ist langjährig vermietet. Der übrige Teil des Hauses steht zur sofortigen Eigennutzung bereit und kann ganz nach den eigenen Vorstellungen gestaltet werden.
Eine Gasheizung (Energieklasse H) sorgt für Wärme, der Glasfaseranschluss ermöglicht modernes Arbeiten und schnelles Internet.
Zum Haus gehören außerdem eine Garage, ein Carport und ein teil unterkellerter Bereich, der zusätzlichen Stauraum bietet.
Besonders hervorzuheben ist der große Garten mit viel Platz für Freizeit, Spiel und Erholung – ein echtes Paradies für Familien, Naturfreunde oder Hobbygärtner.
Dieses Zweifamilienhaus bietet ideale Voraussetzungen, um Wohnen und Lebensqualität miteinander zu verbinden – mit viel Potenzial, Charakter und Raum für die Zukunft.
Finanzierungszertifikat
In nur zwei Minuten zu Ihrem persönlichen Finanzierungszertifkat.
Infos
| Haustyp | Mehrfamilienhaus |
|---|---|
| Etagenzahl | 2 |
| Wohnfläche ca. | 194 m2 |
| Nutzfläche | 194 m2 |
| Grundstücksfläche | 1.374 m2 |
| Bezugsfrei ab | 1.11.2025 |
| Zimmer | 8 |
| Schlafzimmer | 3 |
| Badezimmer | 2 |
| Garage/Stellplatz | Garage |
| Anzahl Garage/Stellplatz | 1 |
Kosten
| Kaufpreis |
399.000 € |
|---|---|
| Provision | Nein |
| Mieteinnahmen | 450 € |
Finanzierungsrechner:
Kaufpreis:
600.000 €
Eigenkapital:
600.000 €
Monatliche Rate
0 €
Effektiver Jahreszins
0 %
Sollzinsbindung
10 Jahre
Bausubstanz & Energieausweis
| Baujahr | 1960 |
|---|---|
| Letzte Sanierung | 1992 |
| Bauphase | Haus fertig gestellt |
| Objektzustand | Gepflegt |
| Qualität der Austattung | Normal |
| Heizungsart | Gas-Heizung |
| Wesentliche Energieträger | Gas |
| Energieausweis | liegt vor |
| Energieausweistyp | Bedarfsausweis |
| Energieverbrauchskennwert | 288,0 kWh/(m²*a) |
| Energieeffizienzklasse | H |
288,0
kWh/(m²*a)
Energieeffizienzklasse H
- A+
- A
- B
- C
- D
- E
- F
- G
- H
- 0
- 25
- 50
- 75
- 100
- 125
- 150
- 175
- 200
- 225
- >250
Beschreibung des Objekts
Lage
Leiferde ist eine familienfreundliche Gemeinde mit ruhiger, naturnaher Lage und guter Infrastruktur. Einkaufsmöglichkeiten, Bäcker, Schulen, darunter ein Gymnasium, sowie Kindergärten sind bequem erreichbar.
Die Anbindung ist hervorragend: Gifhorn und Braunschweig sind schnell erreichbar, und der Bahnhof Leiferde ermöglicht unkomplizierten Pendlerverkehr nach Hannover oder Wolfsburg.
So verbindet die Gemeinde ländliche Ruhe mit allen Annehmlichkeiten des täglichen Lebens und guter Erreichbarkeit der umliegenden Städte.
Adresse
Lönsweg 4, 38542 Leiferde
Interessante Orte
Preis- und Lageinformationen
Preistrend für Bestandsimmobilien in Leiferde