Place 4
Einfamilienhaus
Unsere Sonderaktion "PLACE" macht deinen Haustraum endlich realisierbar. Ob gemeinsames Familienleben im großzügigen Wohn- und Essbereich oder Rückzugsmöglichkeiten in den privaten Zimmern - PLACE 4 passt sich perfekt deinem Alltag an.
Aussenmaße: 8.24 m x 9.44 m
Place 4 - Aktionshaus
56288 Bubach
Die vollständige Adresse der Immobilie erhalten Sie vom Anbieter.
Auf Karte anzeigen
Die vollständige Adresse der Immobilie erhalten Sie vom Anbieter.
Finanzierungszertifikat
In nur zwei Minuten zu Ihrem persönlichen Finanzierungszertifkat.
Infos
| Haustyp | Einfamilienhaus |
|---|---|
| Etagenzahl | 2 |
| Wohnfläche ca. | 123 m2 |
| Grundstücksfläche | 200 m2 |
| Zimmer | 4 |
| Schlafzimmer | 3 |
| Badezimmer | 1 |
Kosten
| Kaufpreis |
268.999 € |
|---|---|
| Provision | Nein |
Finanzierungsrechner:
Kaufpreis:
600.000 €
Eigenkapital:
600.000 €
Monatliche Rate
0 €
Effektiver Jahreszins
0 %
Sollzinsbindung
10 Jahre
Bausubstanz & Energieausweis
| Baujahr | 2026 |
|---|---|
| Bauphase | Haus in Planung (projektiert) |
| Heizungsart | Wärmepumpe |
Beschreibung des Objekts
Ausstattung
Inklusiv-Leistungen
Architektenleistung
Bau-Sicherheitspaket
Heizungsanlage- und Elektropaket
Dreifach verglaste Fenster inkl. Aluminiumrollläden
Luft-Wasser-Wärmepumpe
Echtholztreppe
Bodenbeläge und Tapeten
Luftdichtigkeitsmessung
Lichte Raumhöhe von 2,75 m
Dämm- und Beplankungspaket
Haustechnik inklusive Rohrleitungen
Kontrollierte Be- und Entlüftungsanlage mit Wärmerückgewinnung
Sanitärobjekte
Innentüren, Zargen und Fliesen
Steckdosen
Alle Einzelheiten sind in unserer Baubeschreibung nachzulesen.
*ausgeschlossen Apartmenthäuser
Lage
Dieses Haus wird für ein vorhandenes oder geplantes Grundstück vorgesehen.
-Der Grundstückskauf erfolgt direkt über den Eigentümer
-Exakte Grundstücksdaten erhalten Sie im persönlichen Beratungsgespräch
-Gerne bauen wir auch auf einem Grundstück Ihrer Wahl
Auf Wunsch unterstützen wir Sie aktiv bei der Grundstückssuche.
So bleiben Sie flexibel: Ob Sie bereits ein Baugrundstück besitzen, sich für eines unserer vermittelten Angebote interessieren oder noch auf der Suche sind - wir begleiten Sie Schritt für Schritt zu Ihrem Traumhaus.
Gerne berate ich Sie unverbindlich in einem unserer Musterhäuser zu Ihrem geplanten Bauvorhaben, um den Traum vom Eigenheim zu verwirklichen.
Reiner Jodeleit
Mobil: 0170 22 44 507
reiner.jodeleit@allkauf.de
Sonstige Angaben
Mit allkauf profitieren Sie von individueller Planung mit maximaler Gestaltungsfreiheit, energieeffizientem Bauen nach neuesten Standards sowie innovativer Haustechnik und hochwertiger Ausstattung bereits im Grundpreis. Kurze Bau- und Montagezeiten, über 40 Jahre Erfahrung im Hausbau und geprüfte Markenqualität "Made in Germany" geben Ihnen die nötige Sicherheit. Dazu kommen eine verlässliche Festpreisgarantie, persönliche Beratung auch in Finanzierungsfragen sowie aktive Unterstützung bei der Beantragung von Fördermitteln - für ein rundum sorgenfreies Bauerlebnis
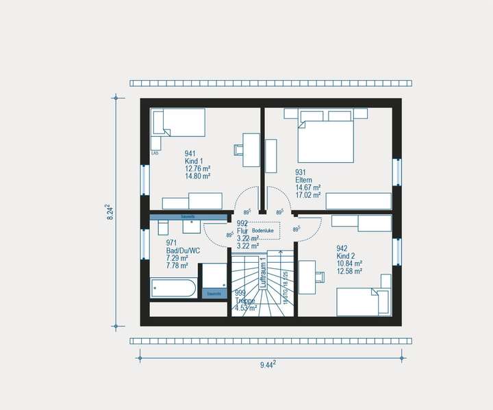
Grundriss
Grundriss
>
>
Grundriss
>
>
Adresse
56288 Bubach
Interessante Orte
Preis- und Lageinformationen
Preistrend für Bestandsimmobilien in Bubach