Das Architektenhaus bietet vielfältige Nutzungsmöglichkeiten und überzeugt durch eine durchdachte Raumaufteilung sowie zahlreiche praktische Ausstattungsmerkmale.
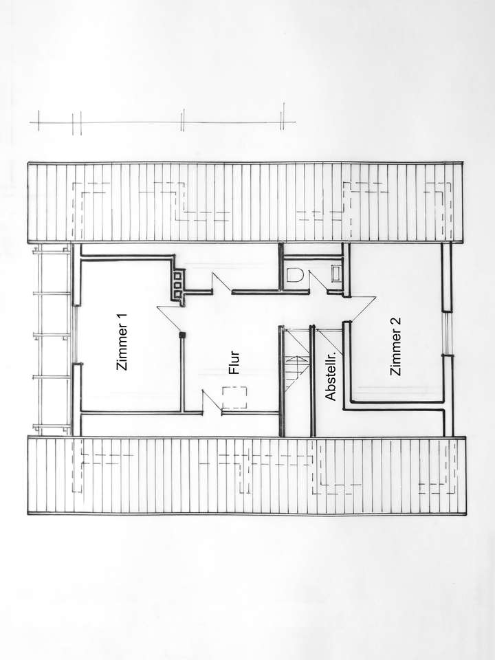
Im Inneren bietet das Objekt insgesamt vier Schlafzimmer, ein geräumiges Wohnzimmer mit Essbereich und angrenzendem Büro, eine separate Küche, ein Tageslichtbad sowie ein zusätzliches Gäste-WC.
Der Keller ist von innen und außen begehbar und bietet mehrere funktionale Abstellräume inklusive Werkstatt, einem weiteren WC sowie einer großen Garage.
Der Außenbereich bietet zahlreiche Nutzungsmöglichkeiten. Ein Carport, eine Terrasse und ein Balkon mit herrlichem Panoramablick sowie das weitläufige Grundstück bieten vielfältige Möglichkeiten zur Entfaltung.
Ein besonderes Highlight ist das direkt angrenzende Gartengrundstück, das zusätzliche Nutzungsmöglichkeiten eröffnet.
Ob Modernisierung, Umbau oder Neubau – hier beginnt die Natur direkt vor der Tür. Das großzügige Grundstück (Bauvoranfrage für weitere Bebauung gestellt) und die solide Bausubstanz bieten viele Möglichkeiten – sowohl für Familien als auch für Bauträger mit Ideen.
Sonstiges:
Heizung: Öl-Zentralheizung
Energieausweis: Energieeffizienzklasse H liegt zur Besichtigung vor
Großzügiges Einfamilienhaus in ruhiger Lage mit großem Grundstück
64367 Mühltal
Die vollständige Adresse der Immobilie erhalten Sie vom Anbieter.
Auf Karte anzeigen
Die vollständige Adresse der Immobilie erhalten Sie vom Anbieter.
Finanzierungszertifikat
In nur zwei Minuten zu Ihrem persönlichen Finanzierungszertifkat.
Infos
| Haustyp | Einfamilienhaus |
|---|---|
| Etagenzahl | 2 |
| Wohnfläche ca. | 144 m2 |
| Nutzfläche | 115 m2 |
| Grundstücksfläche | 1.013 m2 |
| Bezugsfrei ab | 2.11.2025 |
| Zimmer | 7 |
| Schlafzimmer | 4 |
| Badezimmer | 1 |
| Garage/Stellplatz | Garage |
| Anzahl Garage/Stellplatz | 1 |
Kosten
| Kaufpreis |
750.000 € |
|---|---|
| Provision | Nein |
Finanzierungsrechner:
Kaufpreis:
600.000 €
Eigenkapital:
600.000 €
Monatliche Rate
0 €
Effektiver Jahreszins
0 %
Sollzinsbindung
10 Jahre
Bausubstanz & Energieausweis
| Baujahr | 1965 |
|---|---|
| Bauphase | Haus fertig gestellt |
| Objektzustand | Renovierungsbedürftig |
| Qualität der Austattung | Normal |
| Heizungsart | Öl-Heizung |
| Wesentliche Energieträger | Öl |
| Energieausweis | liegt vor |
| Energieausweistyp | Verbrauchsausweis |
| Energieverbrauchskennwert | 223,3 kWh/(m²*a) |
| Energieeffizienzklasse | G |
223,3
kWh/(m²*a)
Energieeffizienzklasse G
- A+
- A
- B
- C
- D
- E
- F
- G
- H
- 0
- 25
- 50
- 75
- 100
- 125
- 150
- 175
- 200
- 225
- >250
Beschreibung des Objekts
Lage
Das Einfamilienhaus liegt in ruhiger Lage in Mühltal – Nieder-Beerbach, direkt am Feldrand und nur 30 Gehminuten von der Burg Frankenstein entfernt.
Es beeindruckt durch seine Naturnähe und den unverbaubaren 160°-Panoramablick über Felder und Wiesen.
Die Anschlussstelle A5 Darmstadt-Eberstadt ist nur 7 km entfernt und in wenigen Autominuten erreichbar – mit direkter Anbindung in Richtung Darmstadt, Wiesbaden, Frankfurt, Mannheim und Heidelberg.
In 5 km Entfernung befindet sich ein Einkaufzentrum mit mehreren Supermärkten.
Weitere Dokumente
GrundstückGrundriss
Grundriss Erdgeschoss
>
>
Grundriss Keller
>
>
Grundriss Obergeschoss
>
>
Ansicht Eingang
>
>
Ansicht Gartenseite
>
>
Ansicht Rückseite
>
>
Adresse
64367 Mühltal
Interessante Orte
Preis- und Lageinformationen
Preistrend für Bestandsimmobilien in Mühltal