Dieses gepflegte Einfamilienhaus bietet viel Platz für die ganze Familie. Die gelungene Raumaufteilung schafft ein behagliches
Wohngefühl und lässt individuelle Gestaltungsmöglichkeiten zu.
Das Herzstück des Hauses ist das großzügige Wohn- und Esszimmer mit direktem Zugang zur Terrasse und dem großzügigen Garten mit Gartenhütte. Hier können Sie entspannte Stunden mit Familie und Freunden verbringen.
Die separate Küche bietet genügend Platz für Hobbyköche und ist durch ihre Nähe zum Essbereich optimal in den Alltag integriert.
Insgesamt fünf geräumige Schlafzimmer bieten viel Platz für eine Familie und Homeoffice-Lösungen. Zwei Badezimmer, zwei Gäste-WC, ein großer Hobbyraum sowie praktische Nebenräume wie Hauswirtschaftsraum runden das Angebot ab.
Das Haus verfügt über ein Carport und einen Außenstellplatz. Außerdem gehört auch ein Tiefgaragenplatz dazu.
Keine Makleranfragen.
Haus kann direkt und ohne Maklergebühr erworben werden.
Großzügiges Reihenendhaus mit Garten in Darmstadt-Kranichstein
64289 Darmstadt
Die vollständige Adresse der Immobilie erhalten Sie vom Anbieter.
Auf Karte anzeigen
Die vollständige Adresse der Immobilie erhalten Sie vom Anbieter.
Finanzierungszertifikat
In nur zwei Minuten zu Ihrem persönlichen Finanzierungszertifkat.
Infos
| Haustyp | Reiheneckhaus |
|---|---|
| Etagenzahl | 4 |
| Wohnfläche ca. | 195 m2 |
| Nutzfläche | 14 m2 |
| Grundstücksfläche | 275 m2 |
| Bezugsfrei ab | 26.10.2025 |
| Zimmer | 7 |
| Schlafzimmer | 5 |
| Badezimmer | 2 |
| Anzahl Garage/Stellplatz | 3 |
Kosten
| Kaufpreis |
740.000 € |
|---|---|
| Provision | Nein |
Finanzierungsrechner:
Kaufpreis:
600.000 €
Eigenkapital:
600.000 €
Monatliche Rate
0 €
Effektiver Jahreszins
0 %
Sollzinsbindung
10 Jahre
Bausubstanz & Energieausweis
| Baujahr | 1990 |
|---|---|
| Letzte Sanierung | 2022 |
| Bauphase | Haus fertig gestellt |
| Objektzustand | Gepflegt |
| Qualität der Austattung | Normal |
| Heizungsart | Zentralheizung |
| Wesentliche Energieträger | Gas |
| Energieausweis | liegt vor |
| Energieausweistyp | Verbrauchsausweis |
| Energieverbrauchskennwert | 80,0 kWh/(m²*a) |
| Energieeffizienzklasse | C |
80,0
kWh/(m²*a)
Energieeffizienzklasse C
- A+
- A
- B
- C
- D
- E
- F
- G
- H
- 0
- 25
- 50
- 75
- 100
- 125
- 150
- 175
- 200
- 225
- >250
Beschreibung des Objekts
Lage
Das Haus befindet sich im familienfreundlichen Stadtteil Kranichstein in Darmstadt. Die moderate Bevölkerungsdichte und die gute Mischung aus Mehrfamilien- und Einfamilienhäusern prägen das Bild. Die Anbindung mit öffentlichen Verkehrsmittel ist gut. Fussläufig sind Straßenbahn und Bus zu erreichen, die das Viertel gut mit dem Rest der Stadt verbinden. Zahlreiche Grünflächen und Parks wie der nahegelegene Wald laden zu Spaziergängen und Freizeitaktivitäten ein. Das Jagdschloss Kranichstein ist fussläufig zu erreichen. Schulen, Kindergärten und Einkaufsmöglichkeiten sind ebenfalls in der Nähe, was Kranichstein zu einem idealen Wohnort für junge Familien macht.
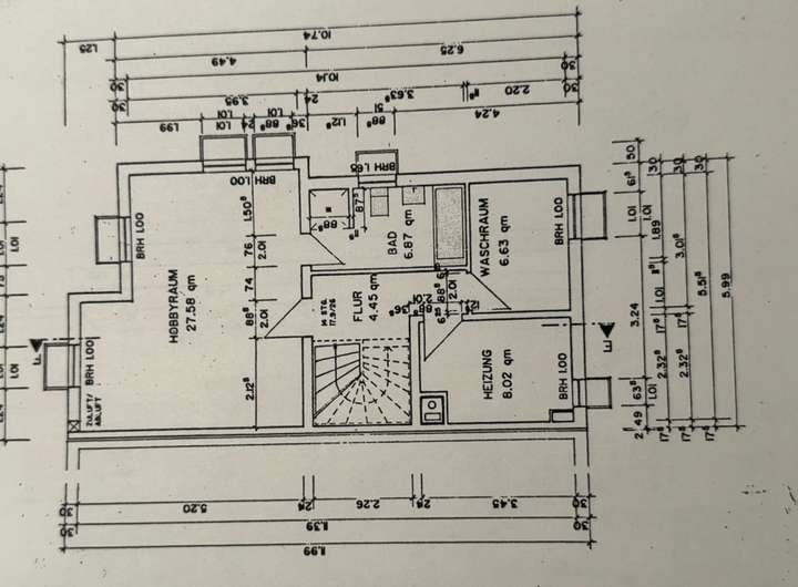
Grundriss
Erdgeschoss
>
>
Bildschirmfoto 20251026 um 201
>
>
Untergeschoss
>
>
Erdgeschoss
>
>
Adresse
64289 Darmstadt
Interessante Orte
Preis- und Lageinformationen
Preistrend für Bestandsimmobilien in Kranichstein