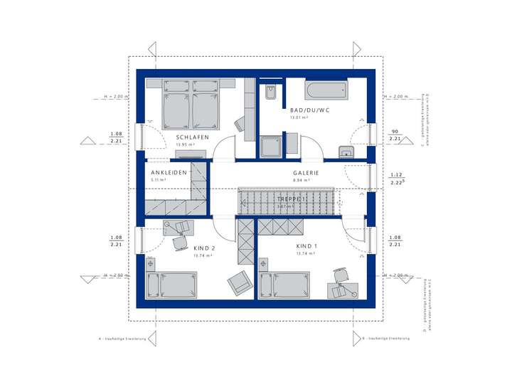
Das EDITION 145 von Bien-Zenker besticht durch sein elegantes, unaufdringliches Design, das sowohl in ländliche als auch in urbane Wohngebiete harmonisch integriert werden kann. Mit einer großzügigen Wohnfläche von 145,72 m² und fünf Zimmern bietet dieses Haus ein durchdachtes Raumkonzept, das den Bedürfnissen moderner Familien gerecht wird. Der offene Wohn-, Ess- und Kochbereich im Erdgeschoss schafft eine einladende Atmosphäre, in der sich Familie und Freunde treffen und gemeinsam Zeit verbringen können. Im Obergeschoss erwarten Sie gemütliche Privaträume sowie ein helles Homeoffice, das Ihnen die Möglichkeit bietet, Beruf und Privates optimal zu vereinen. Hier findet jeder Bewohner seinen persönlichen Lieblingsplatz und die optimale Balance zwischen Rückzug und Kommunikation.
Die Ausstattung des EDITION 145 lässt keine Wünsche offen. Eine sorgfältige Auswahl an Materialien und die Berücksichtigung individueller Wünsche sorgen für höchsten Wohnkomfort. Das großzügige Grundstück von 450 m² ermöglicht Ihnen nicht nur, die Natur direkt vor der Haustür zu genießen, sondern auch Ihre Gartenideen zu verwirklichen. Die lichtdurchfluteten Räume schaffen eine einladende Wohnatmosphäre und tragen zu einem angenehmen Raumklima bei. Jedes Detail wurde bedacht, um Ihnen ein Zuhause zu bieten, in dem Sie sich rundum wohlfühlen können.
Sie profitieren von der Ausbaustufe, bei der Bien-Zenker den kompletten Hausbau für Sie übernimmt - vom Rohbau bis zur letzten Fliese. Dabei werden alle Anforderungen des staatlichen Qualitätssiegels für Nachhaltigkeit erfüllt, was Ihnen nicht nur maximalen Komfort sichert, sondern auch die Möglichkeit bietet, attraktive Förderungen über die KfW in Anspruch zu nehmen. Der reibungslose Bauablauf sorgt dafür, dass Sie sich entspannt zurücklehnen können, während Ihr Traumhaus entsteht.
Bei Bien-Zenker ist es nie nur »Haus.« Es ist Zuhause, es ist Ankommen, es ist Familie. Bien-Zenker, das sind 80.000 gebaute Häuser, mehr als 700 Mitarbeitende und über 115 Jahre Erfolgsgeschichte. Der Pionier des Fertighauses mit Sitz im hessischen Schlüchtern zählt zu den größten und erfahrensten Fertighausanbietern Deutschlands. Dank Know-how, Leidenschaft und Einfühlungsvermögen wird jede Baufamilie individuell und kompetent beraten und unterstützt - bis sie den Schlüssel in die Tür des eigenen Heims stecken können. Mit wohngesunden Materialien und zukunftsweisenden Standards ist nicht nur jedes Bien-Zenker Haus für die Zukunft gerüstet, sondern auch jeder Bauherr.
Grundrisse und Abbildungen können Extras zeigen. Flächenangaben nach DIN 277.
Bien-Zenker EDITION 145: Ihr individuelles Traumhaus in Hanau
63457 Hanau
Die vollständige Adresse der Immobilie erhalten Sie vom Anbieter.
Auf Karte anzeigen
Die vollständige Adresse der Immobilie erhalten Sie vom Anbieter.
Finanzierungszertifikat
In nur zwei Minuten zu Ihrem persönlichen Finanzierungszertifkat.
Infos
| Wohnfläche ca. | 145 m2 |
|---|---|
| Grundstücksfläche | 450 m2 |
| Zimmer | 5 |
Kosten
| Kaufpreis |
778.800 € |
|---|---|
| Provision | Nein |
Finanzierungsrechner:
Kaufpreis:
600.000 €
Eigenkapital:
600.000 €
Monatliche Rate
0 €
Effektiver Jahreszins
0 %
Sollzinsbindung
10 Jahre
Bausubstanz & Energieausweis
| Baujahr | unbekannt |
|---|
Beschreibung des Objekts
Ausstattung
Der Grundriss des EDITION 145 ist ideal für Familien oder Paare, die Wert auf ein harmonisches Miteinander legen. Mit fünf Zimmern bietet Ihnen das Haus ausreichend Platz, um sowohl gemeinsame Zeit im offenen Wohn-, Ess- und Kochbereich zu verbringen als auch Rückzugsmöglichkeiten zu schaffen. Die Anordnung der Räume sorgt für eine optimale Privatsphäre, während die lichtdurchfluteten Fensterfronten für eine helle, freundliche Atmosphäre sorgen und den Raum größer wirken lassen.
Besonders hervorzuheben sind die Komfortdetails des EDITION 145. Der großzügige Garten lädt zum Entspannen und Spielen ein, während die hellen, lichtdurchfluteten Räume für ein angenehmes Wohnklima sorgen. Die Möglichkeit, ein Homeoffice einzurichten, bietet Ihnen Flexibilität und eine perfekte Balance zwischen Beruf und Freizeit. Ob auf der Terrasse oder im Garten - hier können Sie die warmen Sonnenstrahlen genießen und schöne Stunden mit der Familie verbringen.
Die Ausbaustufe, die Ihnen angeboten wird, sorgt für maximalen Komfort während des gesamten Bauprozesses. Bien-Zenker übernimmt den kompletten Hausbau, inklusive Innenausbau, sodass Sie sich um nichts kümmern müssen. Vom Rohbau bis zur letzten Fliese wird jeder Schritt professionell für Sie erledigt. Dies gewährleistet nicht nur einen reibungslosen Ablauf, sondern auch die Erfüllung aller Anforderungen des staatlichen Qualitätssiegels für Nachhaltigkeit, wodurch Sie von Förderungen profitieren können. So wird der Bau Ihres Traumhauses zu einer entspannten und erfreulichen Erfahrung.
Lage
Hanau bietet Ihnen eine hervorragende Lebensqualität mit einer Vielzahl an Bildungseinrichtungen, medizinischen Versorgungsmöglichkeiten, Einkaufskriterien und Freizeitaktivitäten. In der unmittelbaren Umgebung finden Sie zahlreiche Schulen und Kindergärten, die eine gute Erziehung Ihrer Kinder unterstützen. Zudem gibt es verschiedene Einkaufsmöglichkeiten, die von kleinen Boutiquen bis hin zu großen Supermärkten reichen. Für die Gesundheitsversorgung stehen Ihnen mehrere Arztpraxen und Kliniken zur Verfügung, die schnell und einfach erreichbar sind.
Die Anbindung an den öffentlichen Nahverkehr ist in Hanau ausgezeichnet. Busse und Bahnen bringen Sie schnell in die umliegenden Städte und Regionen. Die Autobahn A66 ist ebenfalls in kurzer Zeit zu erreichen, was Ihnen eine optimale Verbindung zu den Metropolregionen Rhein-Main und Frankfurt ermöglicht. Dies macht Hanau zu einem idealen Wohnort für Pendler und Familien, die die Vorzüge einer Stadt genießen möchten, ohne auf die Ruhe und den Komfort einer ländlichen Umgebung zu verzichten.
Adresse
63457 Hanau
Interessante Orte
Preis- und Lageinformationen
Preistrend für Bestandsimmobilien in Hanau