Hochwertige Doppelhaushälfte-Stadtvilla 131/Verblendsteinvariante in gehobener Ausstattung als förderfähiges KfW-Effizienzhuas 40.
Perfekt für die ganze Familie. Gebaut in norddeutscher Tradition STEIN auf STEIN gemauert! Hier erwarten Sie ca. 130,91m² Wohnfläche auf 2 Etagen mit einen geräumigen Wohn/Esszimmer, einer Küche, Flur, Gäaste-WC und einem Flur/Diele im EG sowie einem Elternzimmer und 2 Kindeerzimmer, einem großen Vollbad und einem Flur im OG.
Selbstverständlich ist der GRundriss als Vorschlag zu verstehen und individuelle an Ihre Bedürfnisse anpassbar.
TOP Neubau in Sackgassenlage...BUCHORN-Massivhaus baut Ihre exklusive Doppelhaushälfte/Stadtvilla
22397 Hamburg
Die vollständige Adresse der Immobilie erhalten Sie vom Anbieter.
Auf Karte anzeigen
Die vollständige Adresse der Immobilie erhalten Sie vom Anbieter.
Finanzierungszertifikat
In nur zwei Minuten zu Ihrem persönlichen Finanzierungszertifkat.
Infos
| Haustyp | Doppelhaushaelfte |
|---|---|
| Etagenzahl | 2 |
| Wohnfläche ca. | 130 m2 |
| Nutzfläche | 136,56 m2 |
| Grundstücksfläche | 521 m2 |
| Zimmer | 4 |
| Schlafzimmer | 3 |
| Badezimmer | 1 |
Kosten
| Kaufpreis |
725.000 € |
|---|---|
| Provision |
12.138,-€ 3,57% Maklercourtage allein auf den Kaufpreis Baugrundstück (340.000,-€). Nicht auf den neubau selbst! |
Finanzierungsrechner:
Kaufpreis:
600.000 €
Eigenkapital:
600.000 €
Monatliche Rate
0 €
Effektiver Jahreszins
0 %
Sollzinsbindung
10 Jahre
Bausubstanz & Energieausweis
| Baujahr | 2026 |
|---|---|
| Bauphase | Haus in Planung (projektiert) |
| Objektzustand | Nach Vereinbarung |
| Qualität der Austattung | Gehoben |
| Heizungsart | Wärmepumpe |
| Wesentliche Energieträger | expose.parameter.energySourcesEnev2014.HEAT_SUPPLY |
Beschreibung des Objekts
Ausstattung
Die Ihnen hier angebotene Stadtvilla 131-Doppelhaushälfte hat u.a. folgende Ausstattungsmerkmale:
1. Moderne Luftwärmepumpe der Marke:
Wolf
2. Zentrale Wohnraumbelüftungsanlage
mit kontrollierter Wärmerückgewinnung
der Marke: Wolf
3. Erhöhte Dämmung in der Außenwand,
unter der Fundamentsohle sowie
in der Geschossdecke zwischen OG
& Spitzboden
4. Glasierte oder nicht glänzende
Tondachpfannen
5. Dachunterschläge und Stirnbrett aus
hochwertigen PVC-Kunststoffprofilen
Farbe: WEIß
6. INKLUSIVE Maler- Tapezier- und
Spachtelarbeiten
7. INKLUSIVE Bodenlagsarbeiten in den
NICHT gefliesten Räumen mit einem
Designbelag der Firma Zerrssen /
Modell: Watt`n Boden in verschiedenen
Farbtönen und Mustern
8. INKLUSIVE einer ca. 20m² große
Außenterrasse
9. INKLUSIVE gepflastertem KfZ-Stellplatz
vor Ihrem Neubau
Weitere überzeugende Vorteile von BUCHORN-Bau für unsere Bauherren:
1. Individuelle Planung
Jedes Bauvorhaben beginnt mit einer
Vision. Unsere Experten setzen sich mit
Ihnen zusammen, um Ihre Träume und
Wünsche in maßgeschneiderte Bau-
pläne zu übersetzen. IHR Zuhause soll
so einzigartig sein, wie Sie selbst!
2. Massivbauweise STEIN auf STEIN
Wir bauen auf Langlebigkeit und
Qualität. Unsere Massivbauweise
garantiert Stabilität, hervorragende
Dämmwerte und eine nachhaltige
Bauweise, die IHR Zhause für die
Zukunft rüstet!
3. Schlüsselfertige Häuser
Von der ersten Skizze bis zum Einzug
kümmern wir uns um alles. Unsere
schlüsselfertigen Lösungen bieten
IHNEN ein sorgenfreies Bauvorhaben, dei dem SIE entspannt den Tag der
Schlüsselübergabe entgegensehen können.
4. Alles aus EINER HAND
Vergessen Sie die Koordination
zahlreicher Dienstleister! Bei uns
erhalten Sie alle Leistungen aus einer
Hand, was den Bauprozess nicht nur
effizienter, sondern auchtransparenter
macht.
5. FESTPREISGARANTIE
Überraschungen bei den Kosten???
Nicht mit uns!!! Unsere Festpreisgarantie
deines Traumhauses ist garantiert, damit
SIE pünktlichIHR neues Zuhause
genießen können.
6. Fertigstellungsgarantie
Wir stehen zu unserem Wort. Die
termingerechte Fertigstellung IHRES
Traumhauses ist garantiert damit SIE
pünktlich IHR neues Zuhause genießen
können.
Lage
TOP-Baugrundstück in verkehrsberuhigter Sackgassenlage!!!
Sonstige Angaben
BUCHORN-Bau....Das ist Kompetenz und Leidenschaft im Bauwesen!
An der Spitze des Unternehmens steht Alexander Buchorn, der Gründer und Geschäftsführer.
Alexander Buchorn, ein Meister im Maurer- und Betonbauhandwerk, hat bereits mit 24 Jahren seine Meisterprüfung absolviert undsich direkt danach in die Selbstständigkeit gewagt. Seine Vision, aktuelle Bautrends mit den höchsten Qualitätsstandards zu binden hat BUCHORN-Bau zu einem Synomym für excellentes Bauhandwerk gemacht.
Wir sorgen dafür, das Kundenwünsche nicht nur erfüllt , sonder nauch übertroffen werden! Unsere Leidenschaft für das Bauhandwerk und das Streben nach Perfektion prägen die Philosophie unseres Unternehmens und garantieren die Realisierung von Wohnträumen auf höchstem Niveau!
Weitere Dokumente
Hausbaukatalog BUCHORN-MassivhAllgemeine Baubeschreibung Buc
Katalog Preisliste
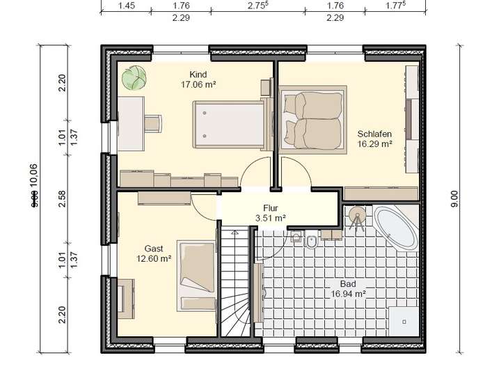
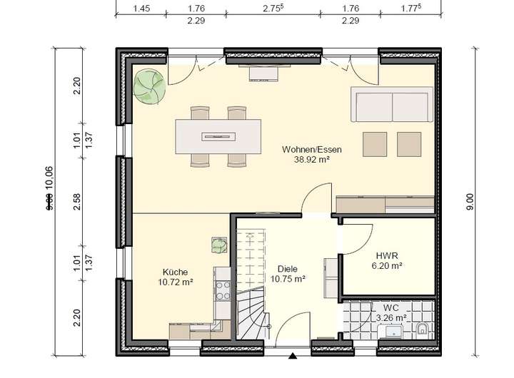
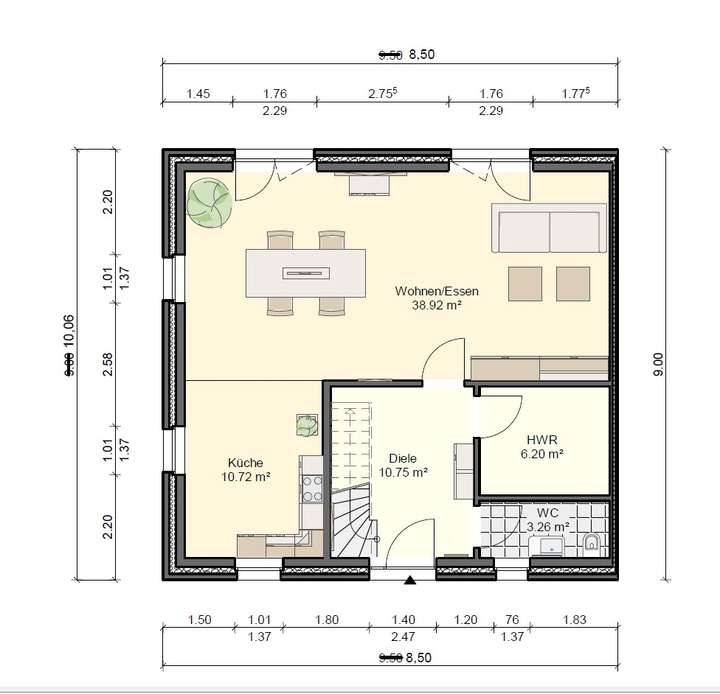
Grundriss
Grundriss EG
>
>
Grundriss OG
>
>
Adresse
22397 Hamburg
Interessante Orte
Preis- und Lageinformationen
Preistrend für Bestandsimmobilien in Wohldorf-Ohlstedt