Diese gepflegte Doppelhaushälfte, erbaut im Jahr 1966, befindet sich in einer ruhigen Wohnanlage von Schöppenstedt und bietet auf ca. 120 m² Wohnfläche mit insgesamt 5 Zimmern viel Raum für eine Familie oder Paare mit Platzbedarf. Das Haus wird mit Hilfe von Nachtspeicheröfen beheizt. Das großzügige Eigentumsgrundstück mit 1060 m² bietet Gartenliebhabern, Kindern sowie Hobbygärtnern viel Raum zur Entfaltung und Gestaltung.
Der Zugang zum Haus erfolgt über das Kellergeschoss, das ein Schlafzimmer sowie ein Duschbad beherbergt – ideal als Gäste- oder privater Rückzugsbereich.
Im Erdgeschoss erwartet Sie ein geräumiger Flur mit Garderobe, von dem aus Sie das große, helle Wohnzimmer betreten, das das Zentrum des Familienlebens werden kann. Die Küche ist mit einer funktionalen Einbauküche ausgestattet und verfügt über einen kleinen Essbereich, ideal für das schnelle Frühstück.
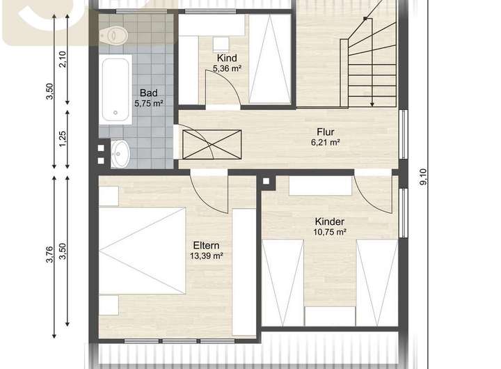
Über den Treppenaufgang gelangen Sie in das Obergeschoss. Ein weiteres Schlafzimmer sowie zwei flexibel nutzbare Kinder- oder Arbeitszimmer stehen Ihnen hier zur Verfügung. Das Badezimmer im Obergeschoss ist mit einer Badewanne einem WC sowie einem Fenster, das für eine gute Belüftung sorgt, ausgestattet.
Eine wertvolle Erweiterung des Raumangebots stellt der Anbau dar, in dem eine Werkstatt sowie ein beheizter Hobbyraum untergebracht sind – perfekt für Handwerk, Hobbys oder zusätzlichen Stauraum. Von hier aus gelangen Sie auch auf die einladende Terrasse, die zum Entspannen im Freien einlädt.
Für Ihre Fahrzeuge steht eine Doppelgarage mit elektrischem Sektionaltor zur Verfügung. Der weitläufige Garten mit ca. 800 m² begeistert nicht nur durch seine Größe, sondern auch durch ein tolles Gartenhaus, das zusätzliche Möglichkeiten für Freizeitgestaltung oder als Geräteschuppen bietet.
Dieses Objekt in Schöppenstedt vereint großzügiges Wohnen mit einem großen Außenbereich und viel Potenzial zur individuellen Verwirklichung des eigenen Wohntraums.
Doppelhaushälfte in Schöppenstedt mit Eigentumsgrundstück! Meine Immobilie = Mein Partner!
38170 Schöppenstedt
Die vollständige Adresse der Immobilie erhalten Sie vom Anbieter.
Auf Karte anzeigen
Die vollständige Adresse der Immobilie erhalten Sie vom Anbieter.
Finanzierungszertifikat
In nur zwei Minuten zu Ihrem persönlichen Finanzierungszertifkat.
Infos
| Haustyp | Doppelhaushaelfte |
|---|---|
| Etagenzahl | 2 |
| Wohnfläche ca. | 120 m2 |
| Grundstücksfläche | 1.060 m2 |
| Bezugsfrei ab | sofort |
| Zimmer | 5 |
| Schlafzimmer | 3 |
| Badezimmer | 2 |
| Garage/Stellplatz | Garage |
| Anzahl Garage/Stellplatz | 2 |
Kosten
| Kaufpreis |
195.000 € |
|---|---|
| Provision |
2,58 % Käuferprovision inklusive Umsatzsteuer. Die Käufer-Provision beträgt 2,58 % vom Kaufpreis inkl. MwSt. Die Käufer-Provision ist verdient und fällig mit notarieller Beurkundung. Die Maklerhaus 38 GmbH hat einen provisionspflichtigen Maklervertrag in gleicher Höhe mit dem Verkäufer abgeschlossen. |
Finanzierungsrechner:
Kaufpreis:
600.000 €
Eigenkapital:
600.000 €
Monatliche Rate
0 €
Effektiver Jahreszins
0 %
Sollzinsbindung
10 Jahre
Bausubstanz & Energieausweis
| Baujahr | 1966 |
|---|---|
| Bauphase | Haus fertig gestellt |
| Objektzustand | Renovierungsbedürftig |
| Qualität der Austattung | Einfach |
| Heizungsart | Nachtspeicherofen |
| Wesentliche Energieträger | Strom |
| Energieausweis | liegt vor |
| Energieausweistyp | Bedarfsausweis |
| Energieverbrauchskennwert | 154,2 kWh/(m²*a) |
| Energieeffizienzklasse | E |
154,2
kWh/(m²*a)
Energieeffizienzklasse E
- A+
- A
- B
- C
- D
- E
- F
- G
- H
- 0
- 25
- 50
- 75
- 100
- 125
- 150
- 175
- 200
- 225
- >250
Beschreibung des Objekts
Ausstattung
+ Baujahr 1966
+ 120 m² Wohnfläche
+ 1.060 m² Eigentumsgrundstück
+ 5 Zimmer
+ 3 Schlafzimmer
+ 2 Badezimmer
+ Einbauküche
+ Doppelgarage
+ Garten mit Gartenhaus
+ Anbau mit Werkstatt und beheiztem Hobbyraum
+ Terrasse
+ Abstellräume
Lage
Schöppenstedt ist eine charmante Kleinstadt im Landkreis Wolfenbüttel in Niedersachsen und liegt landschaftlich reizvoll eingebettet in eine Mulde zwischen den beiden bewaldeten Höhenzügen Elm im Norden und Asse im Süden. Diese idyllische Lage im Nördlichen Harzvorland beschert der Umgebung eine malerische Kulisse mit grünen Wiesen und dichten Wäldern, was die Gegend zu einem attraktiven Wohnort für Naturliebhaber macht, die gerne wandern oder spazieren gehen, beispielsweise an den renaturierten Schöppenstedter Teichen. Die Stadt selbst ist historisch bekannt als die Heimat der berühmten Schelmenfigur Till Eulenspiegel, dem auch ein Museum gewidmet ist. Obwohl Schöppenstedt ein Grundzentrum mit gesicherter Nahversorgung, Ärzten und einer gewachsenen Infrastruktur bildet, profitiert es von der guten Verkehrsanbindung an größere Städte. Durch seine Lage östlich des Mittelzentrums Wolfenbüttel und in überschaubarer Entfernung zu Braunschweig bestehen wichtige Pendlerbeziehungen dorthin. Die Anbindung erfolgt sowohl über die regionalen Straßen als auch über den örtlichen Bahnhof, der Schöppenstedt an das Schienennetz anbindet und so die Mobilität in die umliegende Region gewährleistet.
Sonstige Angaben
Gerne laden wir Sie zu einer Besichtigung ein, um Ihnen vielleicht Ihr neues Zuhause bekannt zu machen.
Bei Interesse und zur Vereinbarung von Besichtigungsterminen setzen Sie sich bitte mit uns über das Kontaktformular in Verbindung. Bitte geben Sie hierbei Ihre vollständige Kontaktadresse an. Unvollständige Anfragen werden nicht bearbeitet.
Unser Angebot ist nur für den Empfänger bestimmt. Da die in diesem Exposé enthaltenen Angaben auf Informationen des Eigentümers beruhen, können wir für die Richtigkeit trotz aller Sorgfalt keine Gewähr übernehmen. Hierfür bitten wir höflich um Ihr Verständnis.
Die Datenverarbeitung erfolgt auf Grundlage von Art. 6 Abs. 1 lit. b) DSGVO. Sie müssen dabei diejenigen personenbezogenen Daten angeben, die für die Bearbeitung Ihres jeweiligen Anliegens bzw. die Vorbereitung oder Durchführung der Geschäftsbeziehung mit Ihnen erforderlich sind. Ohne diese Daten werden wir nicht in der Lage sein, Ihre Anfrage zu bearbeiten bzw. den Vertrag mit Ihnen zu erfüllen. Ich stimme daher zu, das Maklerhaus 38 GmbH meine personenbezogenen Daten im Einzelfall z.B. bei Kauf- oder Mietvertragsabschlüssen abspeichert und an Dritte (Eigentümer/Notar/Behörden) übermitteln darf.
Adresse
38170 Schöppenstedt
Interessante Orte
Preis- und Lageinformationen
Preistrend für Bestandsimmobilien in Schöppenstedt