Schluss mit Träumereien, packen wir`s an!!!
+15 Monate Festpreisgarantie
+Sie möchten effizient und nachhaltig bauen?
+Finanzierung ohne Eigenkapital, Förderung macht es möglich!?
+Durch Eigenleistung viel Geld sparen?
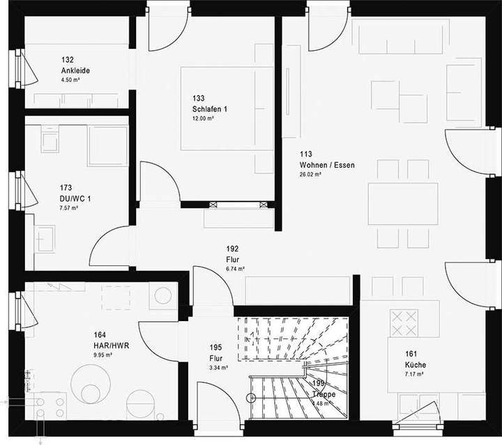
+Freie Grundrissgestaltung?
+Wir haben förderfähige Häuser
Bestimmen Sie ihren Energieverbrauch doch selbst, massa Haus macht es möglich. Werden Sie autark und sparen damit viel Geld.
Willkommen bei massa Haus, sprechen Sie gleich Ihren exklusiven Beratungstermin ab
über 40.000 glückliche massa- Baufamilien können sich nicht irren!!!
Rufnummer: 0170- 9910440
karsten.traut@massa-haus.de
https://www.massa-haus.de/verkaeufer/karsten-traut/
Mehrgenerationenhaus auf 163 qm! Wir setzen Trend´s, tolles Grundstück inklusive
38350 Helmstedt
Die vollständige Adresse der Immobilie erhalten Sie vom Anbieter.
Auf Karte anzeigen
Die vollständige Adresse der Immobilie erhalten Sie vom Anbieter.
Finanzierungszertifikat
In nur zwei Minuten zu Ihrem persönlichen Finanzierungszertifkat.
Infos
| Haustyp | Mehrfamilienhaus |
|---|---|
| Etagenzahl | 2 |
| Wohnfläche ca. | 163 m2 |
| Grundstücksfläche | 700 m2 |
| Bezugsfrei ab | Nach Absprache |
| Zimmer | 6 |
| Schlafzimmer | 2 |
| Badezimmer | 2 |
Kosten
| Kaufpreis |
352.490 € |
|---|---|
| Provision | Nein |
Finanzierungsrechner:
Kaufpreis:
600.000 €
Eigenkapital:
600.000 €
Monatliche Rate
0 €
Effektiver Jahreszins
0 %
Sollzinsbindung
10 Jahre
Bausubstanz & Energieausweis
| Baujahr | 2026 |
|---|---|
| Bauphase | Haus in Planung (projektiert) |
| Objektzustand | Erstbezug |
| Qualität der Austattung | Gehoben |
| Heizungsart | Wärmepumpe |
Beschreibung des Objekts
Ausstattung
Ausbauhaus vom Marktführer, von Außen fix und fertig, professionell zum Innenausbau vorbereitet. Sie möchten ihr Traumhaus schlüsselfertig oder einzugsfertig haben?
Kein Thema, fragen Sie einfach nach.
Das Angebot beinhaltet:
- projektiertes Ausbauhaus mit Bodenplatte
- Technikpaket inkl. Fußbodenheizung u.v.m.
- Rollläden aus Alu inklusive
- Panoramaverglasung
- Mehrraum durch hohen Kniestock im OG
- Freiraum gratis (2,75m Deckenhöhe)
- hochdämmende Außenwand und 3-fach Wärmeschutzverglasung
- Beispiel- Baugrundstück
- Architektenleistung
- Bodengutachten
- 5-Fach- Versicherungspaket inkl.
- durch Eigenleistung beim Innenausbau Geld sparen? Bei massahaus geht das!
- u.v.m. Noch Fragen?
*Abbildung mit Sonderwünschen
* zzgl. restlicher Innenausbau und Baunebenkosten
Lage
Profitieren Sie als Kunde von unserem Grundstücksservice.
Das Grundstück liegt nicht weit vom Kita, Schulen und zahlreichen Einkaufsstätten.
Auch die öffentlichen Verkehrsmittel sind in der Nähe. Und der Bäcker vor Ort kümmert sich auch Sonntags um die Frühstücksbrötchen.
Sollte Ihnen das Grundstück nicht zusagen, suche ich für Sie ein anderes Grundstück aus unserer Grundstücksbörse.
Sonstige Angaben
Mit massa bauen heißt:
·Mein persönlicher Service
·mit Profis bauen
·professionelle und individuelle Beratung
·Mitgestaltung der Grundrisse
·15 Monate Festpreisgarantie
·Bezahlung des Hauses nach Abnahme Baufortschritt
·Professionelle Ausbauberatung vor Ort
·Sicherheit eines Großunternehmens mit über 40 Jähriger Markterfahrung
·Gesundes Bauen: TÜV-Siegel "Toxproof"
·Gerne unterstützen wir Sie bei Ihrer Finanzierung
·bauen ohne Eigenkapital?? Eigenleistung macht es möglich
·Fragen Sie uns auch nach unserem Batteriespeicher mit PV-Anlage
Grundriss
T 16.01 EG
>
>
T 16.01 OG
>
>
Adresse
38350 Helmstedt
Interessante Orte
Preis- und Lageinformationen
Preistrend für Bestandsimmobilien in Helmstedt