Dieses charmante, leerstehende und mietfreie Zweifamilienhaus in Frankfurt-Goldstein vereint Geschichte, viel Platz und Möglichkeiten – und begeistert schon auf den ersten Blick mit seinem großzügigen Grundstück und dem idyllischen Garten. Ob als Zuhause für die ganze Familie, zur Vermietung oder als solide Kapitalanlage: Diese Immobilie eröffnet Ihnen Perspektiven.
Grundstück im Erbbaurecht
Das Haus steht auf einem Erbbaurechtsgrundstück der Stadt Frankfurt am Main – ein seriöser und verlässlicher Erbbaurechtsgeber, der Käufern ein Höchstmaß an Sicherheit bietet. Der ursprüngliche Vertrag stammt aus den Jahren 1935/1942, die aktuelle Laufzeit ist bis zum 31.12.2040 festgeschrieben. Ein Nachtrag bietet jedoch bereits heute die Verlängerung bis zum 31.12.2111 an. Damit verbleiben noch rund 86 Jahre Restlaufzeit – eine langfristige und sichere Perspektive, die Banken ebenso wie Käufern eine verlässliche Grundlage für die Finanzierung bietet. Die Laufzeit bis 2111 bedeutet „fast Eigentum“ – für Käufer wie für Banken völlig unproblematisch.
Der aktuelle Erbbauzins ist auf jährlich 4.881,20 € festgesetzt. Er basiert auf der Nutzung mit maximal drei Wohneinheiten. Wird eine vierte Wohneinheit gebildet, erhöht sich der Erbbauzins um weitere 930,00 € pro Jahr. Der Zins ist akzeptabel, fest kalkulierbar, steuerlich absetzbar und über eine Wertsicherungsklausel an den Verbraucherpreisindex gekoppelt – damit transparent und nachvollziehbar. Besonders vorteilhaft ist die Möglichkeit, den Vertrag flexibel auf drei oder vier Wohneinheiten anzupassen, was Käufern zusätzliche Gestaltungsspielräume eröffnet.
Ein Erbbaurecht dieser Art bietet den Vorteil, dass Sie das Haus selbst zu einem attraktiven Kaufpreis erwerben können, ohne die vollen Grundstückskosten finanzieren zu müssen.
Der weitläufige Garten mit altem Baumbestand, einem liebevoll angelegten Fischteich mit Kois und zwei gemütlichen Freisitzen – einer davon mit Außenkamin – lädt zum Verweilen ein. Hier finden Sie Raum für Entspannung und gesellige Momente. Auch die vorhandenen Nebengebäude bieten zusätzlichen Stauraum für Hobbys und Gartenutensilien. Eine Garage und Stellplätze befinden sich direkt am Zugang.
Das Haus selbst blickt auf eine Baugeschichte bis ins Jahr 1942 zurück und wurde 1965 erweitert. Damit verbindet es zeitlosen Charakter mit einem großzügigen Raumangebot. Einige Renovierungen stehen an – die ideale Gelegenheit, um eigene Ideen umzusetzen und das Haus nach Ihren Vorstellungen zu gestalten.
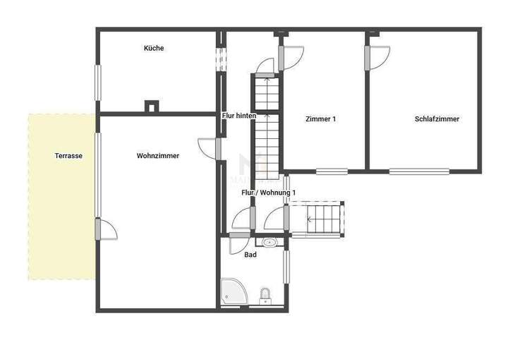
Im Erdgeschoss empfängt Sie eine helle 3-Zimmer-Wohnung mit direktem Zugang zur Terrasse. Neben einem großzügigen Wohnzimmer erwarten Sie ein Kinder- oder Arbeitszimmer, ein Schlafzimmer, eine große Wohnküche, ein Tageslichtbad mit Dusche sowie eine Abstellkammer.
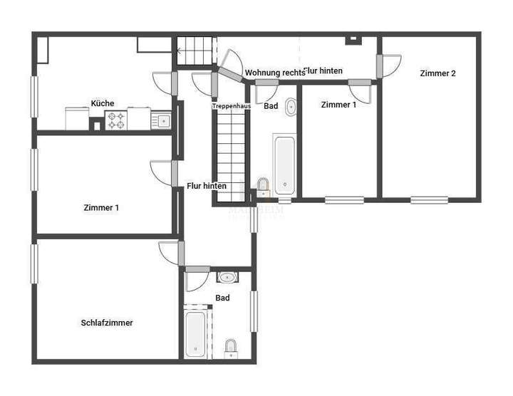
Über die Treppe gelangen Sie in das 1. Obergeschoss. Auf der linken Seite befindet sich eine gemütliche 2-Zimmer-Wohnung mit Schlafzimmer, Wohnzimmer, einer Wohnküche inklusive Einbauküche, einem Tageslichtbad mit Badewanne sowie einer großzügigen Diele.
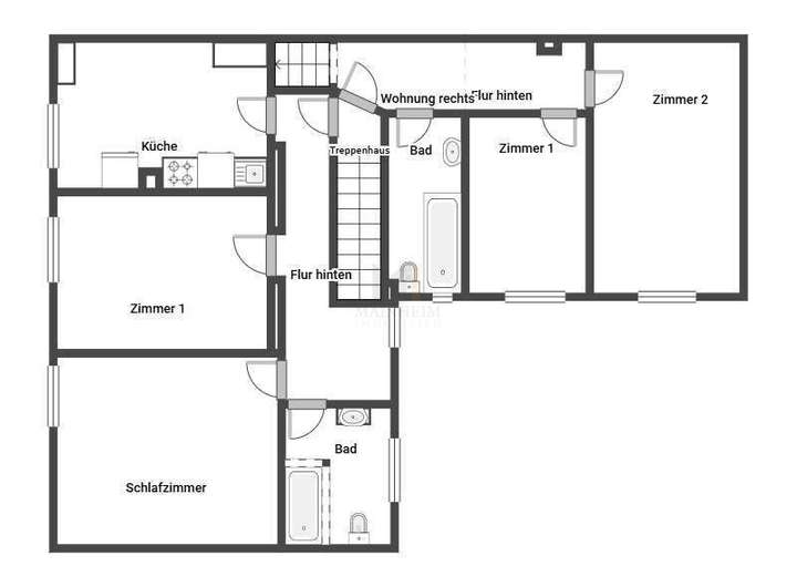
Rechts im 1. Obergeschoss eröffnet sich eine 3-Zimmer-Maisonettewohnung. Die untere Ebene bietet ein Schlafzimmer, ein Kinder- oder Arbeitszimmer sowie ein Tageslichtbad mit Badewanne. Eine Treppe führt ins Dachgeschoss, wo eine wohnlich ausgebaute Nutzfläche mit Wohnzimmer, Küche und einem weiteren Tageslicht-Duschbad zusätzlichen Wohnkomfort schafft.
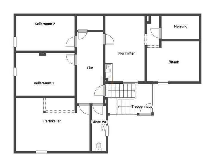
Im Untergeschoss wartet ein Klassiker: ein Partykeller mit angrenzendem WC – ideal für gesellige Stunden. Ergänzt wird das Untergeschoss durch praktische Lagerflächen, eine Waschküche sowie die Heizungsanlage.
Großzügiges Zweifamilienhaus mit Gartenidylle und Potenzial in Frankfurt-Goldstein
Am Goldsteinpark 14,
60529 Frankfurt am Main
Auf Karte anzeigen
Finanzierungszertifikat
In nur zwei Minuten zu Ihrem persönlichen Finanzierungszertifkat.
Infos
| Haustyp | Sonstige |
|---|---|
| Etagenzahl | 3 |
| Wohnfläche ca. | 202 m2 |
| Nutzfläche | 140 m2 |
| Grundstücksfläche | 754 m2 |
| Bezugsfrei ab | sofort |
| Zimmer | 8 |
| Schlafzimmer | 5 |
| Badezimmer | 3 |
| Garage/Stellplatz | Garage |
| Anzahl Garage/Stellplatz | 1 |
Kosten
| Kaufpreis |
535.000 € |
|---|---|
| Provision |
5,95 % Provisionshinweis: Die Käuferprovision beträgt 5,95 % des beurkundeten Kaufpreises einschließlich der gesetzlichen Mehrwertsteuer. Sie ist verdient und fällig mit Abschluss und Beurkundung des notariellen Kaufvertrages. |
Finanzierungsrechner:
Kaufpreis:
600.000 €
Eigenkapital:
600.000 €
Monatliche Rate
0 €
Effektiver Jahreszins
0 %
Sollzinsbindung
10 Jahre
Bausubstanz & Energieausweis
| Baujahr | 1942 |
|---|---|
| Letzte Sanierung | 2009 |
| Bauphase | Haus fertig gestellt |
| Objektzustand | Renovierungsbedürftig |
| Qualität der Austattung | Einfach |
| Heizungsart | Öl-Heizung |
| Wesentliche Energieträger | Öl |
| Energieausweis | liegt vor |
| Energieausweistyp | Bedarfsausweis |
| Energieverbrauchskennwert | 781,6 kWh/(m²*a) |
| Energieeffizienzklasse | H |
781,6
kWh/(m²*a)
Energieeffizienzklasse H
- A+
- A
- B
- C
- D
- E
- F
- G
- H
- 0
- 25
- 50
- 75
- 100
- 125
- 150
- 175
- 200
- 225
- >250
Beschreibung des Objekts
Ausstattung
• Zwei separate Wohneinheiten + abgeteilte Einliegerwohnung im Obergeschoss (Trennung kann baulich rückgängig gemacht werden durch Entfernung einer Trockenbauwand)
• mietfrei / leerstehend
• Zwei Tageslichtbäder mit Badewanne
• Zwei Tageslichtbäder mit Dusche
• Weitläufiger Garten mit idyllischem Fischteich
• Zwei überdachte Sitzecken im Garten, davon eine mit Außenkamin
• Großzügiger Kellerbereich mit Partyraum
• Praktische Nebengebäude als Stauraum / Werkstatt / Hobbyraum
• Garage mit integrierter Arbeitsgrube
• Zusätzlicher Außenstellplatz
Lage
Frankfurt-Goldstein – naturnahes Wohnen im Süden der Mainmetropole
Diese Immobilie liegt im beliebten Frankfurter Stadtteil Goldstein, einem gewachsenen und familienfreundlichen Quartier im Süden der Stadt. Goldstein verbindet die Vorteile ruhigen Wohnens in grüner Umgebung mit der Nähe zur Frankfurter Innenstadt und einer hervorragenden Infrastruktur.
Direkt vor der Haustür beginnen weitläufige Grünflächen, die den Stadtteil prägen. Der nahegelegene Stadtwald lädt zu Spaziergängen, Radtouren und sportlichen Aktivitäten ein und bietet ideale Erholung vom Alltag. Spielplätze und Sportanlagen befinden sich ebenfalls in der Umgebung und machen Goldstein zu einem attraktiven Wohnort für Familien.
Auch die Nahversorgung ist bestens gesichert: Supermärkte, Bäckereien, Apotheken und kleinere Geschäfte liegen in Reichweite. Haus- und Fachärzte, Zahnärzte sowie physiotherapeutische Praxen sind ebenfalls vor Ort vertreten. Kindertagesstätten, Grundschulen und weiterführende Schulen im benachbarten Schwanheim und Niederrad sind gut erreichbar und garantieren kurze Wege für Kinder und Jugendliche.
Die Anbindung an den öffentlichen Nahverkehr ist komfortabel: Mehrere Buslinien verbinden Goldstein mit den umliegenden Stadtteilen und der Frankfurter Innenstadt. Über die nahegelegenen S-Bahn-Stationen Frankfurt-Niederrad und Frankfurt-Stadion gelangen Sie schnell in die City oder zum Hauptbahnhof. Der internationale Flughafen Frankfurt liegt nur wenige Fahrminuten entfernt – ideal für Berufspendler und Vielreisende.
Für Autofahrer ist Goldstein ebenfalls optimal gelegen: Über die B43 sowie die Autobahnen A3, A5 und A661 erreichen Sie alle wichtigen Richtungen im Rhein-Main-Gebiet zügig.
Goldstein gilt als ruhiger, grüner Stadtteil mit hohem Wohnwert. Die Mischung aus naturnaher Lage, guter Infrastruktur und schneller Erreichbarkeit der Innenstadt macht diesen Teil Frankfurts zu einem attraktiven Standort für Familien, Berufspendler und alle, die Nähe zur Natur und zur Großstadt gleichermaßen schätzen.
Sonstige Angaben
Für weitere Informationen oder zur Vereinbarung eines Besichtigungstermins stehen wir Ihnen gerne zur Verfügung.
Möchten Sie Ihr neues Zuhause in Frankfurt-Goldstein finanzieren? Wir unterstützen Sie gerne mit einem (Vergleichs-)Angebot unseres unabhängigen Finanzierungspartners.
Mit über 12 Jahren Erfahrung und Professionalität im Immobiliensektor ist mainheim Immobilien - Stefan G. Richter Ihr versierter Partner für Immobiliengeschäfte. Wir gewährleisten den erfolgreichen Verkauf Ihrer Immobilie durch das Angebot eines exklusiven Alleinauftrags. Unsere Verkäufer und Käufer profitieren von unserem ausgeprägten Engagement für erstklassigen Kundenservice und unserer fundierten Marktkenntnis. Als Immobilienmakler sind wir Ihr vertrauensvoller Begleiter beim Erwerb Ihrer Wunschimmobilie oder beim Verkauf Ihrer Bestandsimmobilie.
Kontaktieren Sie uns jederzeit, um einen Besichtigungs- oder Beratungstermin zu vereinbaren!
Maklerprovision:
Provisionshinweis:
Die Käuferprovision beträgt 5,95 % des beurkundeten Kaufpreises einschließlich der gesetzlichen Mehrwertsteuer. Sie ist verdient und fällig mit Abschluss und Beurkundung des notariellen Kaufvertrages.
Sonstige Hinweise:
Alle Angaben beruhen auf uns erteilten Informationen. Eine Haftung für die Richtigkeit bzw. Vollständigkeit ist daher nicht möglich. Irrtümer sowie der Zwischenverkauf bleiben ausdrücklich vorbehalten. Alle gezeichneten oder visualisierten Grundrisse sowie in Fotos eingezeichnete Skizzen / Grundstücksgrenzen oder Teilungen sind nicht verbindlich. Eine Weitergabe des Angebotes bedarf unserer ausdrücklichen Zustimmung.
Grundriss
EG / Hochparterre
>
>
Obergeschoss
>
>
Dachgeschoss (zu Wohnung 2)
>
>
Keller
>
>
Adresse
Am Goldsteinpark 14, 60529 Frankfurt am Main
Interessante Orte
Preis- und Lageinformationen
Preistrend für Bestandsimmobilien in Schwanheim