Diese leerstehende Doppelhaushälfte aus dem Baujahr 1933 steht auf einem 214 m² großen Grundstück mit Garten und gepflastertem Hofbereich – ideal für Käufer, die ein eigenes Zuhause mit Entwicklungspotenzial suchen und individuell gestalten möchten.
Das Haus wurde in Massivbauweise errichtet, verfügt über zwei Vollgeschosse, ein ausgebautes Dachgeschoss und ist vollständig unterkellert.
Die Wohnfläche beträgt rund 93 m², verteilt auf fünf Zimmer, darunter bis zu vier potenzielle Schlafzimmer.
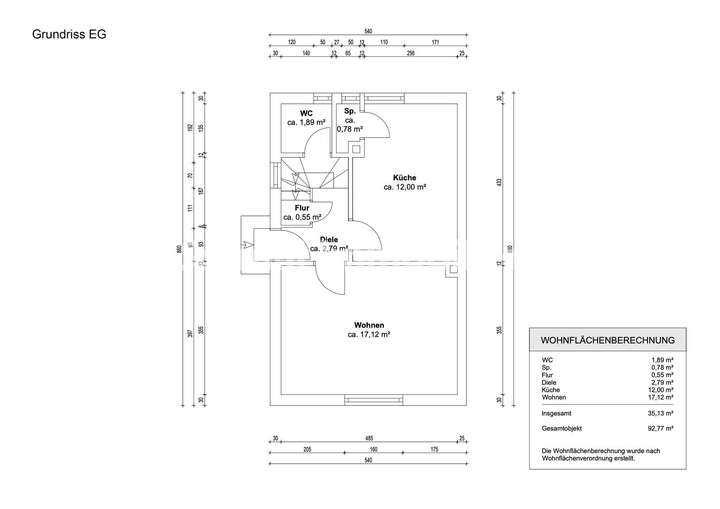
Im Erdgeschoss liegen der Eingangsbereich, ein kompaktes Wohnzimmer, eine separate Wohnküche mit Speisekammer sowie ein Gäste-WC.
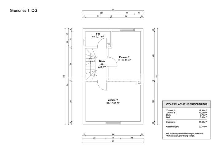
Das Obergeschoss bietet zwei weitere Zimmer und ein Tageslichtbad mit Dusche, das um 2010 modernisiert wurde. Im ausgebauten Dachgeschoss stehen zwei zusätzliche Räume sowie eine Abstellkammer zur Verfügung.
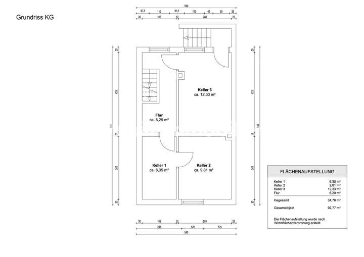
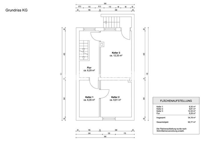
Der Keller umfasst ca. 35 m² Nutzfläche und ist sowohl über das Treppenhaus als auch über eine Außentreppe zugänglich. Die Beheizung erfolgt über eine Gas-Zentralheizung aus dem Jahr 2018.
Der Garten lädt zu Freizeitaktivitäten oder gärtnerischer Gestaltung ein.
Die Immobilie befindet sich in sanierungsbedürftigem Zustand. Die Räumung erfolgt nach Vereinbarung, bevorzugt durch den Käufer.
Ruhig gelegen im westlichen Teil von Frankfurt-Schwanheim, überzeugt die Umgebung durch gewachsene Strukturen und ein familienfreundliches Umfeld. Kindertagesstätten, eine Grundschule und mehrere Spielplätze sind in direkter Nähe vorhanden. Der Schwanheimer Wald mit Waldspielplatz und Kleintierzoo ist fußläufig erreichbar und bietet naturnahe Erholung im Alltag. Auch weitere Sport- und Freizeitmöglichkeiten sind im Stadtteil gut vertreten.
Die Anbindung an den öffentlichen Nahverkehr erfolgt über die Straßenbahnlinie 12 sowie mehrere Busverbindungen. Einkaufsmöglichkeiten für den täglichen Bedarf sind ebenfalls vorhanden.
Zentrale Standorte wie der Flughafen, das Universitätsklinikum, das Lyoner Quartier oder der Industriepark Höchst sind schnell zu erreichen. Die nahegelegenen Autobahnen A3, A5, A66 und A648 sorgen zusätzlich für gute Verbindungen in der gesamten Rhein-Main-Region.
Doppelhaushälfte mit Garten in gefragter Schwanheimer Wohnlage
60529 Frankfurt am Main
Die vollständige Adresse der Immobilie erhalten Sie vom Anbieter.
Auf Karte anzeigen
Die vollständige Adresse der Immobilie erhalten Sie vom Anbieter.
Finanzierungszertifikat
In nur zwei Minuten zu Ihrem persönlichen Finanzierungszertifkat.
Infos
| Haustyp | Doppelhaushaelfte |
|---|---|
| Etagenzahl | 2 |
| Wohnfläche ca. | 92 m2 |
| Grundstücksfläche | 214 m2 |
| Bezugsfrei ab | sofort |
| Zimmer | 5 |
| Schlafzimmer | 4 |
| Badezimmer | 1 |
| Anzahl Garage/Stellplatz | 1 |
Kosten
| Kaufpreis |
389.000 € |
|---|---|
| Provision |
3,57 % Käuferprovision inkl. 19 % MwSt. 3,57 % Käuferprovision inkl. 19 % MwSt., verdient und fällig mit Beurkundung des notariellen Kaufvertrages. Mit dem Verkäufer wurde ein provisionspflichtiger Maklervertrag in gleicher Höhe abgeschlossen. |
Finanzierungsrechner:
Kaufpreis:
600.000 €
Eigenkapital:
600.000 €
Monatliche Rate
0 €
Effektiver Jahreszins
0 %
Sollzinsbindung
10 Jahre
Bausubstanz & Energieausweis
| Baujahr | 1933 |
|---|---|
| Letzte Sanierung | 2018 |
| Bauphase | Haus fertig gestellt |
| Objektzustand | Renovierungsbedürftig |
| Qualität der Austattung | Einfach |
| Heizungsart | Zentralheizung |
| Wesentliche Energieträger | Gas |
| Energieausweis | liegt vor |
| Energieausweistyp | Bedarfsausweis |
| Energieverbrauchskennwert | 348,0 kWh/(m²*a) |
| Energieeffizienzklasse | H |
348,0
kWh/(m²*a)
Energieeffizienzklasse H
- A+
- A
- B
- C
- D
- E
- F
- G
- H
- 0
- 25
- 50
- 75
- 100
- 125
- 150
- 175
- 200
- 225
- >250
Beschreibung des Objekts
Grundriss
Grundriss EG
>
>
Grundriss 1. OG
>
>
Grundriss DG
>
>
Grundriss KG
>
>
Adresse
60529 Frankfurt am Main
Interessante Orte
Preis- und Lageinformationen
Preistrend für Bestandsimmobilien in Schwanheim