Das 3-Familienhaus wurde umfassend modernisiert und entspricht höchsten Neubau-Qualitätsstandards. Es präsentiert sich in einem makellosen Zustand. Mit einer Wohnfläche von rund ca. 227 m², aufgeteilt in drei separate Wohneinheiten, bietet dieses Objekt vielfältige Nutzungsmöglichkeiten: Ob als renditestarkes Mietobjekt, teilweise selbstgenutzt oder als Mehrgenerationenhaus.
**Energieeffizienz:**
Ein herausragendes Merkmal ist die Energieeffizienz der Immobilie. Der Energiebedarfsausweis verzeichnet einen bemerkenswerten Endenergiebedarf von nur 18,7 kWh/m²a, was der Energieeffizienzklasse A+ entspricht. Diese Effizienz wird durch eine moderne Luft-Wasser-Wärmepumpe, hochwertige Dämmung, dreifachverglaste Fenster und durchdachte Haustechnik ermöglicht. Mieter und Eigennutzern profitieren somit von geringen Nebenkosten und einer zukunftssicheren Immobilieninvestition.
**Ausstattung der Wohneinheiten:**
Die drei Wohneinheiten zeichnen sich durch durchdachte Grundrisse und eine hochwertige Ausstattung aus. Besonderheit, jede Wohnung verfügt über zwei Bäder:
- **Erdgeschoss (ca. 72 m²):** Helle, barrierearme 3-4-Zimmer-Wohnung mit Balkon. Ideal für Senioren oder junge Familien.
- **1. Obergeschoss (ca. 69 m²):** Flexible 3-4-Zimmer-Einheit mit praktischem Schnitt, hervorragend geeignet für möblierten Vermietung.
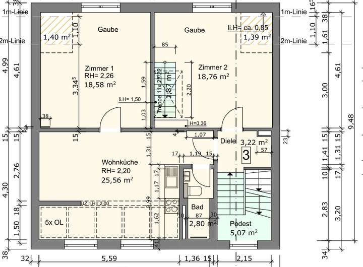
- **Dachgeschoss (ca. 86 m²):** Großzügige Maisonette-Wohnung und viel Platz, Perfekt als exklusive Eigentürmerwohnung oder als Premium-Mietwohnung.
**Fazit:**
Dieses 3-Familienhaus stellt ein seltenes Investment dar, das nachhaltige Rendite, modernen Wohnkomfort und geringe Betriebskosten vereint. Es setzt neue Maßstäbe in Hanau – sowohl für Kapitalanleger, die auf stabile Mieteinnahmen setzen, als auch für Eigennutzer, die Wohnen und Vermieten intelligent miteinander kombinieren möchten.
Hochwertig A+ saniertes 3-Familienhaus, Sofort bezugsfrei, als Anlage oder Eigennutzung
63457 Hanau
Die vollständige Adresse der Immobilie erhalten Sie vom Anbieter.
Auf Karte anzeigen
Die vollständige Adresse der Immobilie erhalten Sie vom Anbieter.
Finanzierungszertifikat
In nur zwei Minuten zu Ihrem persönlichen Finanzierungszertifkat.
Infos
| Haustyp | Mehrfamilienhaus |
|---|---|
| Etagenzahl | 2 |
| Wohnfläche ca. | 227 m2 |
| Nutzfläche | 33 m2 |
| Grundstücksfläche | 230 m2 |
| Bezugsfrei ab | ab sofort |
| Zimmer | 10 |
| Schlafzimmer | 7 |
| Badezimmer | 6 |
| Garage/Stellplatz | Außenstellplatz |
| Anzahl Garage/Stellplatz | 2 |
Kosten
| Kaufpreis |
988.000 € |
|---|---|
| Preis für Garage/Stellplatz | 15.000 € |
| Provision |
5,95 % inkl. Mwst. |
Finanzierungsrechner:
Kaufpreis:
600.000 €
Eigenkapital:
600.000 €
Monatliche Rate
0 €
Effektiver Jahreszins
0 %
Sollzinsbindung
10 Jahre
Bausubstanz & Energieausweis
| Baujahr | unbekannt |
|---|---|
| Letzte Sanierung | 2025 |
| Bauphase | Haus fertig gestellt |
| Objektzustand | Erstbezug |
| Qualität der Austattung | Gehoben |
| Heizungsart | Fußbodenheizung |
| Wesentliche Energieträger | Solarheizung |
| Energieausweis | liegt vor |
| Energieausweistyp | Bedarfsausweis |
| Energieverbrauchskennwert | 18,7 kWh/(m²*a) |
| Energieeffizienzklasse | A+ |
18,7
kWh/(m²*a)
Energieeffizienzklasse A+
- A+
- A
- B
- C
- D
- E
- F
- G
- H
- 0
- 25
- 50
- 75
- 100
- 125
- 150
- 175
- 200
- 225
- >250
Beschreibung des Objekts
Lage
Die Wohnqualität des Stadtteils zeichnet sich durch eine ideale Mischung aus städtischem Komfort und Naturnähe aus. Die Infrastruktur für den täglichen Bedarf ist hervorragend: Diverse Einkaufsmöglichkeiten (u.a. Rewe), Restaurants, Banken und Dienstleistungen sind bequem erreichbar. Zudem liegt das Viertel nahe dem Main und den umliegenden Wäldern, was einen hohen Freizeit- und Erholungswert bietet. Besonders hervorzuheben ist die optimale Verkehrsanbindung – ein entscheidender Faktor für moderne Mieter und Eigennutzer:
Individueller Verkehr: Die Autobahn A45 ist über die nahegelegenen Landesstraßen in nur rund drei Kilometern schnell erreichbar (AS Alzenau-Nord).
Öffentliche Verkehrsmittel: Der Bahnhof mit seiner Anbindung an die Bahnstrecke Frankfurt–Aschaffenburg ist fußläufig in etwa 5 Minuten erreichbar und bietet regelmäßige Zugverbindungen Richtung Hanau, Frankfurt und Aschaffenburg. Auch Bushaltestellen für Verbindungen nach Hanau und Kahl sind in unmittelbarer Nähe vorhanden.
Diese Lage garantiert eine exzellente Vernetzung mit dem gesamten Rhein-Main-Gebiet und macht das Objekt zu einem zukunftssicheren und attraktiven Investmentstandort.
Sonstige Angaben
Der Maklervertrag mit uns kommt entweder durch schriftliche Vereinbarung oder auch durch die Inanspruchnahme unserer Maklertätigkeit auf Basis des Objekt-Exposés und seiner Bedingungen zustande. Sollte das von uns nachgewiesene Objekt bereits bekannt sein, teilen Sie uns dieses bitte unverzüglich mit. Die Courtage in Höhe von 5,95% des Kaufpreises inkl. gesetzl. MwSt. auf den Kaufpreis ist bei notariellem Vertragsabschluss fällig und vom Käufer an die Prius Immobilien GmbH zu zahlen.
Grundriss
Grundriss-OG
>
>
Grundriss-DG
>
>
Grundriss-DG-SB
>
>
Adresse
63457 Hanau
Interessante Orte
Preis- und Lageinformationen
Preistrend für Bestandsimmobilien in Hanau