Willkommen in Ihrem neuen Zuhause in Ostrhauderfehn! Dieser charmante Bungalow aus dem Jahr 2001 bietet Ihnen auf einer großzügigen Grundstücksfläche von 843 m² ein wahres Wohlfühlambiente. Das gepflegte Haus präsentiert sich mit einer behaglichen Wohnfläche von 120 m², verteilt auf 4,5 Zimmer.
Drei gemütliche Schlafzimmer bieten ausreichend Platz für Ihre Familie oder Gäste, und die zwei modernen Badezimmer garantieren Komfort und Privatsphäre für alle Bewohner. Der großzügig geschnittene Wohnbereich wird durch einen stilvollen Gaskamin ergänzt, der nicht nur für wohlige Wärme sorgt, sondern auch ein Highlight in Ihren Wohnräumen darstellt. Der Schornstein ist durch die verklinkerte Außenfassade geführt, was dem Ganzen ein elegantes und robustes Erscheinungsbild verleiht.
In Küche, Flur, Essbereich und Hauswirtschaftsraum erwartet Sie eine angenehme Fußbodenerwärmung, die an kalten Tagen für zusätzliches Wohlbefinden sorgt. Die Deckenhöhe von 2,60 m und die massive Bauweise aus 17,5er Kalksandstein zeugen von höchster Bauqualität.
Ein Regenwasserspeicher mit einem Fassungsvermögen von 5.500 Litern ist ein weiteres praktisches Detail, das Ihren Alltag erleichtert.
In allen Räumen wurden mineralische Farben von KEIM verwendet, die frei von Schadstoffen sind und damit nicht nur Allergiker aufatmen lassen, sondern auch bauphysikalisch optimal sind.
Lassen Sie sich von diesem einzigartigen Bungalow in einer ruhigen Wohnlage begeistern und schaffen Sie sich ein Zuhause, das keine Wünsche offenlässt. Vereinbaren Sie noch heute einen Besichtigungstermin!
Der Energieausweis ist in Bearbeitung!
**Ihr neues Zuhause: Traumhafter Bungalow mit Wohlfühlgarantie**
26842 Ostrhauderfehn
Die vollständige Adresse der Immobilie erhalten Sie vom Anbieter.
Auf Karte anzeigen
Die vollständige Adresse der Immobilie erhalten Sie vom Anbieter.
Finanzierungszertifikat
In nur zwei Minuten zu Ihrem persönlichen Finanzierungszertifkat.
Infos
| Haustyp | Bungalow |
|---|---|
| Wohnfläche ca. | 120 m2 |
| Grundstücksfläche | 843 m2 |
| Zimmer | 4,5 |
| Schlafzimmer | 3 |
| Badezimmer | 2 |
Kosten
| Kaufpreis |
310.000 € |
|---|---|
| Provision |
Die anteilige Käuferprovision beträgt 3,57 % inkl. MwSt |
Finanzierungsrechner:
Kaufpreis:
600.000 €
Eigenkapital:
600.000 €
Monatliche Rate
0 €
Effektiver Jahreszins
0 %
Sollzinsbindung
10 Jahre
Bausubstanz & Energieausweis
| Baujahr | 2001 |
|---|---|
| Objektzustand | Gepflegt |
| Heizungsart | Gas-Heizung |
| Wesentliche Energieträger | Gas |
Beschreibung des Objekts
Ausstattung
Holz-Iso-Fenster aus dem Baujahr 2001 // Deckenhöhe von 2,60m // Zargenbreite der Innentüren 0,80m (Rollstuhlgerecht) // 5.500l Regenwasserspeicher // Betondachpfannen (rot) // Garage mit elektr. Tor und Werkstatt // Dachisolierung // Betonzwischendecke // Keramik im sep. WC (Erdgeschoss) im Jahre 2024 erneuert
Raumaufteilung:
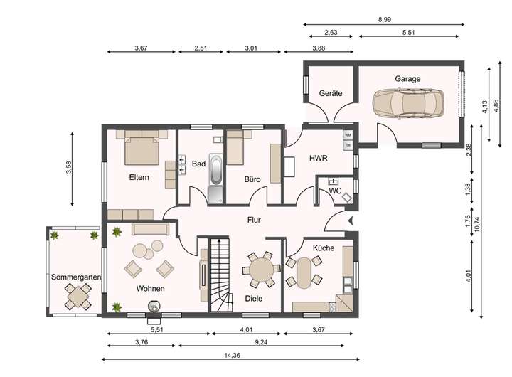
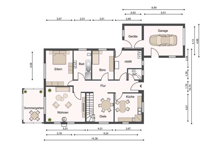
Eingangsbereich - Flur // Küche (mit EBK) // Essdiele // Wohnzimmer (mit Kamin) // Sommergarten // Schlafzimmer // Büro // Badezimmer (Badewanne, Dusche , Waschbecken und WC)// sep. WC //
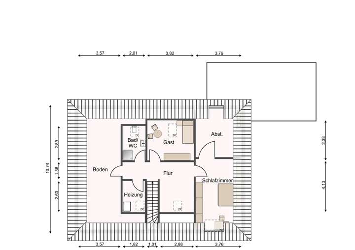
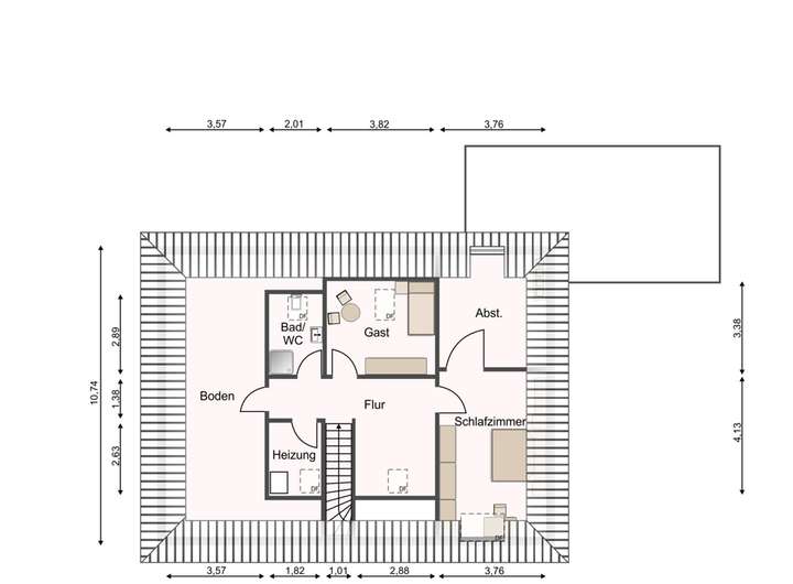
Flur // Gästezimmer // Badezimmer // Hobbyraum - ausbaufähige Möglichkeiten um zusätzliche Wohnräume zu schaffen // Heizungsraum
Weitere Informationen:
Die Maklerprovision wird zur Hälfte vom Käufer und zur Hälfte vom Verkäufer gezahlt. Die Grunderwerbsteuer, Notar- und Grundbuchkosten sind vom Käufer zu tragen.
Eine Reservierung des Objektes ist nur nach Besichtigung, nach Vorlage einer schriftlichen Finanzierungsbestätigung sowie mit ausdrücklicher Zustimmung und Einwilligung des Verkäufers möglich.
Ein Zwischenverkauf bleibt vorbehalten. Sollten mehrere Interessenten gleichzeitig Kaufinteresse zeigen, wird der Kaufpreis ausgeboten.
Lage
Dieses Wohnhaus befindet sich in zentraler Lage von Ostrhauderfehn – einer lebendigen Gemeinde mit hoher Lebensqualität im Herzen des südlichen Ostfrieslands.
Alle Dinge des täglichen Bedarfs befinden sich direkt vor der Haustür: Supermärkte, Bäcker, Drogerien und vielfältige Einkaufsmöglichkeiten sind fußläufig erreichbar. Auch Shoppingliebhaber kommen durch Fachgeschäfte auf ihre Kosten.
Besonders angenehm: Spaziergänge entlang des Deiches – ideal für eine Auszeit im Grünen oder den täglichen Rundgang mit dem Hund – beginnen praktisch direkt vor der Tür.
Eine Apotheke, ein Friseursalon sowie Ärzte befinden sich in unmittelbarer Nähe – ebenso wie Kindergärten, Grundschulen und weiterführende Schulen, die alle schnell erreichbar sind.
Die zentrale, dennoch ruhige Lage bietet eine ideale Kombination aus urbanem Komfort und angenehmer Wohnatmosphäre – perfekt für Familien, Berufstätige und alle, die kurze Wege und naturnahe Erholung schätzen.
Grundriss
Grundriss Erdgeschoss
>
>
Grundriss Dachgeschoss
>
>
Adresse
26842 Ostrhauderfehn
Interessante Orte
Preis- und Lageinformationen
Preistrend für Bestandsimmobilien in Ostrhauderfehn