BUILD YOUR WAY. OWN YOUR SPACE.
Dein Traum vom Eigenheim beginnt hier. White&Black bringt dich dorthin – einfach, erschwinglich, zukunftssicher.
THE RIGHT MATCH.
Finanzierung, Grundstück, Haus – wir bringen alles zusammen.
FEELS LIKE HOME.
Dein Stil, dein Design, dein Zuhause.
MORE HOME. LESS WORRY.
Klare Prozesse, smarte Lösungen, stressfreier Hausbau.
SIMPLE IST THE NEW LUXURY.
Durchdachte Architektur, hochwertige Ausstattung, flexibles Design.
Es gibt nie den perfekten Moment – aber den richtigen Schritt. Warum warten?
START YOUR HOME JOURNEY TODAY.
Attraktive Immobilie in Neugraben-Fischbek – Stadtnah und im Grünen
21149 Hamburg
Die vollständige Adresse der Immobilie erhalten Sie vom Anbieter.
Auf Karte anzeigen
Die vollständige Adresse der Immobilie erhalten Sie vom Anbieter.
Finanzierungszertifikat
In nur zwei Minuten zu Ihrem persönlichen Finanzierungszertifkat.
Infos
| Haustyp | Doppelhaushaelfte |
|---|---|
| Wohnfläche ca. | 141 m2 |
| Nutzfläche | 0 m2 |
| Grundstücksfläche | 500 m2 |
| Zimmer | 5 |
| Schlafzimmer | 3 |
| Badezimmer | 1 |
| Anzahl Garage/Stellplatz | 0 |
Kosten
| Kaufpreis |
647.800 € |
|---|---|
| Provision | Nein |
Finanzierungsrechner:
Kaufpreis:
600.000 €
Eigenkapital:
600.000 €
Monatliche Rate
0 €
Effektiver Jahreszins
0 %
Sollzinsbindung
10 Jahre
Bausubstanz & Energieausweis
| Baujahr | 2026 |
|---|---|
| Bauphase | Haus in Planung (projektiert) |
| Qualität der Austattung | Gehoben |
| Heizungsart | Wärmepumpe |
Beschreibung des Objekts
Ausstattung
THINK BLACK – All in.
- Schlüsselfertig & sofort bezugsbereit – ohne zusätzlichen Aufwand
- Kompletter Innenausbau – keine Handwerkersuche, kein Planungsstress
- Durchdachte Raumaufteilung – moderne Wohnkonzepte für jede Lebensphase
- Innovative Haustechnik – zukunftssicheres Wohnen mit höchster Effizienz
- Maximaler Komfort – alles fertig, alles drin
Für alle, die einfach einziehen und losleben wollen!
Lage
Das Grundstück liegt im Stadtteil Neugraben-Fischbek, südwestlich im Hamburger Stadtgebiet, in einem ruhigen Wohngebiet nahe der Fischbeker Heide und den Harburger Bergen – in einer sehr grünen und naturnahen Umgebung. Gleichzeitig ist man durch den nahegelegenen S-Bahnhof Neugraben (S3/S31) schnell in der Innenstadt (ca. 25–30 Min zum Hbf).
Sonstige Angaben
Vereinbare einen persönlichen Beratungstermin, um über Deinen Haustraum und das angebotene Objekt zu sprechen.
Bitte beachte, dass die dargestellten Bilder und Grundrisse nur beispielhaft sind und unter Umständen Sonderbauteile enthalten, die nicht im angegebenen Preis enthalten sind.
Hab außerdem bitte Verständnis dafür, dass weitere Details zum angebotenen Grundstück erst nach einem persönlichen Gespräch bekanntgegeben werden und nur vollständige Anfragen bearbeitet werden können.
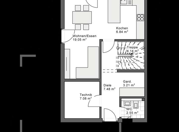
Grundriss
Grundriss EG
>
>
Grundriss OG
>
>
Grundriss DG
>
>
Adresse
21149 Hamburg
Interessante Orte
Preis- und Lageinformationen
Preistrend für Bestandsimmobilien in Neugraben-Fischbek