Dieses großzügige Einfamilienhaus mit Einliegerwohnung wurde 1981 in Fertigbauweise (Holzrahmenbau) errichtet und befindet sich auf einem ca. 784 m² großen Grundstück. Mit einer Wohnfläche von ca. 219 m², verteilt auf Erd- und Dachgeschoss, bietet das Haus vielfältige Nutzungsmöglichkeiten – ob als großzügiges Einfamilienhaus, für zwei Parteien oder als Kapitalanlage. Zwei separate Eingänge ermöglichen eine flexible Wohnsituation.
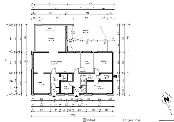
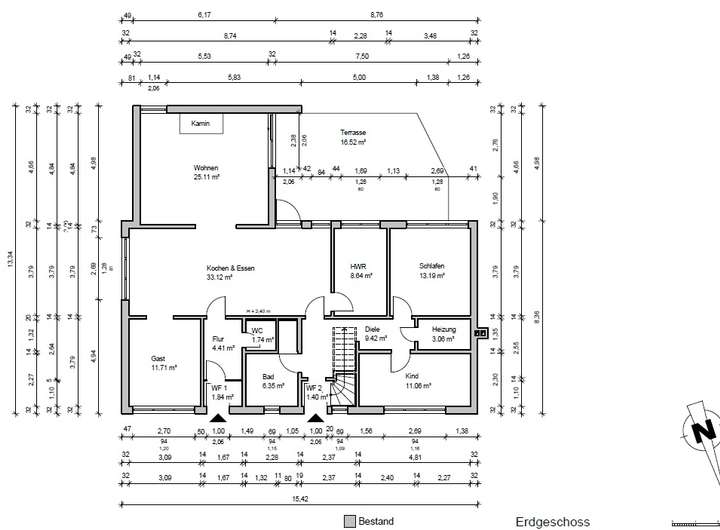
Im Erdgeschoss gelangen Sie über einen Windfang und Flur zu einem Gäste-WC sowie einem Raum, der sich ideal als Schlafzimmer oder Büro eignet. Der offene Wohn- und Küchenbereich mit Kamin schafft eine gemütliche Atmosphäre und bietet direkten Zugang zur Terrasse und dem Garten. Angrenzend befindet sich eine zweite Küche. Über einen weiteren Flur erreichen Sie das Tageslichtbad mit Dusche sowie zwei zusätzliche Zimmer.
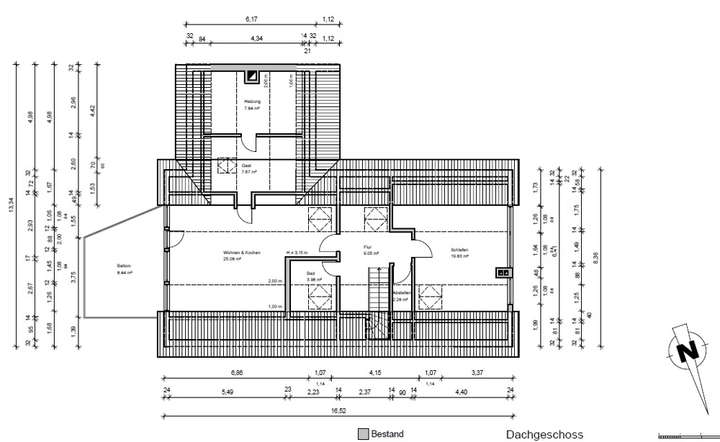
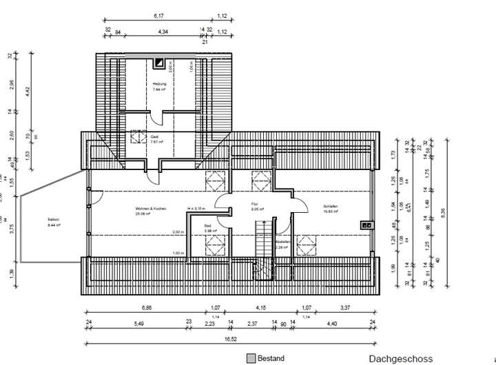
Vom zweiten Flur führt eine Treppe ins Dachgeschoss. Dort befinden sich zwei weitere Zimmer, eine Wohnküche mit Zugang zur Dachterrasse, ein Badezimmer mit Fenster und Dusche sowie zwei praktische Abstellräume. Die Raumaufteilung erlaubt auch hier eine separate Wohneinheit.
Der Außenbereich umfasst eine ca. 42 m² große Doppelgarage sowie zwei Gartenhäuschen. Beheizt wird die Immobilie über eine Gasheizung aus dem Jahr 2005.
Die Immobilie überzeugt durch ihre durchdachte Aufteilung, solide Bauweise und die Möglichkeit, sie flexibel zu nutzen – ideal für Familien, Mehrgenerationenwohnen oder zur Vermietung.
Weitere Infos zur Immobilie oder Besichtigungstermine gerne auf Anfrage.
Viel Platz, viele Möglichkeiten – Wohntraum mit Einliegerwohnung in Oldenburg!
26133 Oldenburg (Oldenburg)
Die vollständige Adresse der Immobilie erhalten Sie vom Anbieter.
Auf Karte anzeigen
Die vollständige Adresse der Immobilie erhalten Sie vom Anbieter.
Finanzierungszertifikat
In nur zwei Minuten zu Ihrem persönlichen Finanzierungszertifkat.
Infos
| Haustyp | Einfamilienhaus |
|---|---|
| Etagenzahl | 2 |
| Wohnfläche ca. | 219 m2 |
| Grundstücksfläche | 784 m2 |
| Bezugsfrei ab | nach Vereinbarung |
| Zimmer | 7 |
| Schlafzimmer | 5 |
| Badezimmer | 2 |
| Garage/Stellplatz | Garage |
| Anzahl Garage/Stellplatz | 2 |
Kosten
| Kaufpreis |
389.000 € |
|---|---|
| Provision |
2,5 % zzgl. MwSt. |
Finanzierungsrechner:
Kaufpreis:
600.000 €
Eigenkapital:
600.000 €
Monatliche Rate
0 €
Effektiver Jahreszins
0 %
Sollzinsbindung
10 Jahre
Bausubstanz & Energieausweis
| Baujahr | 1981 |
|---|---|
| Objektzustand | Gepflegt |
| Heizungsart | Gas-Heizung |
| Wesentliche Energieträger | Gas |
| Energieausweis | liegt vor |
| Energieausweistyp | Bedarfsausweis |
| Energieverbrauchskennwert | 132,4 kWh/(m²*a) |
| Energieeffizienzklasse | E |
132,4
kWh/(m²*a)
Energieeffizienzklasse E
- A+
- A
- B
- C
- D
- E
- F
- G
- H
- 0
- 25
- 50
- 75
- 100
- 125
- 150
- 175
- 200
- 225
- >250
Beschreibung des Objekts
Ausstattung
- Einfamilienahaus mit Einliegerwohnung
- Fertigbauweise (Holzrahmenbau)
- Baujahr: 1981
- Grundstückgröße: ca. 784 m²
- Wohnfläche ca. 219 m²
Erdgeschoss:
- 4 Zimmer
- 2 Küchen
- 1 Badezimmer mit Dusche
- 1 Gäste-WC
- 1 Abstellraum
- Zugang zur Terrasse und Garten
- Gasheizung aus dem Jahr 2005
Dachgeschoss:
- 2 Zimmer
- 1 Wohnküche
- 1 Badezimmer mit Dusche
- 2 Abstellräume
- Dachterrasse
- Doppelgarage aus dem Baujahr 1981 mit ca. 42 m²
- 2 Gartenhäuschen vorhanden
Lage
Die Immobilie befindet sich im Oldenburger Stadtteil Kreyenbrück, einem überwiegend wohngeprägten Quartier mit guter Infrastruktur und ruhiger Atmosphäre. Die Umgebung ist durchmischt bebaut – mit Ein- und Mehrfamilienhäusern sowie großzügigen Grünflächen, die das Wohnumfeld auflockern.
In unmittelbarer Nähe finden sich zahlreiche Einrichtungen des täglichen Bedarfs: Supermärkte, Bäckereien, Apotheken und ärztliche Versorgung sind gut erreichbar. Auch Schulen, Kindergärten und Freizeiteinrichtungen sind im Stadtteil vorhanden. Ein besonderer Vorteil der Lage ist die Nähe zum Klinikum Oldenburg, das sich in wenigen Minuten erreichen lässt.
Mehrere Buslinien sorgen für eine gute Anbindung an die Innenstadt und andere Stadtteile. Für Autofahrer ist die schnelle Erreichbarkeit der A29 besonders praktisch.
Insgesamt bietet Kreyenbrück eine ruhige und funktionale Wohnlage mit solider Infrastruktur – ideal für Menschen, die ein gut angebundenes Zuhause mit kurzen Wegen im Alltag suchen.
Sonstige Angaben
Wir freuen uns auf Ihre SCHRIFTLICHE Anfrage.
Bitte füllen Sie die Kontaktdaten VOLLSTÄNDIG aus. Um Ihre Anfrage schnell und fachgerecht beantworten zu können benötigen wir Ihren vollständigen Namen, Ihre E-Mail Adresse, eine Telefonnummer unter der wir Sie erreichen können und Ihre Adresse.
Bitte haben Sie Verständnis dafür, dass wir Ihnen nur dann detaillierte Informationen zu der Immobilie zukommen lassen können.
Beste Grüße,
Jan Schmolke Immobilien & Investments
Grundriss
EG Grundriss
>
>
DG Grundriss
>
>
Garage Grundriss
>
>
Adresse
26133 Oldenburg (Oldenburg)
Interessante Orte
Preis- und Lageinformationen
Preistrend für Bestandsimmobilien in Kreyenbrück