Dieses charmante Reihenmittelhaus in Braunschweig-Stöckheim bietet auf ca. 94 m² Wohnfläche modernes Wohnen in einer ruhigen und gefragten Lage. Das im Jahr 1959 erbaute Haus wurde 2025 umfassend kernsaniert und energetisch auf den neuesten Stand gebracht.
Im Rahmen der Sanierung wurde die alte Gasheizung durch eine effiziente Wärmepumpe ersetzt, wodurch das Energielabel von H auf B angehoben werden konnte. Sämtliche Fenster, Türen, Leitungen sowie die Elektrik wurden erneuert, ebenso das Bad modern gestaltet. Die Wände sind hochwertig verspachtelt und geschliffen, sodass ein zeitgemäßes Wohnambiente entsteht.
Besonders hervorzuheben ist der neue Terrassenanbau mit großem Schiebeelement, das viel Licht in den Wohnbereich bringt und den direkten Zugang zum Garten ermöglicht. Kaminanschlüsse im Wohnzimmer und Dachgeschoss schaffen zusätzliche Gestaltungsoptionen. Der Zugang zum Dachgeschoss erfolgt komfortabel direkt über das Schlafzimmer, kurze Wege und zusätzliche Fläche, die sich flexibel gestalten lässt.
Auch der Außenbereich präsentiert sich in neuem Glanz: Der Vorgarten ist neu gepflastert, die Eingangstreppe sowie die Haustür wurden erneuert, die Außenwände gedämmt und verputzt und das Dach aufgearbeitet. Die bestehende Begrünung schafft eine angenehme Atmosphäre und macht den Garten zu einem idealen Rückzugsort mit offenen Gestaltungsmöglichkeiten.
Das Objekt wird ohne Küche und Möbel verkauft und bietet damit viel Raum für die individuelle Gestaltung. Eine Garage kann optional erworben werden (Preis auf Anfrage).
Mit seiner Kombination aus moderner Technik, hoher Energieeffizienz und guter Raumaufteilung eignet sich dieses Haus perfekt für junge Familien und Paare, die Wert auf ein nachhaltiges und komfortables Zuhause legen.
Einziehen & Wohlfühlen - Kernsaniertes Reihenhaus mit Wärmepumpe in Stöckheim
38124 Braunschweig
Die vollständige Adresse der Immobilie erhalten Sie vom Anbieter.
Auf Karte anzeigen
Die vollständige Adresse der Immobilie erhalten Sie vom Anbieter.
Finanzierungszertifikat
In nur zwei Minuten zu Ihrem persönlichen Finanzierungszertifkat.
Infos
| Haustyp | Reihenmittelhaus |
|---|---|
| Etagenzahl | 1 |
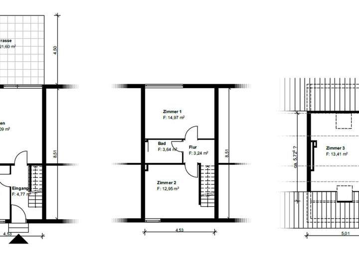
| Wohnfläche ca. | 94 m2 |
| Nutzfläche | 36 m2 |
| Grundstücksfläche | 185 m2 |
| Bezugsfrei ab | sofort |
| Zimmer | 4 |
| Schlafzimmer | 3 |
| Badezimmer | 1 |
| Garage/Stellplatz | Garage |
| Anzahl Garage/Stellplatz | 1 |
Kosten
| Kaufpreis |
349.000 € |
|---|---|
| Provision | Nein |
Finanzierungsrechner:
Kaufpreis:
600.000 €
Eigenkapital:
600.000 €
Monatliche Rate
0 €
Effektiver Jahreszins
0 %
Sollzinsbindung
10 Jahre
Bausubstanz & Energieausweis
| Baujahr | 1959 |
|---|---|
| Bauphase | Haus fertig gestellt |
| Objektzustand | Erstbezug nach Sanierung |
| Heizungsart | Zentralheizung |
| Wesentliche Energieträger | Umweltwärme |
| Energieausweis | liegt vor |
| Energieausweistyp | Bedarfsausweis |
| Energieverbrauchskennwert | 59,4 kWh/(m²*a) |
| Energieeffizienzklasse | B |
59,4
kWh/(m²*a)
Energieeffizienzklasse B
- A+
- A
- B
- C
- D
- E
- F
- G
- H
- 0
- 25
- 50
- 75
- 100
- 125
- 150
- 175
- 200
- 225
- >250
Beschreibung des Objekts
Ausstattung
Terrasse, Garten, Keller, Duschbad, Kamin
Bemerkungen:
Highlights der Sanierung:
- Energetische Aufwertung durch Dämmung und Wärmepumpe auf die Energieklasse B
- Fenster & Türen vollständig erneuert
- Elektrik & Bäder modernisiert, alle Leitungen im Haus inkl. Heizungsleitungen erneuert
- Hochwertige Wandoberflächen
- Neuer Terrassenanbau mit großem ebenerdigen Schiebeelement zum Garten
- Option für Kaminanschlüsse im Wohnzimmer oder im Dachgeschoss
Außenbereich:
- Vorgarten: neu angelegte Pflasterfläche
- Hauseingangstreppe erneuert, neue Haustür
- Außenwände gedämmt & verputzt, Dachsteine lackiert
- Garten aufbereitet und sofort nutzbar
Lage
Das Reihenhaus befindet sich in Braunschweig-Stöckheim, einem der beliebtesten und familienfreundlichsten Stadtteile im Süden Braunschweigs. Die Lage verbindet ruhiges Wohnen im Grünen mit einer hervorragenden Infrastruktur.
Alle Einrichtungen des täglichen Bedarfs befinden sich in unmittelbarer Nähe: Supermärkte, Ärzte, Apotheken und Gastronomie sind schnell erreichbar. Für Familien besonders attraktiv ist das breite Angebot an Kindergärten, Grundschulen und weiterführenden Schulen direkt im Stadtteil.
Die Anbindung an den öffentlichen Nahverkehr ist sehr gut - mit Straßenbahn und Bus erreichen Sie die Braunschweiger Innenstadt in kurzer Zeit. Auch die Autobahnen A39 und A36 sind schnell zu erreichen, was Pendlern eine optimale Mobilität bietet.
Stöckheim bietet zudem einen hohen Freizeitwert: zahlreiche Grünflächen, Sportvereine, die Nähe zur Oker sowie Rad- und Spazierwege machen den Stadtteil zu einem attraktiven Wohnort.
Ideal für junge Familien oder Paare, die Wert auf Qualität, Energieeffizienz und ein stimmiges Wohnumfeld legen.
Infrastruktur (im Umkreis von 5 km):
Apotheke, Lebensmittel-Discount, Allgemeinmediziner, Kindergarten, Grundschule, Hauptschule, Realschule, Gymnasium, Gesamtschule, Öffentliche Verkehrsmittel
Sonstige Angaben
Heizungsart: Zentralheizung
Makleranfragen nicht erwünscht. Nach § 7 UWG sind unaufgeforderte Kontaktaufnahmen durch Makler ohne ausdrückliche Einwilligung des Empfängers verboten!
ohne-makler (OM) ist weder Anbieter noch Vermittler der Immobilie. OM betreibt eine Plattform für Immobilieneigentümer, die unter anderem die gleichzeitige Veröffentlichung einzelner Inserate auf mehreren Immobilienportalen ermöglicht. Die Inhalte dieser Inserate werden ausschließlich von Dritten verantwortet. Für die Richtigkeit, Vollständigkeit oder Rechtmäßigkeit der Angaben übernimmt OM keine Haftung. Hinweise auf mögliche Rechtsverstöße können jederzeit gemeldet werden und werden nach Prüfung umgehend bearbeitet.
Grundriss
Grundriss
>
>
Adresse
38124 Braunschweig
Interessante Orte
Preis- und Lageinformationen
Preistrend für Bestandsimmobilien in Stöckheim-Leiferde