Dieses renovierte Mittelreihenhaus aus dem Jahr 1962 vereint zeitlosen Charakter mit modernem Wohnkomfort. Auf rund 93 m² Wohn- und Nutzfläche erwarten Sie drei helle, gut geschnittene Räume, die mit viel Tageslicht und einem angenehmen Raumgefühl begeistern.
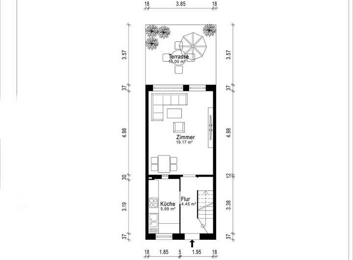
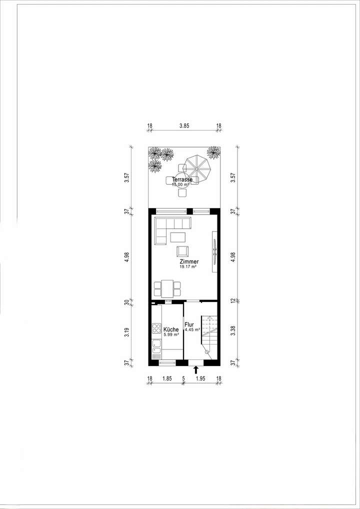
Im Erdgeschoss empfängt Sie eine Küche, die zum gemeinsamen Kochen einlädt. Das lichtdurchflutete Wohn- und Esszimmer bietet den perfekten Ort für gemütliche Abende. Von hier aus gelangen Sie direkt auf die großzügige Terrasse – ideal für entspannte Stunden im Freien oder gesellige Grillabende mit Freunden und Familie.
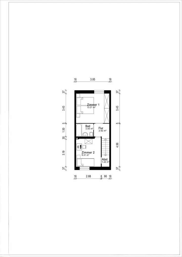
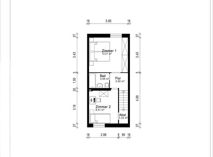
Über eine elegante Holztreppe erreichen Sie das Obergeschoss. Dort erwartet Sie ein großzügiges Duschbad zum Wohlfühlen sowie zwei vielseitig nutzbare Zimmer – perfekt als Schlafzimmer, Büro oder Kinderzimmer.
Das Kellergeschoss bietet praktische Zusatzfläche von rund 30 m².
Isolierverglaste Kunststofffenster mit Außenjalousien sorgen für angenehmes Raumklima und eine behagliche Atmosphäre. Der sonnige Garten lädt zum Entspannen, Spielen oder Gärtnern ein – ein kleines Paradies mitten im Alltag.
Abgerundet wird das Angebot durch eine Einzelgarage. Der Kaufpreis für die Einzelgarage beträgt 15.000 €.
Renoviertes Reihenhaus mit Einzelgarage in begehrter Lage!
22453 Hamburg
Die vollständige Adresse der Immobilie erhalten Sie vom Anbieter.
Auf Karte anzeigen
Die vollständige Adresse der Immobilie erhalten Sie vom Anbieter.
Finanzierungszertifikat
In nur zwei Minuten zu Ihrem persönlichen Finanzierungszertifkat.
Infos
| Haustyp | Reihenmittelhaus |
|---|---|
| Wohnfläche ca. | 63 m2 |
| Nutzfläche | 30 m2 |
| Grundstücksfläche | 90 m2 |
| Bezugsfrei ab | nach Absprache |
| Zimmer | 3 |
| Schlafzimmer | 2 |
| Badezimmer | 1 |
| Garage/Stellplatz | Garage |
| Anzahl Garage/Stellplatz | 1 |
Kosten
| Kaufpreis |
360.000 € |
|---|---|
| Preis für Garage/Stellplatz | 15.000 € |
| Provision |
3,57 % |
Finanzierungsrechner:
Kaufpreis:
600.000 €
Eigenkapital:
600.000 €
Monatliche Rate
0 €
Effektiver Jahreszins
0 %
Sollzinsbindung
10 Jahre
Bausubstanz & Energieausweis
| Baujahr | 1962 |
|---|---|
| Objektzustand | Gepflegt |
| Heizungsart | Zentralheizung |
| Wesentliche Energieträger | Gas |
| Energieausweis | liegt vor |
| Energieausweistyp | Bedarfsausweis |
| Energieverbrauchskennwert | 152,9 kWh/(m²*a) |
| Energieeffizienzklasse | E |
152,9
kWh/(m²*a)
Energieeffizienzklasse E
- A+
- A
- B
- C
- D
- E
- F
- G
- H
- 0
- 25
- 50
- 75
- 100
- 125
- 150
- 175
- 200
- 225
- >250
Beschreibung des Objekts
Lage
Das Haus liegt in einer der schönsten Wohnlagen des Hamburger Stadtteils Niendorf im Bezirk Eimsbüttel. Eingebettet in ein grünes, gepflegtes Umfeld besticht die Lage durch Ruhe, Charme und eine angenehme Nachbarschaft. Die Umgebung ist geprägt von stilvollen Ein- und Mehrfamilienhäusern, blühenden Gärten und viel Natur. Spazierwege, das nahegelegene Niendorfer Gehege und mehrere Parkanlagen bieten Raum für Erholung und Freizeit im Grünen – direkt vor der Haustür.
Trotz der ruhigen Lage ist die Verkehrsanbindung hervorragend. Die U-Bahn-Station Niendorf Markt (Linie U2) sowie verschiedene Buslinien sind schnell erreichbar und ermöglichen eine bequeme Verbindung in die Innenstadt. Über die Anschlussstelle Schnelsen-Nord ist die A7 in wenigen Minuten erreichbar, ebenso der Hamburger Flughafen – ideal für Pendler und Reisende.
Auch die Infrastruktur überzeugt: Schulen, Kindertagesstätten, Ärzte und Sportvereine befinden sich in unmittelbarer Nähe. Für den täglichen Bedarf bieten das Tibarg Center und das Einkaufszentrum Niendorf Markt eine große Auswahl an Geschäften, Cafés und Restaurants. Insgesamt vereint das Haus naturnahes, ruhiges Wohnen mit städtischem Komfort – perfekt für alle, die ein Zuhause mit Herzlichkeit, Lebensqualität und Wohlfühlatmosphäre suchen.
Sonstige Angaben
Besichtigungstermine vereinbaren wir ausschließlich telefonisch.
Nachdem Sie Ihre Anfrage über das Immobilienportal gestellt haben, rufen Sie uns diesbezüglich oder für weitere Informationen gerne zu den üblichen Bürozeiten an.
Alle Angaben nach bestem Wissen. Irrtum und Zwischenverkauf vorbehalten. Dieses Exposé ist eine Vorinformation, als Rechtsgrundlage gilt allein der notariell abgeschlossene Kaufvertrag.
Grundriss
Grundriss Erdgeschoss
>
>
Grundriss Obergeschoss
>
>
Grundriss Keller
>
>
Adresse
22453 Hamburg
Interessante Orte
Preis- und Lageinformationen
Preistrend für Bestandsimmobilien in Niendorf