Erholung auf ca. 400 m² Grundstück, Spaziergänge am Außenmühlenteich und modernes Wohnen – das sind nur einige Highlights dieser charmanten Doppelhaushälfte!
Highlights der Immobilie:
-2022: Großzügiger Anbau & umfassende energetische Sanierung
-2022: 3-fach verglaste PVC-Fenster
-2022: Fassadendämmung 16 cm
-2022: Neue Dacheindeckung inkl. Latten & Plane
-2022: Neue Viessmann-Heizung inkl. Therme
-2022: Neue Einbauküche
-2021: Neues Badezimmer mit Dusche & Wanne + separates WC
Die Doppelhaushälfte ist voll unterkellert und bietet zusätzlichen Stauraum. Im Keller befindet sich ein weiteres Badezimmer mit Dusche & Wanne, das über einen separaten Außeneingang erreichbar ist – ideal für Gäste oder eine flexible Nutzung.
Bei der Sanierung wurde an jedes Detail gedacht: Eine Starkstromleitung zum Gartenschuppen ermöglicht beispielsweise den Einbau einer Sauna oder weiterer Technikanschlüsse.
Energetisch modernisierte Doppelhaushälfte mit traumhaftem Garten
21077 Hamburg
Die vollständige Adresse der Immobilie erhalten Sie vom Anbieter.
Auf Karte anzeigen
Die vollständige Adresse der Immobilie erhalten Sie vom Anbieter.
Finanzierungszertifikat
In nur zwei Minuten zu Ihrem persönlichen Finanzierungszertifkat.
Infos
| Wohnfläche ca. | 85 m2 |
|---|---|
| Grundstücksfläche | 399 m2 |
| Zimmer | 4 |
| Schlafzimmer | 3 |
| Badezimmer | 1 |
| Anzahl Garage/Stellplatz | 3 |
Kosten
| Kaufpreis |
475.000 € |
|---|---|
| Provision |
3,57% inkl. 19.00% MwSt. |
Finanzierungsrechner:
Kaufpreis:
600.000 €
Eigenkapital:
600.000 €
Monatliche Rate
0 €
Effektiver Jahreszins
0 %
Sollzinsbindung
10 Jahre
Bausubstanz & Energieausweis
| Baujahr | 1935 |
|---|---|
| Objektzustand | Saniert |
| Heizungsart | Gas-Heizung |
| Wesentliche Energieträger | Gas |
| Energieausweis | liegt vor |
| Energieausweistyp | Bedarfsausweis |
| Energieverbrauchskennwert | 158,4 kWh/(m²*a) |
| Energieeffizienzklasse | E |
158,4
kWh/(m²*a)
Energieeffizienzklasse E
- A+
- A
- B
- C
- D
- E
- F
- G
- H
- 0
- 25
- 50
- 75
- 100
- 125
- 150
- 175
- 200
- 225
- >250
Beschreibung des Objekts
Lage
Die Doppelhaushälfte befindet sich in einer sehr ruhigen und Kinderfreundlichen Gegend.
-Kinderspielplatz 10 min zu Fuß
-Fußballplatz 5 min zu Fuß
-Buslinie 43,241,143,443, fahren ca. alle 5-10 min
- Phoenix-Center 5 min mit dem Auto & 5 min mit dem Fahrrad
- der Hauptbahnhof Hamburg-Harburg mit S-Bahn, U-Bahn, ICE, Regionalbahn 5 Min mit dem Auto/Fahrrad
Wir befinden uns hier in einer sehr zentralen und beliebten Gegend, die zusätzlich bekannt für ihre romantischen Spaziergänge am Außenmühlenteich ist.
Überzeugen Sie sich selbst!!!
Grundriss
Grundriss Erdgeschoss
>
>
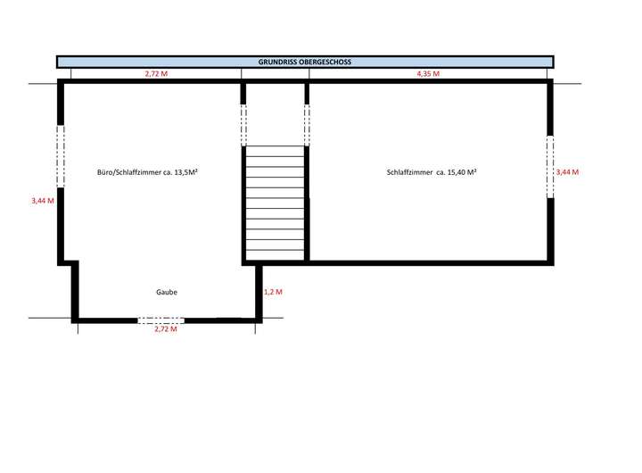
Grundriss Obergeschoss
>
>
Grundriss Keller
>
>
Adresse
21077 Hamburg
Interessante Orte
Preis- und Lageinformationen
Preistrend für Bestandsimmobilien in Wilstorf