Dieses attraktive im Jahr 2005 erbaute Villenanwesen besticht durch seine hohe Qualität der Ausstattung,
dem großen Grundstück, der hohen Wohnfläche mit ca. 664 m² und den vielfältigen Nutzungsmöglichkeiten,
auch dank der sinnigen Aufteilung in Hauptwohnung mit 531 m² und den beiden Einliegerwohnungen mit ca.
63 und 68 m².
So finden Sie und Ihre Familie Platz zum Entfalten und können die Einliegerwohnungen bspw. als Büro nutzen
oder Haushaltsmitgliedern, Bediensteten oder Mietern zur Verfügung stellen.
Dieses Schmuckstück ist etwas ganz Besonderes:
Die Empfangshalle mit offenem Treppenhaus und freitragenden Treppe mit Granitstufen lässt schon
erahnen, welche exklusive Immobilie hier zu erwarten ist.
In der Hauptwohnung befinden sich im Erdgeschoß die Küche, das große helle und offene Wohn- und Esszimmer mit Kamin, sowie das
Gäste-WC und der große Balkon.
Die großen hochwertigen Fliesen im ganzen Haus und die modernen und exklusiven Ausstattung in Bädern
und Küche zeugen von Eleganz und Luxus.
Dank hohen Decken und den großen Fenstern ist das ganze Haus hell und geräumig.
Der Ausblick in den privaten Garten und den zwei großen Terrassen mit Blick über den Stadtwald bis zur
Skyline von Frankfurt ist einzigartig und sucht seinesgleichen.
Im Obergeschoß finden sich drei Schlafzimmer, jeweils mit exklusivem Badezimmer en Suite.
Alle Bäder sind mit hochwertigen Badezimmermöbeln, Bidet, WC, Dusche und Handtuchwärmern
ausgestattet, das Herren-Bad mit Pissoir, das Damen-Bad mit freistehender Badewanne.
Das Master- und Damen-Schlafzimmer verfügen über den direkten Zugang zum zweiten großen Balkon, der
sich hervorragend für ein Whirlpool eignet oder für Sonnenliegen zum Entspannen.
Im zweiten Obergeschoß finden sich schließlich noch zwei weitere Zimmer, diese eignen sich bestens als
Gäste- oder weiteres Kinderzimmer. Eines der beiden wird aktuell als Ankleide genutzt.
Im Untergeschoß liegen neben Hauswirtschaftsraum, Heizraum und Garage auch der großzügige Spa- und
Fitnessbereich mit weiterem Badezimmer mit Dampfbad und Sauna.
Die Garage ist gefliest und verfügt durch die zwei elektrischen Segmenttore auch die Möglichkeit, dank der
hohen Decke, mit Gartenfahrzeugen direkt durch die Garage in den Garten zu fahren (Durchfahrtshöhe
2.80m), dort stehen zusätzlich zur großen Doppelgarage, zwei weitere Stellplätze zur Verfügung. Eine kleine
Werkstatt findet sich auch hier in der Garage.
Die untere Einliegerwohnung besteht aus zwei Zimmern mit Küche und Bad und einer überdachten Terrasse
Richtung Garten, sie liegt auf dem Gartenstockwerk (UG).
Die obere Einliegerwohnung liegt im Erdgeschoß und wird aktuell als Büro genutzt. Sie ist eine
Maissonettwohnung mit Schlafzimmer im 1. OG. Auch sie verfügt über zwei große Räume, eine Küche und
Badezimmer.
Das Objekt ist in seiner Lage und Ausstattung einzigartig, genießen Sie die Natur und sind Sie gleichzeitig in
direkter Nähe zur Bankenhauptstadt Frankfurt mit den Vorzügen einer Metropolregion, wie dem
internationalen Flughafen. Das Gebäude liegt in einem ruhigen Wohngebiet, dank dem Garten in Richtung
Stadtwald ist die private Atmosphäre und Ruhe stets gewahrt.
Nutzen Sie diese einmalige Gelegenheit und überzeugen Sie sich persönlich von diesem traumhaften
Villenanwesen. Da dieses Objekt zahlreiche sehenswerte Ecken und Details bietet, können wir entsprechend
nur einen kleinen Teil davon darstellen.
Die wahre Pracht zeigt sich Ihnen erst, wenn Sie es mit eigenen Augen betrachten.
Lassen Sie uns Ihnen das Objekt persönlich vorstellen und vereinbaren Sie zeitnah einen Termin mit unserem
Team!
Exklusives und repräsentatives Anwesen mit Blick auf die Frankfurter Skyline
63477 Maintal
Die vollständige Adresse der Immobilie erhalten Sie vom Anbieter.
Auf Karte anzeigen
Die vollständige Adresse der Immobilie erhalten Sie vom Anbieter.
Finanzierungszertifikat
In nur zwei Minuten zu Ihrem persönlichen Finanzierungszertifkat.
Infos
| Haustyp | Villa |
|---|---|
| Etagenzahl | 3 |
| Wohnfläche ca. | 664 m2 |
| Nutzfläche | 141 m2 |
| Grundstücksfläche | 1.019 m2 |
| Zimmer | 10 |
| Schlafzimmer | 7 |
| Badezimmer | 6 |
| Garage/Stellplatz | Garage |
| Anzahl Garage/Stellplatz | 4 |
Kosten
| Kaufpreis |
0 € |
|---|---|
| Provision |
4,76 % Käuferprovision inkl. MwSt. verdient und fällig mit Beurkundung des notariellen Kaufvertrages. Der Immobilienmakler hat einen provisionspflichtigen Maklervertrag mit dem Verkäufer in gleicher Höhe abgeschlossen. |
Finanzierungsrechner:
Kaufpreis:
600.000 €
Eigenkapital:
600.000 €
Monatliche Rate
0 €
Effektiver Jahreszins
0 %
Sollzinsbindung
10 Jahre
Bausubstanz & Energieausweis
| Baujahr | 2005 |
|---|---|
| Bauphase | Haus fertig gestellt |
| Objektzustand | Gepflegt |
| Qualität der Austattung | Luxus |
| Heizungsart | Fußbodenheizung |
| Wesentliche Energieträger | Öl |
| Energieausweis | liegt vor |
| Energieausweistyp | Bedarfsausweis |
| Energieverbrauchskennwert | 78,5 kWh/(m²*a) |
| Energieeffizienzklasse | C |
78,5
kWh/(m²*a)
Energieeffizienzklasse C
- A+
- A
- B
- C
- D
- E
- F
- G
- H
- 0
- 25
- 50
- 75
- 100
- 125
- 150
- 175
- 200
- 225
- >250
Beschreibung des Objekts
Lage
Die Immobilie liegt im Stadtteil Hochstadt, einem der vier Maintaler Stadtteile, der für seine gepflegte
Wohnbebauung und die historische Altstadt mit Fachwerkidylle bekannt ist. Hochstadt verbindet ländlichen
Charme mit moderner Infrastruktur und bietet eine hohe Lebensqualität inmitten des Rhein-Main-Gebiets.
Das Objekt liegt in einer ruhigen Anliegerstraße ohne Durchgangsverkehr. Die Autobahn A66 ist in wenigen Minuten erreichbar und ermöglicht eine schnelle Verbindung nach Frankfurt am Main (Stadtgrenze ca. 5 Minuten, Innenstadt ca. 20 Minuten
Fahrzeit) und Hanau (ca. 10 Minuten). Der S-Bahnhof Maintal-Ost ist etwa 2 km entfernt und bietet direkte Verbindungen in die Frankfurter Innenstadt und nach Hanau. Buslinien verbinden Hochstadt mit den
umliegenden Stadtteilen und Bahnhöfen.
Maintal vereint städtische und ländliche Strukturen: Urbanes Leben, kurze Wege und eine hervorragende Nahversorgung treffen hier auf die Nähe zu weiten Streuobstwiesen, Feldern und dem Mainufer. Im Stadtteil finden sich Einkaufsmöglichkeiten, Gastronomie, Apotheken und weitere Dienstleister. Das Bildungsangebot umfasst Kindergärten, Grundschulen und weiterführende Schulen; auch renommierte Privatschulen und
internationale Schulen im Rhein-Main-Gebiet sind gut erreichbar. Die Nähe zum Flughafen Frankfurt/RheinMain ist ein zusätzlicher Standortvorteil.
Maintal bietet zahlreiche Möglichkeiten zur Freizeitgestaltung: Rund 180 Vereine, vielfältige Sport- und Kulturangebote sowie zahlreiche Grünflächen und Parks stehen zur Verfügung. Das Mainufer,
Streuobstwiesen und das Umland laden zu Spaziergängen und sportlichen Aktivitäten ein. Familienfreundlichkeit, ein aktives Gemeinwesen und eine ausgezeichnete Kinderbetreuung prägen das Stadtbild.
Die Lage bietet ein hochwertiges, ruhiges Wohnumfeld mit sehr guter
Verkehrsanbindung, umfassender Infrastruktur und vielfältigen Freizeitmöglichkeiten. Die Symbiose aus
städtischem Komfort und naturnahem Wohnen macht Maintal-Hochstadt zu einer besonders attraktiven
Adresse im Rhein-Main-Gebiet.
Sonstige Angaben
Widerrufsrecht:
Sie können Ihre Vertragserklärung innerhalb von 14 Tagen ohne Angabe von Gründen in Textform (z.B. Brief, Fax, E-Mail) widerrufen. Die Frist beginnt nach Erhalt dieser Belehrung in Textform, jedoch nicht vor Vertragsschluss und auch nicht vor Erfüllung unserer Informationspflichten gemäß Artikel 246 § 2 in Verbindung mit § 1 Absatz 1 und 2 EGBGB. Zur Wahrung der Widerrufsfrist genügt die rechtzeitige Absendung des Widerrufs. Der Widerruf ist zu richten an: AGS Anlagegesellschaft Schwaben mbH, Waldstr. 19, 73669 Lichtenwald.
Geldwäschegesetz:
Die AGS Anlagegesellschaft mbH ist nach § § 1, 2 Abs. 1 Nr. 10, 4 Abs. 3 Geldwäschegesetz (GwG) dazu verpflichtet, vor Begründung einer Geschäftsbeziehung die Identität des Vertragspartners festzustellen und zu überprüfen. Hierzu ist es erforderlich, dass wir die relevanten Daten Ihres
Personalausweises oder Reisepasses festhalten. Das Geldwäschegesetz (GwG) sieht vor, dass der Makler die Kopien und erfassten Daten mit seinen Unterlagen
fünf Jahre aufbewahren muss.
Alle Aussagen in diesem Exposé basieren ausschließlich auf Informationen, die vom Eigentümer stammen. Trotz sorgfältiger
Prüfung der Objektangaben übernehmen wir keine Gewähr für die Vollständigkeit, Richtigkeit und Aktualität dieser Angaben.
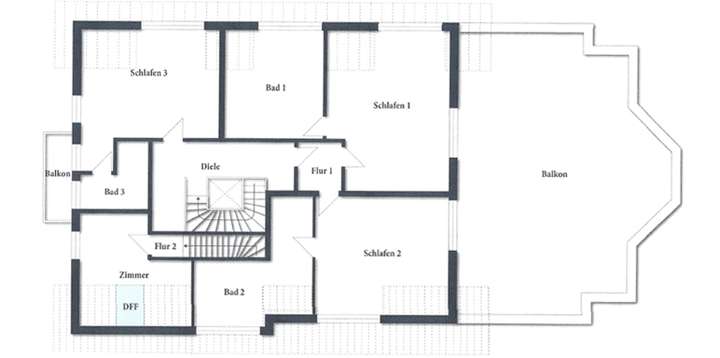
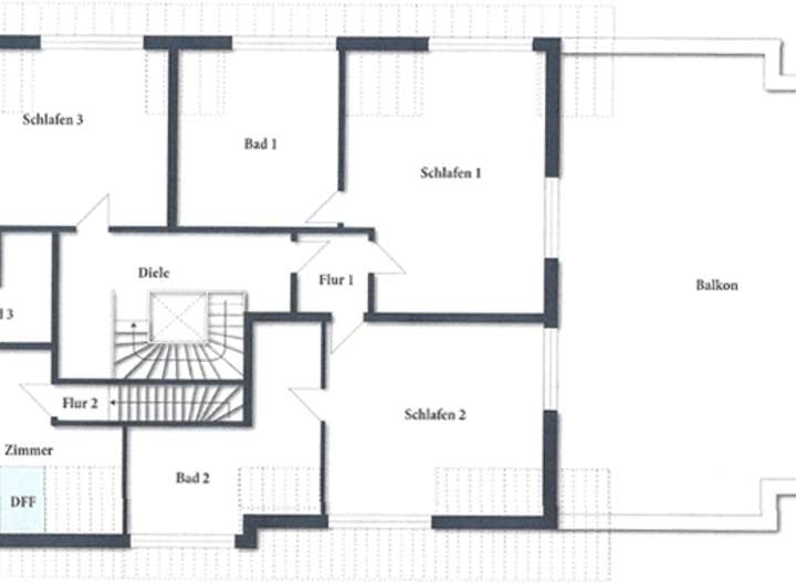
Grundriss
Untergeschoss
>
>
Erdgeschoss
>
>
Obergeschoss
>
>
Dachgeschoss
>
>
Adresse
63477 Maintal
Interessante Orte
Preis- und Lageinformationen
Preistrend für Bestandsimmobilien in Maintal