Provisionsfrei wird dieses top moderne Reihenhaus auf einem schicken Grundstück nach Süden ausgerichtet, sodass Sie die Sonne im eigenen Garten genießen können.
Das Haus erstreckt sich mit insgesamt 5 Zimmern und 2 Bäder über 2 Etagen im Erd- und Obergeschoss plus dem ausgebauten Dachgeschoss und in den wohnlichen Kellerräumen.
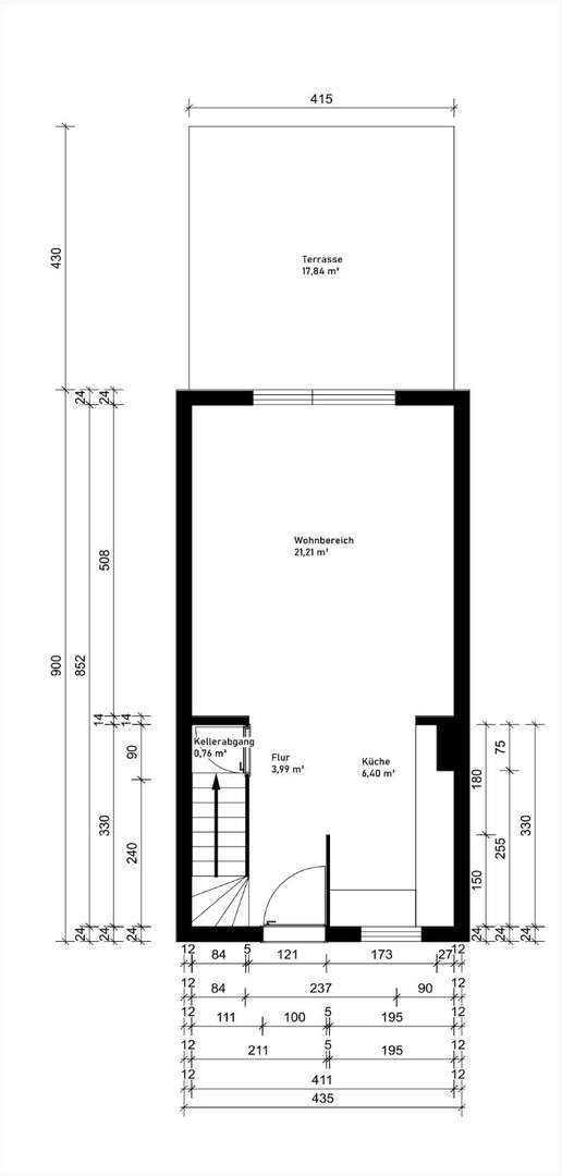
Im Inneren des Hauses öffnet sich der Eingangsbereich in einen Flur, von dem eine gut eingerichtete Küche sowie das Wohnzimmer mit Terrassenzugang abgehen. Über die abgeschirmte Terrasse blicken Sie in einen schön grün eingewachsenen Garten mit Südausrichtung und viel Sonne.
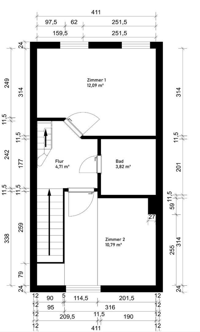
Das Obergeschoss bietet Ihnen ein modernes Badezimmer, zwei Schlafzimmer oder ein Schlaf-/Kinderzimmer und ein Büro, welches z.B. als Homeoffice genutzt werden kann. Das größere Zimmer ist nach Süden, zum Garten ausgerichtet.
Das ausgebaute Dachgeschoss besitzt zwei neuen Dachflächenfenster und ist ebenfalls ein großes lichtdurchflutetes Zimmer, welches z.B. als weiteres Schlaf- oder als Hobbyzimmer dienen kann.
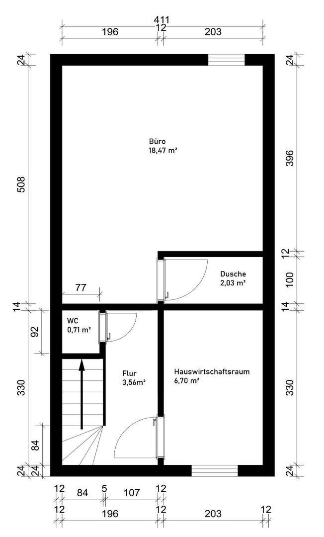
Das Haus ist außerdem voll unterkellert und bietet so genügend zusätzlichen Platz für all Ihre Wünsche, so dass Sie hier ein modernes Gäste-WC, eine zusätzliche Dusche und einen weiteren großen Raum mit Fußbodenheizung und Fenster für Ihre Gäste oder als Hobbyraum nutzbar, betreten können. Der Hauswirtschaftraum bietet genügend Platz für den neuen Stromkasten, Ihre Haushaltsgeräte oder weitere Sachen zum Lagern.
Die Wohnfläche wurde nach DIN 277 berechnet und beträgt ca. 111 qm.
Alle Fenster wurden gerade erst erneuert, sind dreifach verglast
und besitzen neue elektrische Rollläden. Die Fensterrahmen bestehen aus weißem Kunststoff. Die Wände des Hauses erstrahlen in modernem Polarweiß mit passenden neuen Schaltern und Steckdosen. Die gesamte Elektrik inklusive Sicherungskasten wurde erneuert und fachgerecht geprüft.
Der neue Boden besteht aus einem pflegeleichten und freundlichen Vinyl in Eichenoptik mit Hamburger Fußleiste und wurde durchgehend über der Fußbodenheizung im ganzen Haus verlegt. Störende Heizkörper werden Sie hier nicht finden!
Das Haus wurde mit drei neuen Wärmepumpen ausgestattet, so dass Sie nach Belieben die Temperatur in jedem Geschoss unterschiedlich hoch einstellen bzw.komplett unabhängig voneinander ausschalten können. Damit erwerben Sie ein zukunftssicheres Haus, welches durch die dreifachverglasten Fenster, die Wärmeverbundfassade und die solide gedämmte Dachfläche sehr gut isoliert ist, so dass es Ihnen eine hervorragende Energieeffizienz bietet.
Dieses Reihenmittelhaus ist etwas ganz Besonderes und wartet mit seinen vielen Highlights darauf, Ihr neues Zuhause zu werden: sofort einziehen und einfach wohlfühlen!
Top modernes Reihenhaus an der Fischbeker Heide (Naturschutzgebiet)
Wulmstorfer Ring -,
21149 Hamburg
Auf Karte anzeigen
Finanzierungszertifikat
In nur zwei Minuten zu Ihrem persönlichen Finanzierungszertifkat.
Infos
| Haustyp | Reihenmittelhaus |
|---|---|
| Wohnfläche ca. | 111 m2 |
| Grundstücksfläche | 125 m2 |
| Bezugsfrei ab | sofort |
| Zimmer | 5 |
| Badezimmer | 2 |
Kosten
| Kaufpreis |
449.900 € |
|---|---|
| Provision | Nein |
Finanzierungsrechner:
Kaufpreis:
600.000 €
Eigenkapital:
600.000 €
Monatliche Rate
0 €
Effektiver Jahreszins
0 %
Sollzinsbindung
10 Jahre
Bausubstanz & Energieausweis
| Baujahr | unbekannt |
|---|---|
| Objektzustand | Saniert |
| Energieausweis | liegt zur Besichtigung vor |
Beschreibung des Objekts
Ausstattung
Terrasse, Garten, Keller, Duschbad, Einbauküche, Gäste-WC, Fliesen
Bemerkungen:
- drei neue Wärmepumpen
- neue Elektrik mit neuem Stromkasten
- neue dreifachverglaste Fenster
- neue elektrische Rollläden mit Fernbedienung
- neue moderne Ausstattung mit namenhaften Markenherstellern wie z.B. GROHE oder Bosch.
Lage
Das Reihenhaus befindet sich in einer ruhigen Lage Neugraben-Fischbeks mit freundlichen Nachbarn und gepflegte Gärten, in einer ruhigen Anwohnerstraße mit ausreichend Parkmöglichkeiten und schöner Nachbarschaftsinfrastruktur. Sie genießen hier eine familienfreundlichen Atmosphäre mit viel Grün in direkter Nachbarschaft zur Fischbeker Heide.
Die Fischbeker Heide ist eines der größten Naturschutzgebiete südwestlich von Hamburgs Innenstadt, welches durch den Heidschnuckenwanderweg entlang der Heideflächen bis nach Buchholz führt. Auch für kürzere Wanderungen und Spaziergänge ist die Fischbeker Heide fußläufig 3 Minuten von diesem Reihenhaus ideal gelegen und hat z.B. mit einem Segelflugplatz oder der Heideblüte einige Besonderheiten zu bieten.
In unmittelbarer Nähe finden Sie eine Vielzahl von Einkaufsmöglichkeiten, Restaurants, Cafés und Freizeiteinrichtungen. Die Anbindung an den öffentlichen Nahverkehr ist hervorragend, so dass Sie die Innenstadt bequem und schnell erreichen können. Auch Schulen, Kindergärten und medizinische Einrichtungen sind gut erreichbar. Diese Lage ist deshalb besonders für Familien und Berufstätige attraktiv.
Infrastruktur (im Umkreis von 5 km):
Apotheke, Lebensmittel-Discount, Allgemeinmediziner, Kindergarten, Grundschule, Hauptschule, Realschule, Gymnasium, Gesamtschule, Öffentliche Verkehrsmittel
Sonstige Angaben
Heizungsart: Fußbodenheizung
Energieausweis nicht vorhanden
Makleranfragen nicht erwünscht. Nach § 7 UWG sind unaufgeforderte Kontaktaufnahmen durch Makler ohne ausdrückliche Einwilligung des Empfängers verboten!
ohne-makler (OM) ist weder Anbieter noch Vermittler der Immobilie. OM betreibt eine Plattform für Immobilieneigentümer, die unter anderem die gleichzeitige Veröffentlichung einzelner Inserate auf mehreren Immobilienportalen ermöglicht. Die Inhalte dieser Inserate werden ausschließlich von Dritten verantwortet. Für die Richtigkeit, Vollständigkeit oder Rechtmäßigkeit der Angaben übernimmt OM keine Haftung. Hinweise auf mögliche Rechtsverstöße können jederzeit gemeldet werden und werden nach Prüfung umgehend bearbeitet.
Grundriss
Grundriss
>
>
Grundriss
>
>
Grundriss
>
>
Grundriss
>
>
Adresse
Wulmstorfer Ring -, 21149 Hamburg
Interessante Orte
Preis- und Lageinformationen
Preistrend für Bestandsimmobilien in Neugraben-Fischbek