Das projektierte Haus EVOLUTION 161 von Bien-Zenker ist eine moderne Wohlfühloase, die individuell nach Ihren Vorstellungen gestaltet wird. Mit einer großzügigen Wohnfläche von 170 m² und fünf hellen Zimmern, darunter drei Schlafzimmer und drei Badezimmer, bietet dieses Fertighaus viel Platz für die ganze Familie. Die durchdachte Raumaufteilung sorgt für eine harmonische Verbindung der verschiedenen Lebensbereiche. Ob Privatsphäre in den Schlafzimmern oder geselliges Beisammensein im Wohn- und Essbereich - hier werden Ihre Bedürfnisse erfüllt. Zudem können Sie zwischen zwei Dachformen wählen und aus vielen Architektur-Bauteilen Ihr EVOLUTION 161 veredeln.
Im EVOLUTION 161 genießen Sie nicht nur architektonisches Design, sondern auch viele Komfortdetails. Die lichtdurchfluteten Räume schaffen eine angenehme Atmosphäre, während große Fenster Ihnen einen herrlichen Blick auf Ihr 1100 m² großes Grundstück bieten. Genießen Sie sonnige Tage auf der Terrasse oder im Garten, der viel Platz für Freizeit und Entspannung bietet. Abstellräume sorgen für Ordnung und bieten Stauraum - ein wichtiger Aspekt für ein harmonisches Familienleben.
Die gewählte Ausbaustufe verspricht einen stressfreien Bauablauf. Bien-Zenker übernimmt den Hausbau für Sie - vom Rohbau bis zur letzten Fliese. Dabei werden alle Anforderungen des staatlichen Qualitätssiegels für Nachhaltigkeit erfüllt, sodass Sie in ein komfortables Zuhause investieren und von KfW-Förderungen profitieren. Der gesamte Prozess wird angenehm gestaltet, damit Sie sich auf die Vorfreude auf Ihr neues Zuhause konzentrieren können.
Bien-Zenker ist nicht nur ein Anbieter von Fertighäusern, sondern Ihr Partner auf dem Weg zu Ihrem Traumhaus. Mit über 115 Jahren Erfahrung und mehr als 80.000 gebauten Häusern wissen wir, wie wichtig es ist, dass Sie sich in Ihrem neuen Zuhause wohlfühlen. Unsere individuelle Beratung und Unterstützung begleiten Sie bis zur Schlüsselübergabe, damit Ihr Haus nicht nur ein Bauwerk, sondern ein echtes Zuhause wird.
Grundrisse und Abbildungen können Extras zeigen. Flächenangaben nach DIN 277.
            
        Bien-Zenker: Ihr Traumhaus individuell geplant in Hamburg - Eidelstedt
                     22523 Hamburg                            
Die vollständige Adresse der Immobilie erhalten Sie vom Anbieter.
        
            
            Auf Karte anzeigen
        
        Die vollständige Adresse der Immobilie erhalten Sie vom Anbieter.
    Finanzierungszertifikat
In nur zwei Minuten zu Ihrem persönlichen Finanzierungszertifkat.
Infos
| Haustyp | Einfamilienhaus | 
|---|---|
| Wohnfläche ca. | 170 m2 | 
| Grundstücksfläche | 1.100 m2 | 
| Zimmer | 5 | 
| Schlafzimmer | 3 | 
| Badezimmer | 3 | 
Kosten
| Kaufpreis | 
                988.740 € | 
        
|---|
Finanzierungsrechner:
                    
                     Kaufpreis:
                        
                            600.000 €
                        
                    
                    
                    
                
            
                        
                            Eigenkapital:
                            
                                 600.000 €
                            
                        
                    
                
            
                        Monatliche Rate
                        0 €
                    
                    
                        
                            Effektiver Jahreszins
                        
                        0 %
                    
                    
                        Sollzinsbindung
                        10 Jahre
                    
                Bausubstanz & Energieausweis
| Baujahr | unbekannt | 
|---|---|
| Bauphase | Haus in Planung (projektiert) | 
| Qualität der Austattung | Gehoben | 
Beschreibung des Objekts
Ausstattung
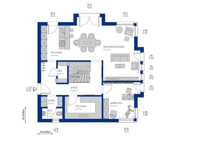
                Der Grundriss des EVOLUTION 161 überzeugt mit intelligenter Raumaufteilung. Mit insgesamt fünf Zimmern, darunter drei lichtdurchflutete Schlafzimmer und drei moderne Badezimmer, bietet dieses Haus den perfekten Rückzugsort für die ganze Familie. Die durchdachte Aufteilung sorgt dafür, dass jeder seinen Raum findet, während gemeinschaftliche Bereiche wie der Wohn- und Essbereich einladend zusammenführen. Hier können Sie unvergessliche Momente mit Freunden und Familie erleben.
Besonderheiten wie großzügige Fensterfronten und die Möglichkeit, einen Balkon oder eine Terrasse zu gestalten, lassen Licht und Lebensfreude in Ihr Zuhause einziehen. Genießen Sie entspannte Stunden im Freien oder lassen Sie sich von der harmonischen Gestaltung der Innenräume inspirieren. Abstellräume bieten Funktionalität, um Ordnung zu halten, während die lichtdurchfluteten Räume für eine angenehme Wohnatmosphäre sorgen. Das Zusammenspiel von Raumwirkung und Designästhetik macht Ihr Zuhause zu einem Ort, an dem Sie sich rundum wohlfühlen.
Die gewählte Ausbaustufe garantiert Ihnen ein schlüsselfertiges Zuhause und ein Höchstmaß an Komfort. Bien-Zenker übernimmt den gesamten Bauablauf, vom Rohbau bis zum Innenausbau. Das bedeutet weniger Stress und mehr Zeit für die Vorfreude auf Ihr neues Zuhause. Die Berücksichtigung des Qualitätssiegels für Nachhaltigkeit sorgt dafür, dass Sie ein modernes und umweltfreundliches Zuhause erhalten. Sichern Sie sich attraktive KfW-Förderungen und genießen Sie die Vorteile eines Bien-Zenker Hauses.
               
        Lage
                Hamburg bietet eine hervorragende Lebensqualität mit vielen Möglichkeiten für Bildung, Gesundheit, Einkauf und Freizeit. In der Umgebung gibt es zahlreiche Schulen und Kindergärten, die eine optimale Betreuung für Ihre Kinder gewährleisten. Die gute Anbindung an öffentliche Verkehrsmittel ermöglicht eine stressfreie Fahrt in die Innenstadt oder zu weiteren Stadtteilen, wo Sie eine bunte Auswahl an Geschäften, Restaurants und kulturellen Angeboten entdecken können.
Für Ihre Gesundheit stehen in der Nähe moderne Ärztezentren und Kliniken zur Verfügung, die eine umfassende medizinische Versorgung garantieren. Wenn es um Freizeitgestaltung geht, sind Sie in Hamburg ebenfalls bestens aufgehoben: Parks und Grünflächen laden zum Entspannen ein, während zahlreiche Sporteinrichtungen und Freizeitaktivitäten für Abwechslung sorgen. Die Autobahn ist schnell erreichbar, sodass Sie Ausflüge in die umliegenden Regionen problemlos planen können.
All diese Aspekte machen den Standort Hamburg zu einem idealen Ort für Ihr neues Zuhause, in dem Sie und Ihre Familie sich rundum wohlfühlen werden. Besonders im Hamburger Stadtteil Eidelstedt können Sie von diesen Vorzügen profitieren und ein harmonisches Leben führen.
                
        Sonstige Angaben
                Der angegebene Wert zur Grunderwerbsteuer ist ein automatisierter Wert vom Portalbetreiber, der nicht der Realität entspricht, da die Grunderwerbsteuer nur auf den im Gesamtangebot einberechneten Grundstückswert berechnet wird.
Inkl. PV-Anlage und Speicher für die eigene Stromversorgung.
Auf Wunsch können alle Kriterien für eine KFN-QNG Förderung erfüllt werden.
Hausabbildungen mit Sonderwünschen.
Grundrisse können individuell geändert werden.
Auf Wunsch ist ein Keller möglich.
           
        Adresse
22523 Hamburg
Interessante Orte
Preis- und Lageinformationen
                Preistrend für Bestandsimmobilien in Eidelstedt
    
        
                    
            
        
    
                                        >
                                                                    
                                        >