Das Haus – gepflegt, großzügig und bezugsfertig
Erbaut im Jahr 1997, präsentiert sich dieses Haus in hervorragendem Zustand und ist sofort bezugsbereit – einmal streichen, einziehen, wohlfühlen!
Erdgeschoss (ca. 75 m²):
-Großzügige Diele, Gäste-WC und Abstellraum
-Große Küche (14 m²) mit Platz für Familie und Freunde
-Wohnzimmer (47 m²) mit bodentiefen Fenstern und Zugang zur Südterrasse
-Edler Granitboden und Fußbodenheizung im gesamten EG
-Überhohe Räume schaffen ein luftiges, helles Wohngefühl
-Kaminanschluss vorhanden
Obergeschoss (ca. 75 m²):
-Drei helle Zimmer, alle mit bodentiefen Fenstern
-Zwei gepflegte Bäder
-Zwei Zimmer mit bemerkenswert schönem Blick über den Taunus
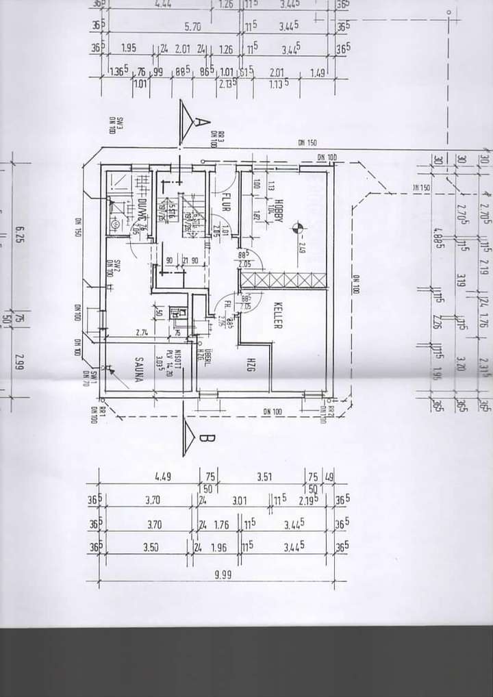
Kellergeschoss (ca. 75 m²):
-Separater Eingang – ideal für Einliegerwohnung, Gäste oder Büro
-Zimmer (11 m²) und Bad mit Saunadusche
-Saunaanschluss vorhanden
-Drei weitere Kellerräume, darunter Heizungsraum (Gasheizung, regelmäßig gewartet)
Dachgeschoss:
Große Ausbaureserve für zusätzlichen Wohnraum, Atelier oder Studio
Außenbereich: Sonne, Ruhe und ein Garten zum Verlieben
Das 692 m² große Grundstück ist liebevoll angelegt, pflegeleicht und wunderschön eingewachsen.
Zwei großzügige Terrassen – eine davon mit perfekter Süd-Ausrichtung und unverbaubarem Fernblick – laden zum Entspannen ein.
Eine Garage mit darunterliegendem Werkzeugraum und zwei Stellplätze runden das Gesamtbild ab.
Ausstattungshighlights:
-Ruhige Lage am Ende eines Wendehammers
-Granitboden und Fußbodenheizung im Erdgeschoss
-Bodentiefe Fenster in allen Wohnräumen
-Überhohe Decken für ein großzügiges Raumgefühl
-Kaminanschluss im Wohnzimmer
-Saunaanschluss im Keller
-Einliegerwohnung möglich durch separaten Eingang
-Immer gewartete Gasheizung
-Ausbaureserve im Dachgeschoss
-Südterrasse mit Fernblick, gepflegter Garten
-Garage + 2 Stellplätze
Keine Maklercourtage – Verkauf von privat
Verfügbar nach Absprache
Sehr schönes Einfamilienhaus mit Fernblick, Stil und Ausbaureserve in Waldems
65529 Waldems
Die vollständige Adresse der Immobilie erhalten Sie vom Anbieter.
Auf Karte anzeigen
Die vollständige Adresse der Immobilie erhalten Sie vom Anbieter.
Finanzierungszertifikat
In nur zwei Minuten zu Ihrem persönlichen Finanzierungszertifkat.
Infos
| Haustyp | Einfamilienhaus |
|---|---|
| Etagenzahl | 2 |
| Wohnfläche ca. | 165 m2 |
| Nutzfläche | 60 m2 |
| Grundstücksfläche | 692 m2 |
| Bezugsfrei ab | 01.12.2025 |
| Zimmer | 5 |
| Schlafzimmer | 4 |
| Badezimmer | 3 |
| Garage/Stellplatz | Garage |
| Anzahl Garage/Stellplatz | 1 |
Kosten
| Kaufpreis |
685.000 € |
|---|---|
| Provision | Nein |
Finanzierungsrechner:
Kaufpreis:
600.000 €
Eigenkapital:
600.000 €
Monatliche Rate
0 €
Effektiver Jahreszins
0 %
Sollzinsbindung
10 Jahre
Bausubstanz & Energieausweis
| Baujahr | 1997 |
|---|---|
| Letzte Sanierung | 2022 |
| Bauphase | Haus fertig gestellt |
| Objektzustand | Gepflegt |
| Qualität der Austattung | Gehoben |
| Heizungsart | Gas-Heizung |
| Wesentliche Energieträger | Gas |
Beschreibung des Objekts
Lage
Waldems-Steinfischbach ist ein kleiner, ruhiger Ort im Taunus – ideal für Familien und Naturliebhaber.
Der Ort verfügt über einen Kindergarten und liegt nur rund 15 Minuten von Idstein und Bad Camberg entfernt, wo es alle Ärzte und Einkaufsmöglichkeiten gibt. Die Autobahn A3 ist ebenfalls in etwa 15 Minuten erreichbar. In Idstein besteht ein S-Bahn-Anschluss mit direkter Verbindung Richtung Frankfurt und Wiesbaden – ideal für Berufspendler, die ländliche Ruhe mit städtischer Nähe verbinden möchten.
Sonstige Angaben
Fazit
Ein Haus mit Herz und Stil – perfekt für alle, die Ruhe, Natur und Qualität schätzen.
Dieses Zuhause verbindet gehobenen Wohnkomfort mit Taunusidylle und viel Potenzial für die Zukunft.
Überzeugen Sie sich selbst – wir freuen uns auf Ihre Anfrage!
Grundriss
Erdgeschoß
>
>
Keller
>
>
Obergschoß
>
>
Adresse
65529 Waldems
Interessante Orte
Preis- und Lageinformationen
Preistrend für Bestandsimmobilien in Waldems