Großzügiges Einfamilienhaus in Ortsrandlage von Braunfels. Dieses schöne Reihenhaus finden Sie auf einem pflegeleicht angelegten Grundstück von 250 qm. Gleich vor dem Haus befindet sich ein Stellplatz. Die Ortsrandlage gewährleistet ruhiges Wohnen in dennoch zentraler Lage. Das Haus verfügt über eine Gesamtwohnfläche von 100 qm, aufgeteilt auf 4 Zimmer, Küche, Bad, Gäste-WC, Diele, Balkon und große überdachte Terrasse. Im Untergeschoss befinden sich 2 Kellerräume.
Das Haus ist seit Mai 2013 vermietet.
Reihenhaus in Braunfels – Kapitalanlage - provisionsfrei
35619 Braunfels
Die vollständige Adresse der Immobilie erhalten Sie vom Anbieter.
Auf Karte anzeigen
Die vollständige Adresse der Immobilie erhalten Sie vom Anbieter.
Finanzierungszertifikat
In nur zwei Minuten zu Ihrem persönlichen Finanzierungszertifkat.
Infos
| Haustyp | Reihenmittelhaus |
|---|---|
| Etagenzahl | 1 |
| Wohnfläche ca. | 100 m2 |
| Nutzfläche | 20 m2 |
| Grundstücksfläche | 250 m2 |
| Zimmer | 4,5 |
| Schlafzimmer | 2 |
| Badezimmer | 1 |
| Garage/Stellplatz | Außenstellplatz |
| Anzahl Garage/Stellplatz | 1 |
Kosten
| Kaufpreis |
265.000 € |
|---|---|
| Provision | Nein |
Finanzierungsrechner:
Kaufpreis:
600.000 €
Eigenkapital:
600.000 €
Monatliche Rate
0 €
Effektiver Jahreszins
0 %
Sollzinsbindung
10 Jahre
Bausubstanz & Energieausweis
| Baujahr | 1980 |
|---|---|
| Bauphase | Haus fertig gestellt |
| Heizungsart | Zentralheizung |
| Wesentliche Energieträger | Gas |
| Energieausweis | liegt vor |
| Energieausweistyp | Bedarfsausweis |
| Energieverbrauchskennwert | 100,0 kWh/(m²*a) |
| Energieeffizienzklasse | B |
100,0
kWh/(m²*a)
Energieeffizienzklasse B
- A+
- A
- B
- C
- D
- E
- F
- G
- H
- 0
- 25
- 50
- 75
- 100
- 125
- 150
- 175
- 200
- 225
- >250
Beschreibung des Objekts
Ausstattung
- ruhige Lage
- helle, freundliche Räume
- kleiner Balkon
- Terrasse
- Badezimmer mit Dusche und Badewanne
- Gäste-WC
- 2 Kellerräume
- sehr guter Zustand
- vermietet
Lage
Braunfels liegt verkehrsgünstig an der B49 mit guter Anbindung zur A45 Richtung Frankfurt/Wiesbaden bzw. Dortmund (Sauerlandlinie). Auch Limburg mit ICE-Bahnhof und Anschluss zur A3 Richtung Köln ist über die B49 in ca. 20 Autominuten gut zu erreichen.
In der nur 1 km entfernten Stadtmitte von Braunfels befinden sich alle Einkaufsmöglichkeiten des täglichen Bedarfs wie Supermarkt, Discounter, Schreibwaren, Apotheke, Brillen- und Tiergeschäft, Friseur, Eiscaffee, sowie Tankstelle und Autohäuser. Die ärztliche Versorgung ist mit der Niederlassung von mehreren Haus-, Fach- und Zahnärzten sowie der nur wenige Meter entfernten orthopädischen Klinik als vorbildlich zu bezeichnen. In den umliegenden Wald- und Wiesengebieten besteht weiterhin ausreichend Gelegenheit für erholsame Spaziergänge oder sportliche Aktivitäten.
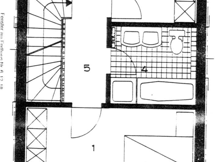
Grundriss
Lageplan Erdgeschoß.jpg
>
>
Lageplan 1. Etage.jpg
>
>
Lageplan Keller.jpg
>
>
Adresse
35619 Braunfels
Interessante Orte
Preis- und Lageinformationen
Preistrend für Bestandsimmobilien in Braunfels