Willkommen in Ihrem neuen Zuhause – ein echtes Raumwunder mit dem Gefühl eines freistehenden Einfamilienhauses!
Am Ende einer ruhigen Reihe gelegen, bietet dieses charmante Haus mit 193 m² Wohnfläche und einem 1.472 m² großen Grundstück ein Höchstmaß an Privatsphäre und Platz für die ganze Familie.
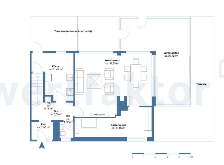
Der Eingangsbereich empfängt Sie mit heller Atmosphäre, modernem Holz-Laminat und einem Gäste-WC mit Tageslicht. Die gepflegte Küche mit hochwertiger Einbauküche und Zugang zur Terrasse wird durch eine praktische Abstellkammer ergänzt – ideal für den Alltag.
Das Herzstück bildet das großzügige Wohn- und Esszimmer mit Kaminofen und direktem Übergang in den beheizbaren Wintergarten mit italienischem Marmorfußboden. Drei Ausgänge führen in den liebevoll gestalteten Garten mit zwei Terrassen, Sandkasten, Kräuterspirale, Obstbäumen, Brombeerhecke, Weinreben und einem Pavillon – ein echtes Gartenparadies für Groß und Klein.
Im Obergeschoss erwarten Sie eine helle Diele, ein Ankleidezimmer, ein Arbeitszimmer mit Blick ins Grüne, ein Schlafzimmer sowie ein stilvolles Bad mit freistehender Wanne und offener Dusche. Im Dachgeschoss befindet sich ein luftiges, großes Zimmer – aktuell als Kinderzimmer genutzt.
Der voll unterkellerte Bereich bietet Hauswirtschaftsraum, Lagerfläche, Duschbad und eine Sauna – perfekt zum Abschalten.
Praktisch: Der Garten ist auch seitlich zugänglich. Eine Garage sowie öffentliche Parkplätze sind vorhanden. Vier PV-Module auf dem Grundstück und ein überdachter Holzlagerplatz runden das Angebot ab.
Dieses Haus vereint Komfort, Stil und Natur – ein Ort zum Ankommen und Wachsen. Überzeugen Sie sich selbst bei einer Besichtigung!
*PROVISIONSFREI* Endhaus mit großem Garten in Top Lage – sofort bezugsfrei!
38259 Salzgitter
Die vollständige Adresse der Immobilie erhalten Sie vom Anbieter.
Auf Karte anzeigen
Die vollständige Adresse der Immobilie erhalten Sie vom Anbieter.
Finanzierungszertifikat
In nur zwei Minuten zu Ihrem persönlichen Finanzierungszertifkat.
Infos
| Haustyp | Reiheneckhaus |
|---|---|
| Etagenzahl | 3 |
| Wohnfläche ca. | 193 m2 |
| Grundstücksfläche | 1.427 m2 |
| Bezugsfrei ab | nach Vereinbarung |
| Zimmer | 7 |
| Schlafzimmer | 6 |
| Badezimmer | 1 |
| Garage/Stellplatz | Garage |
| Anzahl Garage/Stellplatz | 1 |
Kosten
| Kaufpreis |
369.000 € |
|---|---|
| Provision | Nein |
Finanzierungsrechner:
Kaufpreis:
600.000 €
Eigenkapital:
600.000 €
Monatliche Rate
0 €
Effektiver Jahreszins
0 %
Sollzinsbindung
10 Jahre
Bausubstanz & Energieausweis
| Baujahr | 1975 |
|---|---|
| Objektzustand | Gepflegt |
| Heizungsart | Gas-Heizung |
| Wesentliche Energieträger | Gas |
| Energieausweis | liegt vor |
| Energieausweistyp | Bedarfsausweis |
| Energieverbrauchskennwert | 124,1 kWh/(m²*a) |
| Energieeffizienzklasse | D |
124,1
kWh/(m²*a)
Energieeffizienzklasse D
- A+
- A
- B
- C
- D
- E
- F
- G
- H
- 0
- 25
- 50
- 75
- 100
- 125
- 150
- 175
- 200
- 225
- >250
Beschreibung des Objekts
Ausstattung
- Grundstück & Garten:
Großzügiges, eingewachsenes Grundstück – zwei Terrassen, gepflasterter Gartenweg, Sandkasten, Gartenschuppen, Pavillon, Steinofen, überdachter Holzlagerplatz, PV-Anlage (8 Module), viel Platz für Spielgeräte, direkter Zugang auch außen am Haus entlang
- Wohnungskonzept:
Flexibles Wohnkonzept mit viel Raum für Familienleben, Hobbys oder Arbeiten von zu Hause
- Raumaufteilung:
Sieben Zimmer auf drei Ebenen inkl. Gästezimmer, Hobbyraum, Galerie, Arbeitszimmer und großem Schlafzimmer im Dachgeschoss, Großzügiger Wintergarten in L-Form, offen zum Wohnbereich, Zusätzliche Räume im Keller (Hauswirtschaft, Lager, Sauna)
- Ausstattung:
Haustür mit Fingerabdruckfunktion, Italienischer Marmorboden, Kaminofen, beheizter Wintergarten mit elektrischer Markise, gepflegte Einbauküche, Gäste-WC mit Tageslicht, freistehende Badewanne, bodentiefe Dusche, hohe Decken im Dachgeschoss, Sauna, Garten mit Grillofen & Spielbereich
- Keller & Lagerräume:
Hauswirtschaftsraum, Dusche mit Waschbecken, Lagerraum, funktionstüchtige Sauna, zusätzlicher Stauraum im Garten (Holzlager, Schuppen, Geräteraum)
- Parkmöglichkeiten:
Garage auf dem Garagenhof, öffentliche Stellplätze
Lage
Ein beliebtes und ruhiges Wohngebiet mit rund 21.000 Einwohnern - Salzgitter-Bad! Hier wohnen Sie in einer verkehrsberuhigten 30er-Zone, wo Natur und Stadtnähe perfekt kombiniert sind. In der Sackgasse spielen Kinder draußen, während sich Nachbarn freundlich austauschen.
Ein Einkaufspark mit Supermarkt, Drogerie, Bäcker und weiteren Geschäften ist nur drei Autominuten oder 15 Gehminuten entfernt. Ärzte, Apotheken, Cafés und Restaurants befinden sich in direkter Nähe – alles für den täglichen Bedarf ist bequem erreichbar.
Für Familien ist der Standort ideal: Schulen wie das Gymnasium Salzgitter-Bad sowie mehrere Grund- und weiterführende Schulen sind fußläufig erreichbar. Auch Kitas liegen in der Nähe – ein großer Vorteil für den Familienalltag.
Salzgitter-Bad bietet mit Altstadtfesten und dem Weihnachtsmarkt ein starkes Gemeinschaftsgefühl. Gleichzeitig finden Ruhesuchende in der Natur Entspannung – etwa im nahegelegenen Naturschutzgebiet „Köppelmannsberg“.
Freizeitmöglichkeiten gibt es reichlich: Kino, Schwimmbad, Sportangebote und ein Theater sorgen für Abwechslung.
Sonstige Angaben
Die Immobilie wird provisionsfrei vermarktet.
Adresse
38259 Salzgitter
Interessante Orte
Preis- und Lageinformationen
Preistrend für Bestandsimmobilien in Bad