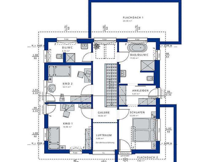
Dieses Musterhaus hat Persönlichkeit! Egal von welcher Seite man sich ihm nähert, es gibt immer ein attraktives Detail oder ein Architektur-Feature, an dem der Blick hängen bleibt. Auf der Eingangsseite sind es der grau abgesetzte Übereck-Erker, der sich auf elegante Weise in ein praktisches Vordach verlängert, sowie die Design-Haustür mit ihren roten Akzenten. Auf der Giebelseite fällt die graue Stele ins Auge, die oben mit dem Haus verbunden ist. Wie ein idyllisches Bild umrahmt sie den Freisitz. Das eigentliche Highlight wartet jedoch auf der Gartenseite: Über einem zweiten Übereck-Erker, ebenfalls in Grau gehalten, thront seitlich versetzt ein rot verputzter Zwerchgiebel. Mit seinem markanten Flachdach greift er die puristische Formensprache der Erker auf und steht damit im klaren Kontrast zum eher klassisch anmutenden Satteldach. Die verschiedenen Anbauelemente verleihen dem Musterhaus einen unverwechselbaren Charakter, der vom spannenden Wechselspiel unterschiedlicher Fensterpartien untermalt wird. Das Innere des Hauses beeindruckt mit seiner Offenheit und Transparenz. So ist die Diele bereits ein Teil des Wohngeschehens. Geradeaus mündet sie in den weitläufigen Wohn-, Ess- und Kochbereich, der über breite Fensterfronten von Tageslicht durchflutet wird. Das luftige Raumgefühl wird durch das helle Interieur unterstrichen. Eine wichtige Rolle spielt die Küche: Sie ist nicht nur der erste Anlaufpunkt am Morgen, sondern auch am Nachmittag, wenn alle Familienmitglieder zusammenkommen. Doch es gibt auch Bereiche, die bewusst separiert wurden - etwa das Homeoffice, das im Eingangs-Erker seinen Platz gefunden hat. Fernab des Alltagstrubels ermöglicht es ein konzentriertes Arbeiten. Umgekehrt können hier auch Geschäftspartner empfangen werden, ohne dass das Familienleben gestört wird. Die Privaträume befinden sich unter dem Dach. Dank des hohen Kniestocks von 1,80 m muss hier niemand den Kopf einziehen. Zwei Kinderzimmer mit eigenem Duschbad sowie ein Schlafraum mit offen angeschlossener Ankleide und Zugang zum Familienbad lassen die Herzen höherschlagen. Abgerundet wird das Raumkonzept durch clevere Stauraumlösungen.
Jetzt, endlich haben Sie das Richtige gefunden!
64367 Mühltal
Die vollständige Adresse der Immobilie erhalten Sie vom Anbieter.
Auf Karte anzeigen
Die vollständige Adresse der Immobilie erhalten Sie vom Anbieter.
Finanzierungszertifikat
In nur zwei Minuten zu Ihrem persönlichen Finanzierungszertifkat.
Infos
| Etagenzahl | 2 |
|---|---|
| Wohnfläche ca. | 169 m2 |
| Grundstücksfläche | 541 m2 |
| Zimmer | 5 |
Kosten
| Kaufpreis |
952.295 € |
|---|
Finanzierungsrechner:
Kaufpreis:
600.000 €
Eigenkapital:
600.000 €
Monatliche Rate
0 €
Effektiver Jahreszins
0 %
Sollzinsbindung
10 Jahre
Bausubstanz & Energieausweis
| Baujahr | unbekannt |
|---|---|
| Bauphase | Haus in Planung (projektiert) |
Beschreibung des Objekts
Ausstattung
Effizienzhaus 55
Wohlfühlklimaheizung mit perfekter Kühlung über die Luft
Smarthome an Bord
Elektrische Rollläden oder Raffstores über smarthome gesteuert
Querhaus für große Fenster im OG
Übereckverglasung
große Fensterfronten bodentief
bodengleiche Dusche
schlüsselfertig bis auf die Möbel
Effizienzhaus 40 QNG möglich, falls Förderung?
Bodenplatte inkl.
Grundstück mit 520 qm in Topplage
Maklergebühr für Bauplatz eingerechnet
Grundrisse und Größe individuell änderbar!
Keller möglich!
Lage
Trautheim, ein Ortsteil der Gemeinde Mühltal im Landkreis Darmstadt-Dieburg, bietet eine ruhige Wohnlage mit guter Anbindung und naturnahem Umfeld. Die Infrastruktur ist geprägt durch:
🚉 Verkehrsanbindung: Direkte Nähe zur B449 und gute Busverbindungen nach Darmstadt und Umgebung. Der Bahnhof in Nieder-Ramstadt-Trautheim ermöglicht schnellen Anschluss an den Regionalverkehr.
🛒 Nahversorgung: Supermärkte, Bäckereien und Apotheken sind in wenigen Minuten erreichbar, teils fußläufig. Weitere Einkaufsmöglichkeiten befinden sich im benachbarten Nieder-Ramstadt.
🏫 Bildung & Betreuung: Kindertagesstätten und Grundschulen sind im Ort und in angrenzenden Stadtteilen vorhanden. Weiterführende Schulen befinden sich in Darmstadt.
🏥 Gesundheitsversorgung: Allgemeinmediziner und Fachärzte sind in Mühltal ansässig. Kliniken und größere medizinische Einrichtungen sind in Darmstadt schnell erreichbar.
🌳 Freizeit & Natur: Die Lage im Geo-Naturpark Bergstraße-Odenwald bietet zahlreiche Wander- und Radwege. Sportvereine, Tennisplätze und ein Freibad ergänzen das Freizeitangebot.
🏛️ Kommunale Einrichtungen: Rathaus, Bauhof und Wertstoffhof befinden sich zentral in Mühltal.
Grundriss
35581-3005-2-g
>
>
35580-3005-1-g
>
>
Adresse
64367 Mühltal
Interessante Orte
Preis- und Lageinformationen
Preistrend für Bestandsimmobilien in Mühltal