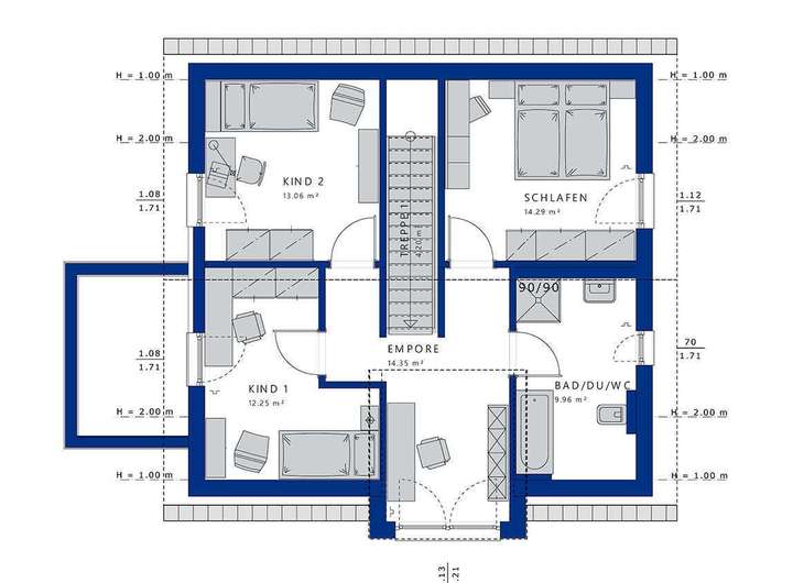
Elegant, modern und mit vielen frischen Ideen: So präsentiert sich dieses Fertighaus seinem Betrachter. Der quadratische Baukörper wird durch verschiedene Architektur-Features in Szene gesetzt. Blickfang auf der Gartenseite ist das Querhaus mit Pultdach, das einen interessanten Gegenpol zum klassischen Satteldach mit seinen weiten Dachüberständen bildet. Dank üppiger Verglasungen sorgt der Anbau in beiden Geschossen für ein großzügiges, lichtdurchflutetes Ambiente. An die Giebelseite des Hauses wurde eine designstarke Terrassenüberdachung angedockt. Unter ihr könnte beispielsweise ein gemütlicher Hängesitz Platz finden, in den sich an warmen Sommertagen nicht nur der Nachwuchs gern hineinlümmelt. Spritzige Akzente setzt die Farbgestaltung der Fassade: Der strahlend weiße Mineralputz wird kontrastiert mit dunkelgrauen Flächen. Wer mag, kann auch tiefer in den Farbkasten eintauchen. Wie wäre es beispielsweise mit einem sonnigen Gelb- oder einem natürlichen Braunton? Der Eingang liegt in diesem Planungsbeispiel auf der Giebelseite, er lässt sich aber auch auf die Traufseite verlegen. Der Grundriss ist perfekt auf den Tagesablauf einer vierköpfigen Familie abgestimmt. Offene Gemeinschaftsräume, gemütliche Privatbereiche für jeden Bewohner und multifunktionale Zonen vereinen sich zu einem harmonischen und alltagspraktischen Gesamtkonzept. Eine pfiffige Idee ist der Extra-Platz auf der Empore im Dachgeschoss, der sich vielseitig nutzen lässt. Die Bewohner können sich hier entweder ein luftiges Homeoffice mit Blick über den Garten oder eine schöne Spielecke für die Kinder mit Straßenteppich und Ritterburg einrichten. Hinzu kommen clevere Stauraumlösungen, von denen vor allem Familien bekanntlich nie genug haben können. So bietet der Windfang Stellfläche für einen großen Garderobenschrank, in dem sämtliche Jacken, Mäntel und Schuhe verschwinden. Größere Gegenstände wie die Skiausrüstung oder das Bobbycar der Kinder können im Technik- bzw. Hauswirtschaftsraum aufbewahrt werden. Und die Essensvorräte haben ihren Platz in der Speisekammer, die zwischen Eingang und Küche liegt. So kommt das Haus ganz ohne Keller aus.
Schöne ruhige Lage mit eigener Zufahrt!
64342 Seeheim-Jugenheim
Die vollständige Adresse der Immobilie erhalten Sie vom Anbieter.
Auf Karte anzeigen
Die vollständige Adresse der Immobilie erhalten Sie vom Anbieter.
Finanzierungszertifikat
In nur zwei Minuten zu Ihrem persönlichen Finanzierungszertifkat.
Infos
| Etagenzahl | 2 |
|---|---|
| Wohnfläche ca. | 134 m2 |
| Nutzfläche | 10 m2 |
| Grundstücksfläche | 430 m2 |
| Zimmer | 5 |
Kosten
| Kaufpreis |
676.666 € |
|---|
Finanzierungsrechner:
Kaufpreis:
600.000 €
Eigenkapital:
600.000 €
Monatliche Rate
0 €
Effektiver Jahreszins
0 %
Sollzinsbindung
10 Jahre
Bausubstanz & Energieausweis
| Baujahr | unbekannt |
|---|---|
| Bauphase | Haus in Planung (projektiert) |
Beschreibung des Objekts
Ausstattung
Zur Ausstattung fertig bedeutet: Sie versorgen die Wände mit Spachtel, Tapete und Farbe, Sie legen Fliesen und Bodenbeläge, bringen die Sanitärobjekte an und setzen die Innentüren.
Das Haus ist außen komplett fertig, die Heizung (Wärmepumpe) läuft, Elektrik funktioniert mit Schalter und Steckdosen, alle Installationen sind fertiggestellt. Das Haus ist an die Versorgungsleitungen angeschlossen.
Bei dem Materialeinkauf können Sie jetzt noch Geld sparen durch günstige Angebote in Baumärkten usw.
Natürlich können Sie auch Arbeitsleistungen (wie oben erwähnt) von uns bekommen. Der Workflow muss dabei stimmen.
Sie können uns auch alles perfekt ausführen lassen und haben dann auch die absolute Gewährleistung, auch auf den Innenausbau.
Lassen Sie uns darüber reden, wie Sie es gerne hätten.
Lage
Beste Lage in Jugenheim in 2. Reihe. Schöne rückwärtige Lage mit eigener Zufahrt.
Der Grundstückspreis ist im Kaufpreis enthalten. Das Grundstück ist mit 3 % Maklerkosten kalkuliert.
Adresse
64342 Seeheim-Jugenheim
Interessante Orte
Preis- und Lageinformationen
Preistrend für Bestandsimmobilien in Seeheim-Jugenheim