In einer der begehrtesten und exklusivsten Lagen von Königstein im Taunus präsentiert sich dieses außergewöhnliche Anwesen mit rund 400 m² Wohnfläche, verteilt auf zwei Ebenen – eine stilvolle Hommage an die Architektur der Mid-Century-Ära, die zeitlose Eleganz, Großzügigkeit und funktionale Ästhetik vereint. Die klare Formsprache, panoramaartige Fensterfronten mit Blick ins Grüne, gezielt gesetzte Blickachsen und das harmonische Zusammenspiel von Innen- und Außenraum verleihen der Immobilie einen unverwechselbaren Charakter. Licht, Raum und Natur treten hier in einen architektonischen Dialog, der bis heute nichts an Relevanz verloren hat.
Bereits beim Betreten empfängt Sie ein großzügiger Eingangsbereich, der sich fließend in das zentrale Herzstück des Hauses öffnet: ein großes, lichtdurchflutetes Wohnzimmer mit angrenzender Bibliothek – ein stilvoller Rückzugsort mit viel Atmosphäre. Der angrenzende Essbereich mit direktem Zugang zur Küche bietet perfekte Voraussetzungen für familiäres Beisammensein ebenso wie für repräsentatives Wohnen. Großzügige Fensterflächen schaffen einzigartige Blickachsen in die grüne Umgebung und lassen die Grenzen zwischen Innen und Außen verschwimmen.
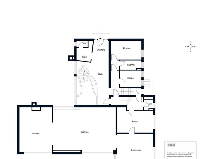
Auf Ebene des Erdgeschosses befindet sich eine separate Zwischenebene mit zwei weiteren Zimmern und einem Badezimmer – ideal als Gästebereich, Au-pair-Zone oder abgeschlossene Home-Office-Einheit. Im Obergeschoss erwarten Sie insgesamt sechs Schlafzimmer sowie zwei Bäder, alle nach Süden ausgerichtet. Die durchdachte Anordnung der Räume, kombiniert mit der Offenheit und Transparenz der Architektur, sorgt für eine besondere Wohnqualität.
Das Haus trägt die typischen Charakteristika einer klassischen Mid-Century-Immobilie: offene Grundrisse, großzügige Fensterflächen, natürliche Materialien, funktionale Klarheit und ein harmonisches Zusammenspiel mit der umgebenden Natur. Die architektonische Gestaltung ist geprägt von Ruhe, Struktur und einem stilsicheren Umgang mit Raum und Proportion.
Gleichzeitig eröffnet dieses Grundstück auch Potenzial für einen vollkommen neuen Wohntraum: Ein in Aufstellung befindlicher Bebauungsplan sieht eine großzügige Neubebauung vor mit einer Grundfläche von bis zu ca. 1.000 m² – eine seltene Gelegenheit in dieser etablierten Lage.
            
        Mid-Century-Villa auf 3.600 m² Traumgrundstück mit einzigartigem Entwicklungspotential in Toplage
                     61462 Königstein im Taunus                            
Die vollständige Adresse der Immobilie erhalten Sie vom Anbieter.
        
            
            Auf Karte anzeigen
        
        
    Die vollständige Adresse der Immobilie erhalten Sie vom Anbieter.
    Finanzierungszertifikat
In nur zwei Minuten zu Ihrem persönlichen Finanzierungszertifkat.
Infos
| Haustyp | Villa | 
|---|---|
| Wohnfläche ca. | 444 m2 | 
| Nutzfläche | 117 m2 | 
| Grundstücksfläche | 3.567 m2 | 
| Bezugsfrei ab | Nach Vereinbarung | 
| Zimmer | 11 | 
| Schlafzimmer | 6 | 
| Badezimmer | 3 | 
| Anzahl Garage/Stellplatz | 8 | 
Kosten
| Kaufpreis | 
                3.180.000 € | 
        
|---|---|
| Provision | 
                            3,57 % inkl. gesetzlicher MwSt. von aktuell 19 % bezogen auf den Kaufpreis | 
    
Finanzierungsrechner:
                    
                     Kaufpreis:
                        
                            600.000 €
                        
                    
                    
                    
                
            
                        
                            Eigenkapital:
                            
                                 600.000 €
                            
                        
                    
                
            
                        Monatliche Rate
                        0 €
                    
                    
                        
                            Effektiver Jahreszins
                        
                        0 %
                    
                    
                        Sollzinsbindung
                        10 Jahre
                    
                Bausubstanz & Energieausweis
| Baujahr | 1963 | 
|---|---|
| Qualität der Austattung | Gehoben | 
| Wesentliche Energieträger | Erdgas leicht | 
| Energieausweis | liegt vor | 
| Energieausweistyp | Bedarfsausweis | 
| Energieverbrauchskennwert | 247,0 kWh/(m²*a) | 
| Energieeffizienzklasse | H | 
                                                    247,0
                                kWh/(m²*a)
                                                
                    Energieeffizienzklasse H
- A+
 - A
 - B
 - C
 - D
 - E
 - F
 - G
 - H
 
- 0
 - 25
 - 50
 - 75
 - 100
 - 125
 - 150
 - 175
 - 200
 - 225
 - >250
 
Beschreibung des Objekts
Ausstattung
                _ elf Zimmer
_ bis zu acht Schlafzimmer
_ Einbauküche
_ drei Badezimmer mit Wanne/Duschen
_ Sauna
_ Hauswirtschaftsraum
_ Einbauschränke
_ Teppichböden und Natursteinböden
_ doppelt-isolierverglaste Fenster
_ elektrische Jalousien
_ Balkon und Terrasse
_ Keller
_ Garage und Außenstellplätze
               
        Lage
                Königstein im Taunus zählt seit jeher zu den begehrtesten Wohnadressen im Rhein-Main-Gebiet und vereint auf einzigartige Weise ländliche Idylle mit urbaner Nähe. Eingebettet in eine sanfte Hügellandschaft, geprägt von viel Grün, alten Baumbeständen und stilvollen Villen, bietet die Stadt eine erstklassige Lebensqualität, die gerade Familien mit hohen Ansprüchen begeistert. Die Verbindung aus naturnahem Wohnen, exzellenter Infrastruktur und einem lebendigen, kulturellen Angebot schafft hier ein Umfeld, das sowohl Ruhe als auch Vielfalt auf höchstem Niveau garantiert.
Im Herzen dieses exklusiven Wohnumfelds liegt die zum Verkauf stehende Immobilie in einer der elegantesten und ruhigsten Straßen Königsteins. Hier reihen sich prachtvolle Einfamilienhäuser und Villengrundstücke aneinander, die geprägt sind von architektonischer Qualität, großzügigen Gartenanlagen und einer gewachsenen, sympathischen Nachbarschaft. Die Lage besticht durch ihre absolute Privatsphäre und ihre geschützte Lage, die ein hohes Maß an Sicherheit und Geborgenheit für die ganze Familie bietet.
Die unmittelbare Nähe zu erstklassigen internationalen und deutschen Schulen sowie zu renommierten Sport- und Freizeitmöglichkeiten machen die Lage der Immobilie besonders attraktiv für Familien, die Wert auf eine ausgewogene Balance aus Bildung, Freizeit und Erholung legen. Gleichzeitig ist die Königsteiner Innenstadt mit ihren hochwertigen Einkaufsmöglichkeiten, exquisiten Restaurants und charmanten Cafés in wenigen Minuten erreichbar.
Die hervorragende Verkehrsanbindung – ob per Auto, Bahn oder Flughafen – ermöglicht eine stressfreie Erreichbarkeit der Metropolregion Frankfurt sowie der wichtigsten nationalen und internationalen Ziele. So verschmilzt in dieser Lage das Beste aus zwei Welten: ein exklusives, naturverbundenes Wohngefühl in einer der schönsten Lagen des Taunus, gepaart mit urbaner Flexibilität und Komfort.
Für Familien mit höchsten Ansprüchen an Stil, Exklusivität und Lebensqualität zählt die Lage der zum Verkauf stehenden Immobilie in Königstein zu den begehrtesten und nachhaltig wertbeständigen Wohnadressen – ein Refugium, das großzügigen Freiraum für individuelle Entfaltung, uneingeschränkte Privatsphäre und zeitgemäßes Wohnen auf höchstem Niveau gewährleistet.
                
        Grundriss
                                    Erdgeschoss inkl. Zwischeneben
                                                                            
                                        >
                                                                    
                                                                                                                
                                        >
                                                                    
                                    Obergeschoss
                                                                            
                                        >
                                                                    
                                                                                                                
                                        >
                                                                    
                                    Untergechoss
                                                                            
                                        >
                                                                    
                                                                        
                                        >
                                                                    Adresse
61462 Königstein im Taunus
Interessante Orte
Preis- und Lageinformationen
                Preistrend für Bestandsimmobilien in Königstein im Taunus