WERTE SCHAFFEN!
Auf einem insgesamt 1600qm umfassenden Areal entstehen vier invdividuell gestaltbare Doppelhaushälften. Dabei geht es um den perfekten Lebensraum für Sie und ihre Familie, um Wohngesundheit und eine Steigerung der Lebensqualität. Es geht um die Unabhängigkeit von Vermietern, autarke Energiekonzepte und um den Aspekt der Altersvorsorge durch die Wertbeständigkeit des Hauses. Es geht um Sicherheit!
WIE MÖCHTEN SIE LEBEN?
Bien-Zenker Häuser vereinen Qualität und Ästhetik mit Innovation und Nachhaltigkeit. Das hier abgebildete Bien-Zenker Haus CELEBRATION 139 mit den komfortablen Außenmaßen von rund 7,40 x 11,30 Metern. Im Erdgeschoss lädt es zu offenem Wohnen auf über 40 Quadratmetern ein und bietet Ihrer drei- bis vierköpfigen Familie oben die nötige Privatsphäre. Und Sie haben die Möglichkeit, diesen Entwurf ganz auf Ihre persönlichen Bedürfnisse und Vorstellungen zuzuschneiden. Das Haus steht in acht Varianten mit zwei oder drei Geschossen zur Auswahl. Der Hauseingang kann zum Beispiel auf der Giebel- oder Traufseite liegen und die architektonischen Gestaltungsmöglichkeiten sind vielfältig. Machen Sie das CELEBRATION 139 zu Ihrem individuellen Traumhaus.
WEIL ALLES PASST!
Der in dieser Anzeige genannte Preis bezieht sich auf das Haus, inkl. Bodenplatte (Keller ebenfalls möglich) als Effizienzhaus 40 plus, inkl. Photovoltaikanlage und Batteriespeicher in der Ausbaustufe "Schlüsselfertig" ohne Eigenleistungen - somit fahren Sie nur noch mit dem Möbelwagen vor und ziehen ein (Ersparnis durch Eigenleistungen auf Wunsch möglich).
QNG-FÖRDERFÄHIGES BAUVORHABEN
Ausgestattet mit einer modernen, effizienten Wärmepumpe (auf Wunsch mit Fußbodenheizung) und PV-Anlage sind Bien-Zenker Häuser KfW-förderfähig nach den Programmen 297/298 und 300, mit QNG-Zertifikat für die höchstmögliche Förderung.
Die üblichen Baunebenkosten sind hinzuzurechnen.
Familienglück hoch vier - Neubau von 4 Doppelhaushälften mit je 400qm Grundstück - förderfähig mit Q
61138 Niederdorfelden
Die vollständige Adresse der Immobilie erhalten Sie vom Anbieter.
Auf Karte anzeigen
Die vollständige Adresse der Immobilie erhalten Sie vom Anbieter.
Finanzierungszertifikat
In nur zwei Minuten zu Ihrem persönlichen Finanzierungszertifkat.
Infos
| Wohnfläche ca. | 138 m2 |
|---|---|
| Grundstücksfläche | 400 m2 |
| Zimmer | 4 |
Kosten
| Kaufpreis |
569.000 € |
|---|---|
| Provision | Nein |
Finanzierungsrechner:
Kaufpreis:
600.000 €
Eigenkapital:
600.000 €
Monatliche Rate
0 €
Effektiver Jahreszins
0 %
Sollzinsbindung
10 Jahre
Bausubstanz & Energieausweis
| Baujahr | unbekannt |
|---|
Beschreibung des Objekts
Ausstattung
HAUSAUSSTATTUNG DER EXTRAKLASSE
Wer sich für Bien-Zenker entscheidet, entscheidet sich auch für die wohl angenehmste Art und Weise, sein Haus mit allem auszustatten, was dazugehört. Innerhalb von zwei Tagen, mit kostenfreier Hotelübernachtung, treffen Sie konzentriert und völlig stressfrei Ihre Wahl. Vom Lichtschalter über Fliesen, Waschbecken, Boden- und Wandbeläge bis hin zu Eingangstür und Treppengeländer nimmt die Innenausstattung Ihres Hauses Gestalt an. Das eigene Ausstattungs- und Designcenter bietet auf rund 1.800 m² Ausstellungsfläche alles, was Sie zur Verwirklichung Ihres persönlichen Stils brauchen.
Lage
1. Allgemeine Lage & Umfeld
Das Grundstück liegt in ruhiger, familienfreundlicher Wohnlage von Niederdorfelden im hessischen Main-Kinzig-Kreis - nur ca. 12 km nordöstlich der Frankfurter Innenstadt. Der Ort bietet damit eine ideale Kombination aus naturnahem Wohnen und guter Erreichbarkeit der Metropolregion.
2. Infrastruktur
Für den täglichen Bedarf finden sich im Ort Supermärkte und Discounter, Getränkemärkte, Banken und weitere Nahversorger.
Die digitale Infrastruktur wird aktuell weiter gestärkt: Ein Ausbau des Glasfasernetzes ist in Planung und soll rund 1.300 Wohn- und Geschäftseinheiten betreffen.
Kinderbetreuung & Schule: In Niederdorfelden gibt es eine Krabbelstube, drei Kindertagesstätten sowie die Grundschule "Struwwelpeterschule", die seit 2022 Ganztagsschule ist. Diese Infrastruktur erleichtert jungen Familien den Alltag deutlich.
3. Verkehrsanbindung
ÖPNV: Der Bahnhof Niederdorfelden (Bahnhofstraße 3) ist mit der Regionalbahn erreichbar. Zudem bestehen Bus-Verbindungen im Gemeindegebiet.
Straßenverkehr: Über die Bundesstraße B 521 und nahegelegene Landes- sowie Kreisstraßen ist die Region gut angeschlossen. Damit ist eine zügige Fahrt nach Frankfurt oder in die umliegenden Städte möglich.
4. Vorteile für Familien
Kurze Wege: Kindertagesstätten und Grundschule sind im Ort vorhanden — das erleichtert den Alltag und minimiert Pendelzeiten für Kinder und Eltern.
Sicheres Umfeld: Die ruhige Wohnlage in einem kleineren Ort bietet ein familiengerechtes Umfeld - weniger Lärm, weniger Hektik als in dicht bebauten Stadtlagen.
Flexibilität: Wenn ein Elternteil pendelt, ist durch gute Verkehrsanbindung die Arbeitsstelle in der Region oder in Frankfurt gut erreichbar; gleichzeitig bleibt Zuhause ein naturnahes Umfeld erhalten.
Zukunftssicher ausgestattet: Der Ausbau der digitalen Infrastruktur (Glasfaser) erlaubt Home-Office oder digitales Lernen — ein klarer Vorteil in modernen Familienhaushalten.
Kinder- & Freizeitangebote: Durch das Vorhandensein von Grundschule, Betreuungseinrichtungen und Jugendtreffpunkten im Ort wird ein Umfeld geschaffen, das familienorientiert ist und Gemeinschaft fördert.
Sonstige Angaben
MIT SICHERHEIT INS EIGENHEIM!
Sicher haben Sie viele Fragen und möchten wissen, was auf Sie zukommt. Von der Erstberatung bis zur Schlüsselübergabe betreue ich Sie kompetent, fair und verlässlich. Sie erhalten Kostensicherheit durch die Bien-Zenker Festpreisgarantie und zusätzlich Planungssicherheit durch vertraglich festgelegte Bauzeiten. Machen Sie sich jetzt dauerhaft frei von steigenden Mieten und schwankenden Energiepreisen. Mit Ihrem neuen Bien-Zenker Haus.
WIR HELFEN IHNEN AUCH BEI DER FINANZIERUNG IHRES TRAUMHAUSES
Gemeinsam mit Ihnen entwerfen wir nicht nur das perfekte Haus für Sie und Ihre Familie, sondern wir unterstützen Sie auch auf der Suche nach der passenden Finanzierung. Unsere unabhängigen Finanzberater analysieren auf der Suche nach der besten Immobilienfinanzierung für Ihr Fertighaus gemeinsam mit Ihnen Ihre Situation: Was sind die anfallenden Kosten und Preise, welches Eigenkapital ist verfügbar, welche Bausparverträge sind vorhanden, und nicht zuletzt, welche Fördermöglichkeiten von Bund, Land oder Gemeinde kommen für Sie infrage. So helfen wir Ihnen unverbindlich und vor allem unabhängig von Finanzinstituten dabei, den optimalen Immobilien-Kredit für Ihr Bauvorhaben zu finden.
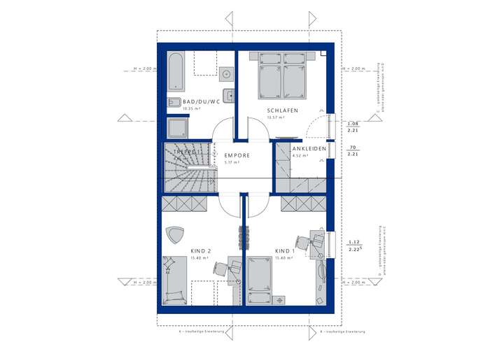
Grundriss
17387-1101-18-g
>
>
17388-1101-19-g
>
>
Adresse
61138 Niederdorfelden
Interessante Orte
Preis- und Lageinformationen
Preistrend für Bestandsimmobilien in Niederdorfelden