Das rund 1.360 m² große Grundstück liegt leicht erhöht in einer ruhigen Sackgasse in bester Lage Kronbergs. Umgeben von beeindruckendem Baumbestand und dichtem Grün entsteht hier eine natürliche Kulisse, die Privatsphäre und Ruhe garantiert.
Die horizontale Linienführung, die weißen Fassadenflächen und die weit geöffneten Glasfronten lassen den Baukörper mit seiner Umgebung verschmelzen – Architektur und Landschaft treten in einen harmonischen Dialog. Ein Paradebeispiel seiner Zeit, entworfen vom Architekten, Klaus Dieter Böckel.
Von Terrasse und Wohnraum öffnet sich der Blick in den idyllischen, weitläufigen Garten, der den fließenden Übergang von Innen nach Außen betont.
Das genehmigte Neubaukonzept nutzt die vorhandene Topografie perfekt: Es verbindet moderne Architektur mit dem bestehenden Naturraum und schafft ein Wohnhaus, das Offenheit, Licht und Privatsphäre in Einklang bringt.
Mid century Bungalow Auf dem Hügel in bester Lage von Kronberg
61476 Kronberg im Taunus
Die vollständige Adresse der Immobilie erhalten Sie vom Anbieter.
Auf Karte anzeigen
Die vollständige Adresse der Immobilie erhalten Sie vom Anbieter.
Finanzierungszertifikat
In nur zwei Minuten zu Ihrem persönlichen Finanzierungszertifkat.
Infos
| Haustyp | Bungalow |
|---|---|
| Etagenzahl | 2 |
| Wohnfläche ca. | 185 m2 |
| Nutzfläche | 80 m2 |
| Grundstücksfläche | 1.360 m2 |
| Bezugsfrei ab | Nach Vereinbarung |
| Zimmer | 7 |
| Badezimmer | 2 |
| Garage/Stellplatz | Garage |
Kosten
| Kaufpreis |
2.800.000 € |
|---|---|
| Provision |
3,57 % inkl. MwSt. |
Finanzierungsrechner:
Kaufpreis:
600.000 €
Eigenkapital:
600.000 €
Monatliche Rate
0 €
Effektiver Jahreszins
0 %
Sollzinsbindung
10 Jahre
Bausubstanz & Energieausweis
| Baujahr | 1959 |
|---|---|
| Bauphase | Haus fertig gestellt |
| Objektzustand | Renovierungsbedürftig |
| Qualität der Austattung | Normal |
| Heizungsart | Zentralheizung |
| Wesentliche Energieträger | Öl |
| Energieausweis | liegt vor |
| Energieausweistyp | Bedarfsausweis |
| Energieverbrauchskennwert | 243,6 kWh/(m²*a) |
| Energieeffizienzklasse | G |
243,6
kWh/(m²*a)
Energieeffizienzklasse G
- A+
- A
- B
- C
- D
- E
- F
- G
- H
- 0
- 25
- 50
- 75
- 100
- 125
- 150
- 175
- 200
- 225
- >250
Beschreibung des Objekts
Ausstattung
Bestand trifft Vision – in bester Lage von Kronberg.
Dieser Bungalow aus den späten 1950er-Jahren ist mehr als nur Bestand. Er ist eine Bühne für Ideen. In ruhiger Bestlage von Kronberg gelegen, eingerahmt von altem Baumbestand und viel Grün, öffnet sich hier die Möglichkeit, architektonische Geschichte fortzuschreiben – auf einem Grundstück, das bereits eine genehmigte Bauplanung für eine moderne Villa mit rund 300 m² Wohnfläche bereithält.
Das bestehende Gebäude – ein klassischer Mid-Century-Bungalow mit Split-Level-Struktur und markanten Fensterfronten – verkörpert den klaren, funktionalen Stil seiner Zeit. Lichtdurchflutete Räume, durchdachte Grundrisse und eine Architektur, die den Dialog mit der Natur sucht, machen den Bestand besonders interessant für Liebhaber von Mid-Century-Design oder für Bauherren, die Bestehendes neu interpretieren möchten.
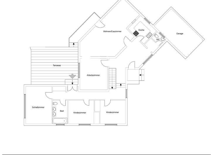
Ca. 185 m² Wohnfläche verteilen sich aktuell auf sieben Zimmer, darunter ein großzügiger Wohn- und Essbereich mit Blick ins Grüne, drei Schlafzimmer, ein Arbeitszimmer sowie einen Gästebereich mit insgesamt 2 Bädern, Gäste-WC und Küche. Viele Elemente sind im Originalzustand erhalten – von den großflächigen Fenstern über die authentische Fliesenarchitektur bis hin zu den integrierten Einbauschränken.
Der Bungalow ist sanierungsbedürftig, bietet aber eine hervorragende Basis für eine moderne Neugestaltung.
Lage
Kronberg im Taunus zählt zu den begehrtesten Wohnlagen des Rhein-Main-Gebiets – eine Stadt, die Natur, Kultur und urbane Nähe in seltener Balance vereint. Der Bungalow Auf dem Hügel liegt in einer gewachsenen, ruhigen Sackgasse – umgeben von architektonisch anspruchsvollen Villen und großzügigen, parkähnlichen Gärten.
Die erhöhte Lage sorgt nicht nur für Licht und Weite, sondern auch für ein hohes Maß an Privatsphäre. Spazierwege durch den angrenzenden Wald beginnen direkt vor der Haustür, während der historische Stadtkern mit Cafés, Boutiquen und Wochenmarkt in wenigen Minuten erreichbar ist.
Internationale Schulen, der Golf- und Tennisclub sowie vielfältige Freizeitangebote liegen in unmittelbarer Umgebung. Frankfurt erreicht man mit dem Auto oder der S-Bahn in rund 20 Minuten, den Flughafen in ebenfalls 20 Minuten.
Sonstige Angaben
GELDWÄSCHE:
Als Immobilienmaklerunternehmen ist die von Fantastic Frank Frankfurt, FF Frankfurt OHG, nach § 2 Abs. 1 Nr. 14 und § 11 Abs. 1, 2 Geldwäschegesetz (GwG) dazu verpflichtet, bei der Begründung einer Geschäftsbeziehung die Identität des Vertragspartners festzustellen und zu überprüfen, bzw. sobald ein ernsthaftes Interesse an der Durchführung des Immobilienkaufvertrages besteht. Hierzu ist es erforderlich, dass wir nach § 11 Abs. 4 GwG die relevanten Daten Ihres Personalausweises festhalten, wenn Sie als natürliche Person handeln– beispielsweise mittels einer Kopie.
Bei Firmen und juristischen Personen benötigen wir eine Kopie des Handelsregisterauszugs, aus welchem der wirtschaftlich Berechtigte hervorgeht.
Das GWG sieht vor, dass der Makler diese Unterlagen fünf Jahre aufbewahren muss. Als unser Vertragspartner haben Sie auch eine Mitwirkungspflicht nach § 11 Abs. 6 GwG.
HAFTUNG:
Wir weisen darauf hin, dass die von uns weitergegebenen Objektinformationen, Unterlagen, Pläne etc. vom Verkäufer stammen. Eine Haftung für die Richtigkeit oder Vollständigkeit der Angaben übernehmen wir daher nicht. Es obliegt daher unseren Kunden, die darin enthaltenen Objektinformationen und Angaben auf ihre Richtigkeit hin zu überprüfen.
Alle Immobilienangebote sind freibleibend und vorbehaltlich Irrtümer, Zwischenverkauf- und Vermietung oder sonstiger Zwischenverwertung
Grundriss
EG
>
>
KG
>
>
Adresse
61476 Kronberg im Taunus
Interessante Orte
Preis- und Lageinformationen
Preistrend für Bestandsimmobilien in Kronberg im Taunus