Notartermin nur mit Eigenkapitalnachweis oder Finanzierungsbestätigung.
Einfamilienhaus, ca. 80m² bestehend aus;
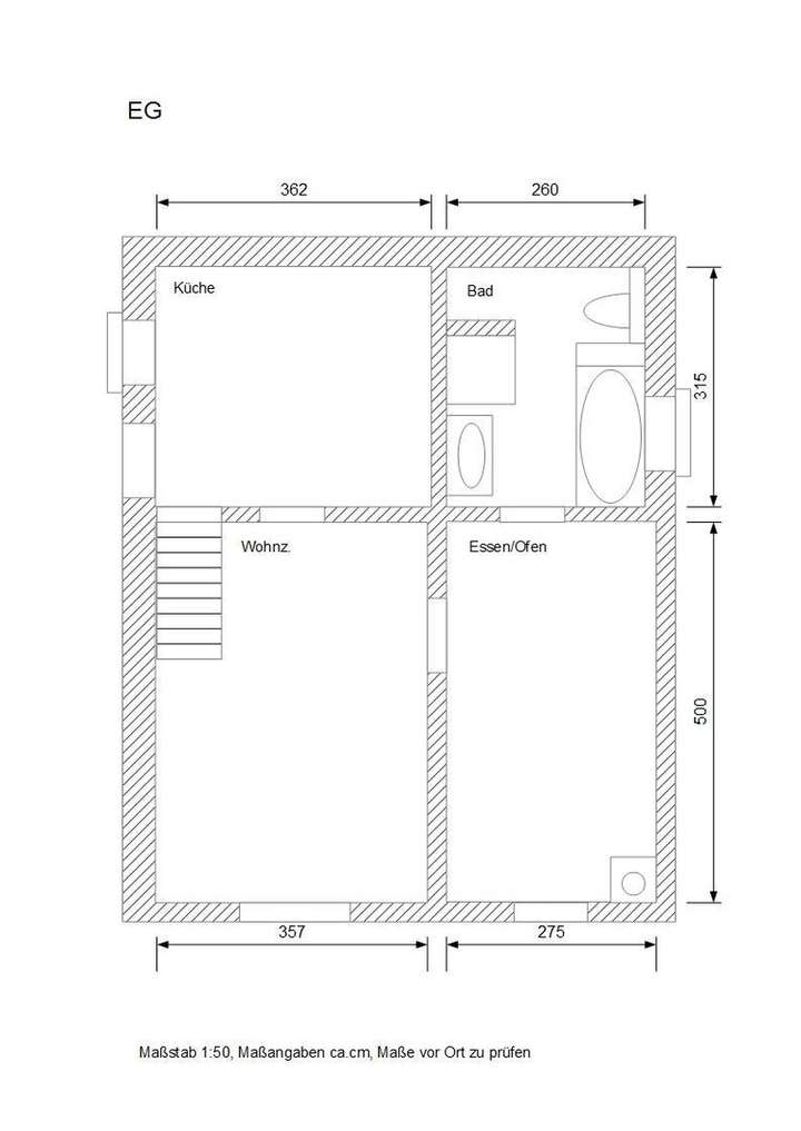
EG, Bad mit Dusche/Wanne, Fußbodenheizung,
EG, Küche mit Einbauküche, Fußbodenheizung,
EG, Wohnzimmer, Kaminzimmer.
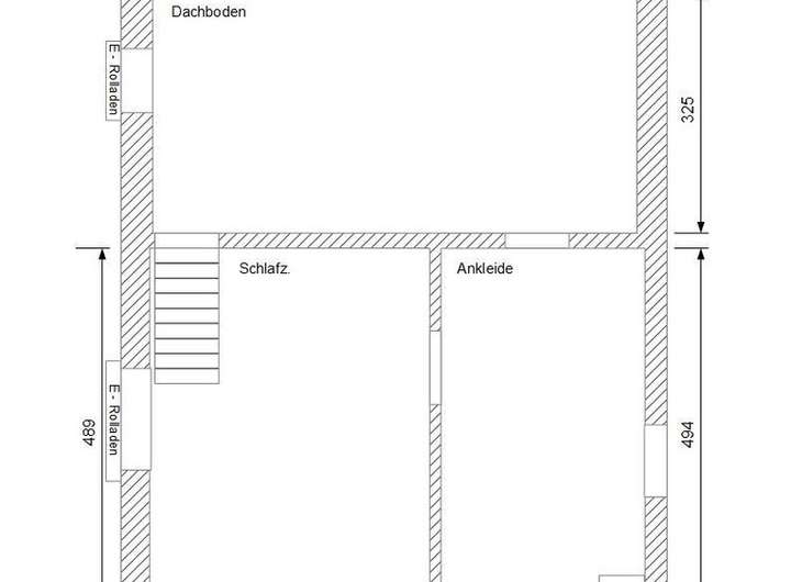
DG, Schlafzimmer und Ankleidezimmer, sowie ein niedriger Dachboden als Stauraum.
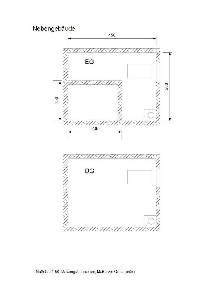
Nebengebäude als Heizungsraum und Abstellfläche.
Voliere für Kleintiere.
Gasanschluss vorhanden, Holz oder Brikett verheizen kein Problem..
Küche: Kühlschrank/Gefrierschrank/Ceranfeld/Backofen/Geschirrspüler/Spüle/
Schubladen und Türen schließen leise mit Dämpfern.
Bad: Emco/Kludi/Grohe Wandeinbau Armaturen.
Motor - Rollladen in Küche/Bad/Schlafz. und Dachboden.
RESERVIERT Privat 80m² Haus mit Nebengebäude
Magdeburger Str. 10,
38327 Semmenstedt
Auf Karte anzeigen
Finanzierungszertifikat
In nur zwei Minuten zu Ihrem persönlichen Finanzierungszertifkat.
Infos
| Haustyp | Einfamilienhaus |
|---|---|
| Wohnfläche ca. | 80 m2 |
| Nutzfläche | 20 m2 |
| Grundstücksfläche | 122 m2 |
| Bezugsfrei ab | nach Absprache |
| Zimmer | 4 |
Kosten
| Kaufpreis |
79.000 € |
|---|---|
| Provision | Nein |
Finanzierungsrechner:
Kaufpreis:
600.000 €
Eigenkapital:
600.000 €
Monatliche Rate
0 €
Effektiver Jahreszins
0 %
Sollzinsbindung
10 Jahre
Bausubstanz & Energieausweis
| Baujahr | 1919 |
|---|---|
| Bauphase | Haus fertig gestellt |
| Heizungsart | Zentralheizung |
| Wesentliche Energieträger | Öl |
| Energieausweis | liegt vor |
| Energieausweistyp | Bedarfsausweis |
| Energieverbrauchskennwert | 228,0 kWh/(m²*a) |
| Energieeffizienzklasse | G |
228,0
kWh/(m²*a)
Energieeffizienzklasse G
- A+
- A
- B
- C
- D
- E
- F
- G
- H
- 0
- 25
- 50
- 75
- 100
- 125
- 150
- 175
- 200
- 225
- >250
Beschreibung des Objekts
Ausstattung
Terrasse, Vollbad, Einbauküche, Kamin, Laminat, Fliesen
Sonstige Angaben
Heizungsart: Zentralheizung
Energieträger: Öl
Makleranfragen nicht erwünscht. Nach § 7 UWG sind unaufgeforderte Kontaktaufnahmen durch Makler ohne ausdrückliche Einwilligung des Empfängers verboten!
ohne-makler (OM) ist weder Anbieter noch Vermittler der Immobilie. OM betreibt eine Plattform für Immobilieneigentümer, die unter anderem die gleichzeitige Veröffentlichung einzelner Inserate auf mehreren Immobilienportalen ermöglicht. Die Inhalte dieser Inserate werden ausschließlich von Dritten verantwortet. Für die Richtigkeit, Vollständigkeit oder Rechtmäßigkeit der Angaben übernimmt OM keine Haftung. Hinweise auf mögliche Rechtsverstöße können jederzeit gemeldet werden und werden nach Prüfung umgehend bearbeitet.
Grundriss
Erdgeschoss
>
>
Dachgeschoss
>
>
Nebengebäude
>
>
Adresse
Magdeburger Str. 10, 38327 Semmenstedt
Interessante Orte
Preis- und Lageinformationen
Preistrend für Bestandsimmobilien in Semmenstedt