Diese gepflegte Doppelhaushälfte mit Garage befindet sich zentrumsnah in einer bevorzugten und verkehrsberuhigten Wohnsiedlung.
Gliederung der Räumlichkeiten:
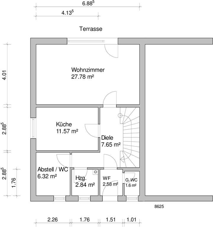
a) Erdgeschoss
Geräumiges Wohn- und Esszimmer mit bodentiefer Terrassentür als Zugang zur Terrasse, Küche, Gäste-WC, Heizungsraum, Abstellraum mit zusätzlichem WC ausgestattet und Vorratsraum unterhalb der Treppe.
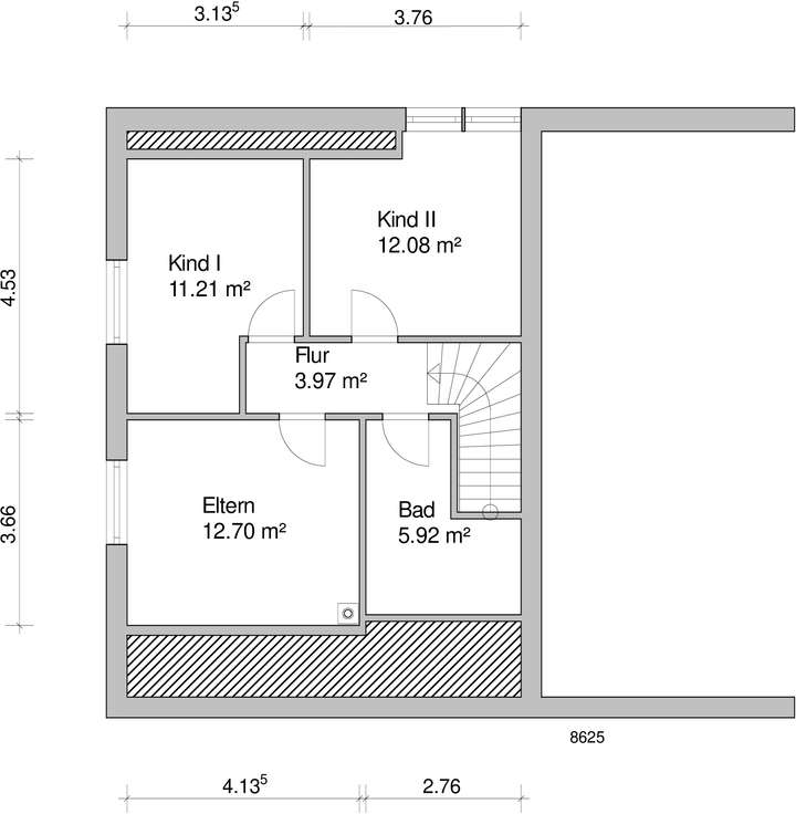
b) Dachgeschoss
Hier befinden sich drei Schlafzimmer, Badezimmer und Flur.
c) Spitzboden
Der Dachboden (Spitzboden) dienst als Abstellfläche und ist über eine Einklappleiter zugänglich.
Diese sehr ansprechende Doppelhaushälfte mit Garage wurde im Jahre 1982 in konventioneller Massivbauweise erbaut und verfügt über eine familiengerechte Zimmeraufteilung mit hellen Räumen. Die Sonnenterrasse ist vom Wohn- und Esszimmer zugänglich.
Das Verkaufsobjekt befindet sich in einem gepflegten Gesamtzustand.
Bis heute hat die Doppelhaushälfte eine laufende Bauunterhaltung erfahren, u.a.
- Erneuerung der Schornsteineinfassung im Jahre 2024,
- Einbau einer neuen Heizungstherme im Jahre 2016 (lt. Eigentümer jährlich gewartet),
- nachträgliche Dämmung der unterseitigen Dachfläche mit Einbau eines Dachflächenfensters
im Jahre 2015,
- Einbau eines neuen Dachflächenfensters im Jahre 2013 und
- Einbau eines altengerechten WC im Abstellraum im Jahre 2008.
Das Haus ist miet- und bezugsfrei.
Die Übergabe erfolgt nach Vereinbarung.
+++Bezugsfreie Doppelhaushälfte mit Garage in ruhiger Lage von Augustfehn! +++
26689 Apen
Die vollständige Adresse der Immobilie erhalten Sie vom Anbieter.
Auf Karte anzeigen
Die vollständige Adresse der Immobilie erhalten Sie vom Anbieter.
Finanzierungszertifikat
In nur zwei Minuten zu Ihrem persönlichen Finanzierungszertifkat.
Infos
| Haustyp | Doppelhaushaelfte |
|---|---|
| Wohnfläche ca. | 106 m2 |
| Nutzfläche | 15 m2 |
| Grundstücksfläche | 376 m2 |
| Bezugsfrei ab | nach Vereinbarung |
| Zimmer | 4 |
| Schlafzimmer | 3 |
| Badezimmer | 1 |
| Garage/Stellplatz | Garage |
| Anzahl Garage/Stellplatz | 1 |
Kosten
| Kaufpreis |
195.000 € |
|---|---|
| Provision |
Die Käuferprovision beträgt 3,57 % inkl. 19 % MwSt. vom beurkundeten Kaufpreis. |
Finanzierungsrechner:
Kaufpreis:
600.000 €
Eigenkapital:
600.000 €
Monatliche Rate
0 €
Effektiver Jahreszins
0 %
Sollzinsbindung
10 Jahre
Bausubstanz & Energieausweis
| Baujahr | 1982 |
|---|---|
| Objektzustand | Renovierungsbedürftig |
| Qualität der Austattung | Normal |
| Heizungsart | Zentralheizung |
| Wesentliche Energieträger | Gas |
| Energieausweis | liegt vor |
| Energieausweistyp | Verbrauchsausweis |
| Energieverbrauchskennwert | 74,2 kWh/(m²*a) |
| Energieeffizienzklasse | B |
74,2
kWh/(m²*a)
Energieeffizienzklasse B
- A+
- A
- B
- C
- D
- E
- F
- G
- H
- 0
- 25
- 50
- 75
- 100
- 125
- 150
- 175
- 200
- 225
- >250
Beschreibung des Objekts
Lage
Sämtliche Versorgungseinrichtungen sind wie auch die medizinische Grundversorgung (Allgemeinmediziner, Zahnärzte, Apotheke), Kindergarten, Grundschule, Haupt- und Realschule am Ort und befinden sich in einem Umkreis von nur ca. 600 und sind bequem zu Fuß zu erreichen.
Auch der Bahnhof ist fußläufig zu erreichen.
Die Kreisstadt Westerstede ist ca. 12 km entfernt. Hier befinden sich u.a. die Ammerland-Klinik, Fachärzte, sämtliche Kreisbehörden und das Gymnasium als weiterführende Schule.
Augustfehn verfügt über sehr gute Verkehrsanbindungen. Die BAB 28 (Anschlussstelle Nr. 4) ist nur ca. 5 km entfernt. Weiter verfügt Augustfehn über einen Bahnhof an der Bahnstrecke Oldenburg - Leer. Von hier fahren Züge im stündlichen Wechsel in beide Richtungen.
Der bekannte Kurort Bad Zwischenahn ist in ca. 15 Auto- bzw. Bahnminuten zu erreichen, die Oberzentren Oldenburg und Bremen in ca. ½ bzw. 1 Auto- bzw. Bahnstunde.
Sonstige Angaben
Zu diesem Objekt liegt ein ausführliches Exposé mit weiteren Detailinformationen vor, das Sie gerne bei uns anfordern können.
Telefonische Erreichbarkeit:
Montag - Freitag: 8.00 Uhr - 12.30 Uhr und 14.00 Uhr bis 17.30 Uhr
Samstag: 9.00 Uhr -12.00 Uhr
Sie möchten Ihre Immobilie verkaufen.....
..... und suchen den passenden Käufer?
Unabhängig davon, ob Sie aktuell oder erst in unbestimmter Zeit Ihre Immobilie verkaufen möchten, ist eine fundierte Beratung bares Geld wert. Wir wissen, worauf es beim professionellen Verkauf Ihrer Immobilie ankommt.
Über 70 Jahre Marktpräsenz und tausende Vermittlungen sprechen für sich.
Für ein kostenfreies und informatives Beratungsgespräch stehen wir Ihnen jederzeit gerne zur Verfügung.
Grundriss
Erdgeschoss
>
>
Dachgeschoss
>
>
Adresse
26689 Apen
Interessante Orte
Preis- und Lageinformationen
Preistrend für Bestandsimmobilien in Apen