Zum Hauptinhalt springen
1/2
2/2

An alle Bauträger , Grundstück mit fertigem Bebauungsplan für 16 Wohneinheiten in Pfungst

Ringstr. 41, 64319 Pfungstadt
Auf Karte anzeigen
Logo ImmoScout24 Logo ImmoScout24
PDF Finanzierungszertifikat

Finanzierungszertifikat

In nur zwei Minuten zu Ihrem persönlichen Finanzierungszertifkat.

  • Zur Vorlage beim Makler oder Verkäufer
  • Vorteile gegenüber anderen Kaufinteressenten
  • Kostenlos und unverbindlich
Finanzierungszertifikat anfragen

Infos

Haustyp Mehrfamilienhaus
Wohnfläche ca. 1.438 m2
Grundstücksfläche 1.450 m2
Zimmer 43
Anzahl Garage/Stellplatz 30

Kosten

Kaufpreis 1.199.000 €
Provision 5,95 % inkl.MwSt
Nach Abschluss eines notariellen Kaufvertrags wird eine Käuferprovision in Höhe von 5,95 % des Kaufpreises inkl. 19 % MwSt. fällig

Finanzierungsrechner:

Kaufpreis: 600.000 €

Eigenkapital: 600.000 €
Monatliche Rate 0 €
Effektiver Jahreszins 0 %
Sollzinsbindung 10 Jahre

Beschreibung des Objekts

                Das Grundstück ist im Herzen von Pfungstadt.
Auf dem Grundstück ist noch eine große Halle aus Holz . Ideal für Landwirte oder Pferdebesitzer .
16 Wohneinheiten von 1-4 Zimmer mit und ohne Balkon oder Terrasse .
24 Tiefgaragenplätze und 6 außen Parkplätze .
Grundrisse können gerne eingesehen werden.
            

Weitere Dokumente

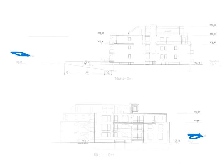
Ansichten Nord Ost
Ansichten Nord Ost
Ansichten Nord Ost
Nord-Ost Süd-Ost DIN A1 Neu
Nord-West Süd-West DIN A1

Adresse

Ringstr. 41, 64319 Pfungstadt

Interessante Orte

Bäckereien
Schulen
Ärzte

Preis- und Lageinformationen

Preistrend für Bestandsimmobilien in Pfungstadt
Sept. 2022 Sept. 2023 Sept. 2024 Sept. 2025 3.934,24 €/m² 3.641,37 €/m² -7,44 % -2,51 %

Dieser Zeitraum ist nur für eingeloggte User sichtbar.

Jetzt einloggen

Ansprechpartner