Herzlich willkommen in Ihrem neuen Zuhause, das speziell für Familien und herzliche Menschen gestaltet wurde! Dieses großzügige Haus bietet nicht nur ausreichend Platz für Ihre Lieben, sondern auch eine warme und einladende Atmosphäre.
Im Erdgeschoss erwartet Sie ein geräumiges Wohnzimmer mit großen Fenstern, die viel Tageslicht hereinlassen. Die offene Küche bildet das Herz des Hauses und ist ideal für das gesellige Beisammensein. Das Esszimmer bietet Platz für gemeinsame Mahlzeiten und Feierlichkeiten.
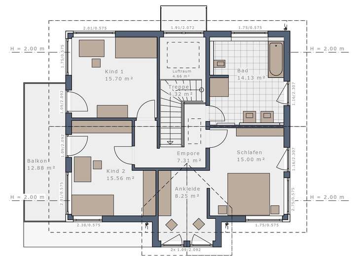
Im Obergeschoss finden Sie die Schlafzimmer, darunter ein Hauptschlafzimmer mit eigenem Bad und begehbarem Kleiderschrank, sowie weitere Zimmer für Kinder oder Gäste. Der Garten ist ein Paradies für Aktivitäten im Freien.
Wenn Sie auf der Suche nach einem Zuhause sind, das mehr als nur vier Wände bietet – ein echtes Familienheim in einer herzlichen Nachbarschaft – könnte dieses Ihr perfektes Eigenheim sein. Kontaktieren Sie uns noch heute, um eine Besichtigung zu vereinbaren!
Heimat für Herz und Seele
39164 Seehausen
Die vollständige Adresse der Immobilie erhalten Sie vom Anbieter.
Auf Karte anzeigen
Die vollständige Adresse der Immobilie erhalten Sie vom Anbieter.
Finanzierungszertifikat
In nur zwei Minuten zu Ihrem persönlichen Finanzierungszertifkat.
Infos
| Haustyp | Einfamilienhaus |
|---|---|
| Wohnfläche ca. | 166 m2 |
| Nutzfläche | 0 m2 |
| Grundstücksfläche | 650 m2 |
| Zimmer | 5 |
| Schlafzimmer | 3 |
| Badezimmer | 1 |
| Anzahl Garage/Stellplatz | 1 |
Kosten
| Kaufpreis |
470.131 € |
|---|---|
| Provision | Nein |
Finanzierungsrechner:
Kaufpreis:
600.000 €
Eigenkapital:
600.000 €
Monatliche Rate
0 €
Effektiver Jahreszins
0 %
Sollzinsbindung
10 Jahre
Bausubstanz & Energieausweis
| Baujahr | 2026 |
|---|---|
| Bauphase | Haus in Planung (projektiert) |
| Qualität der Austattung | Gehoben |
| Heizungsart | Wärmepumpe |
Beschreibung des Objekts
Ausstattung
Neben kurzen Bauzeiten, innovativer Haustechnik, attraktiver Architektur und hochwertiger Manufaktur-Qualität bietet Ihnen das angebotene Schwabenhaus im “Green-Edition” All-Inclusive-Paket folgende Mehr-Werte:
- Bodenplatte inkl. Effizienzhaus 55 Perimeter-Dämmung unterhalb der Bodenplatte sowie stirnseitig
- Klima-Komfort-Bauweise für das Effizienzhaus 55
- Zimmermannsmäßiges Pfettendach
- Photovoltaik-Vorbereitung für die Ausführung eines Photovoltaik-Systems
- Komplette Elektro-, Sanitär- und Heizungs-Installation inkl. Grundinstallation für das Schwabenhaus auf Schwabenhaus-Bodenplatte bzw. -Keller*
- Zukunftsweisende Elektro-Installation*
- Abgeschirmte Lichtleitungen für moderne, störungsfreie Beleuchtung und Lichtszenarien
- Rollläden im Erd- und Obergeschoss Ihres Schwabenhauses
- Doppel-Wärmepumpe Eco* für Heizen, Kühlen, Lüften, Luftreinigung und Warmwasser
- Schwimmender Estrich mit Wärmedämmung*
- Blower-Door Test zur Überprüfung der Luftwechselrate*
- Klima-Komfort-Außenwand mit über 200 Putzfarben zur Auswahl
- Hochwertige, mehrschichtige Holz-Haustür in vielfältigen Design-Lösungen, mit Sicherheitsschließzylinder, 5-fach- Sicherheits-Verriegelung und 3-Scheiben-Wärmeschutzverglasung
- Kunststoff-Fenster mit 3-Scheiben- Wärmeschutzverglasung
- Dachflächenfenster mit Kipp- und Schwingfunktion sowie elektrischen Rollläden*, wenn laut Grundriss enthalten
- Außenfensterbänke aus Naturstein
- Innenfensterbänke aus Kunst- oder Naturstein*
- Massiv-Vollholz-Treppe
- Protect Versicherungs-Paket mit Wohngebäude-Versicherung inkl. Elementarschutz, Haus- und Wohnungs-Schutzbrief, Bauleistungs-Versicherung und Bauherren-Haftpflichtversicherung sowie Job-Protect Versicherungs-Paket
- 10 sowie 30 Jahre Gewährleistung gemäß Definition in der Schwabenhaus Bau- und Leistungsbeschreibung
*Ab Ausbaustufe "Fast-Vollendet"
¹Beim Effizienzhaus 40 Kühlung nur in Verbindung mit optionaler PV-Anlage.
Die aufgeführten Mehr-Werte und Leistungsinhalte beziehen sich ausschließlich auf das in der Schwabenhaus Bau- und Leistungsbeschreibung (BLB) beschriebene Technologie + Komfort-Paket "Green -Edition". Die Mehr-Werte und Leistungsinhalte anderer Schwabenhaus Bau- und Leistungsbeschreibungen bzw. Technologie + Komfort-Pakete können hiervon abweichen.
Lage
Das Grundstück befindet sich in einer ruhigen und dennoch zentral gelegenen Wohngegend in der Ortschaft Wanzleben / Seehausen im Landkreis Börde. Die Umgebung bietet eine ideale Mischung aus ländlicher Ruhe und guter Anbindung an infrastrukturelle Einrichtungen und größere Städte.
Einkaufsmöglichkeiten für den täglichen Bedarf sind in Wanzleben selbst vorhanden. Mehrere Supermärkte, ein Discounter sowie diverse Fachgeschäfte bieten eine breite Auswahl an Produkten und Dienstleistungen. Zusätzlich sind Apotheken, ein Baumarkt und weitere kleinere Einzelhandelsgeschäfte im Ort zu finden, sodass den Bewohnern alles Notwendige für den Alltag zur Verfügung steht.
Die Anbindung an den öffentlichen Personennahverkehr (ÖPNV) ist gut. In Wanzleben selbst befinden sich mehrere Bushaltestellen, die regelmäßige Verbindungen zu umliegenden Orten und Städten gewährleisten. Die nächstgelegene Bahnstation ist ebenfalls gut erreichbar, sodass die Bewohner schnell in die größeren Städte der Region gelangen können. Besonders hervorzuheben ist die Nähe zur Landeshauptstadt Magdeburg, die in nur etwa 20 Minuten mit dem Auto oder dem Zug erreicht werden kann. Dadurch bietet sich eine ideale Kombination aus ländlichem Wohnen und urbaner Erreichbarkeit.
Für die junge Familie ist auch die Nähe zu Schulen ein wichtiger Aspekt. In Wanzleben gibt es eine Grundschule und eine weiterführende Schule, sodass der Schulweg für Kinder vor Ort gut organisiert werden kann. Weitere Bildungseinrichtungen sind in den benachbarten Städten ebenfalls schnell zu erreichen.
In Bezug auf Freizeitmöglichkeiten bietet die Umgebung zahlreiche Optionen. Direkt vor Ort gibt es Sporteinrichtungen, die für aktive Freizeitgestaltung genutzt werden können. Ein Sportplatz sowie ein Sportverein ermöglichen sowohl Freizeit- als auch Leistungssport. Für Wander- und Naturfreunde ist die Umgebung von Wanzleben ebenfalls sehr reizvoll, da sich zahlreiche Wald- und Naturgebiete in unmittelbarer Nähe befinden. Der nahe gelegene Elbdeich bietet sich für ausgedehnte Spaziergänge oder Radtouren an.
Die Anbindung an größere Städte wie Magdeburg und Halberstadt eröffnet zahlreiche Möglichkeiten für kulturelle Aktivitäten, Shopping und berufliche Entfaltung. Magdeburg, nur eine kurze Fahrt entfernt, bietet eine Vielzahl an Veranstaltungen, Museen, Theater, Kinos sowie ein breites gastronomisches Angebot. Darüber hinaus sind in der Landeshauptstadt sämtliche Universitäten, Hochschulen und große Unternehmen ansässig, was den Standort auch für Pendler und Berufspendler besonders attraktiv macht.
Insgesamt bietet das Grundstück in Wanzleben eine perfekte Kombination aus ländlichem Wohnen und der Nähe zu urbanen Annehmlichkeiten. Es eignet sich sowohl für Familien als auch für Berufspendler, die das ruhige Leben in einer freundlichen Gemeinde suchen, aber gleichzeitig die Vorteile einer Großstadt in greifbarer Nähe wissen möchten.
Sonstige Angaben
Vereinbaren Sie einen persönlichen Beratungstermin, um über Ihren Haustraum und das angebotene Objekt zu sprechen.
Bitte beachten Sie, dass die dargestellten Bilder und Grundrisse nur beispielhaft sind und unter Umständen Sonderbauteile enthalten, die nicht im aufgerufenen Preis inkludiert sind.
Haben Sie außerdem Verständnis dafür, dass erst nach dem persönlichen Gespräch weitere Details zu dem angebotenen Grundstück bekanntgegeben werden und dass nur vollständige Anfragen bearbeitet werden können.
Anbauteile, Carport, Garage und Keller können Extras sein, die als Sonderausstattung angeboten werden. Abbildungen, Grundrisse und Flächenangaben sind beispielhaft und können Extras zeigen. Flächenangaben nach DIN 277.
Profitieren Sie jetzt von der Schwabenhaus Online Beratung und verwirklichen Sie Ihr Traumhaus https://www.schwabenhaus.de/anmeldung-hausbau-beratung-online/
Grundriss
Grundriss Erdgeschoss
>
>
Grundriss Obergeschoss
>
>
Adresse
39164 Seehausen
Interessante Orte
Preis- und Lageinformationen
Preistrend für Bestandsimmobilien in Seehausen