Herzlich willkommen in Ihrem neuen Zuhause, das speziell für Familien und herzliche Menschen gestaltet wurde! Dieses großzügige Haus bietet nicht nur ausreichend Platz für Ihre Lieben, sondern auch eine warme und einladende Atmosphäre.
Im Erdgeschoss erwartet Sie ein geräumiges Wohnzimmer mit großen Fenstern, die viel Tageslicht hereinlassen. Die offene Küche bildet das Herz des Hauses und ist ideal für das gesellige Beisammensein. Das Esszimmer bietet Platz für gemeinsame Mahlzeiten und Feierlichkeiten.
Im Obergeschoss finden Sie die Schlafzimmer, darunter ein Hauptschlafzimmer mit eigenem Bad und begehbarem Kleiderschrank, sowie weitere Zimmer für Kinder oder Gäste. Der Garten ist ein Paradies für Aktivitäten im Freien.
Wenn Sie auf der Suche nach einem Zuhause sind, das mehr als nur vier Wände bietet – ein echtes Familienheim in einer herzlichen Nachbarschaft – könnte dieses Ihr perfektes Eigenheim sein. Kontaktieren Sie uns noch heute, um eine Besichtigung zu vereinbaren!
Heimat für Herz und Seele
38486 Apenburg
Die vollständige Adresse der Immobilie erhalten Sie vom Anbieter.
Auf Karte anzeigen
Die vollständige Adresse der Immobilie erhalten Sie vom Anbieter.
Finanzierungszertifikat
In nur zwei Minuten zu Ihrem persönlichen Finanzierungszertifkat.
Infos
| Haustyp | Einfamilienhaus |
|---|---|
| Wohnfläche ca. | 154 m2 |
| Nutzfläche | 0 m2 |
| Grundstücksfläche | 600 m2 |
| Zimmer | 5 |
| Schlafzimmer | 3 |
| Badezimmer | 1 |
| Anzahl Garage/Stellplatz | 1 |
Kosten
| Kaufpreis |
458.287 € |
|---|---|
| Provision | Nein |
Finanzierungsrechner:
Kaufpreis:
600.000 €
Eigenkapital:
600.000 €
Monatliche Rate
0 €
Effektiver Jahreszins
0 %
Sollzinsbindung
10 Jahre
Bausubstanz & Energieausweis
| Baujahr | 2026 |
|---|---|
| Bauphase | Haus in Planung (projektiert) |
| Qualität der Austattung | Gehoben |
| Heizungsart | Wärmepumpe |
Beschreibung des Objekts
Ausstattung
Neben kurzen Bauzeiten, innovativer Haustechnik, attraktiver Architektur und hochwertiger Manufaktur-Qualität bietet Ihnen das angebotene Schwabenhaus im “Green-Edition” All-Inclusive-Paket folgende Mehr-Werte:
- Bodenplatte inkl. Effizienzhaus 55 Perimeter-Dämmung unterhalb der Bodenplatte sowie stirnseitig
- Klima-Komfort-Bauweise für das Effizienzhaus 55
- Zimmermannsmäßiges Pfettendach
- Photovoltaik-Vorbereitung für die Ausführung eines Photovoltaik-Systems
- Komplette Elektro-, Sanitär- und Heizungs-Installation inkl. Grundinstallation für das Schwabenhaus auf Schwabenhaus-Bodenplatte bzw. -Keller*
- Zukunftsweisende Elektro-Installation*
- Abgeschirmte Lichtleitungen für moderne, störungsfreie Beleuchtung und Lichtszenarien
- Rollläden im Erd- und Obergeschoss Ihres Schwabenhauses
- Doppel-Wärmepumpe Eco* für Heizen, Kühlen, Lüften, Luftreinigung und Warmwasser
- Schwimmender Estrich mit Wärmedämmung*
- Blower-Door Test zur Überprüfung der Luftwechselrate*
- Klima-Komfort-Außenwand mit über 200 Putzfarben zur Auswahl
- Hochwertige, mehrschichtige Holz-Haustür in vielfältigen Design-Lösungen, mit Sicherheitsschließzylinder, 5-fach- Sicherheits-Verriegelung und 3-Scheiben-Wärmeschutzverglasung
- Kunststoff-Fenster mit 3-Scheiben- Wärmeschutzverglasung
- Dachflächenfenster mit Kipp- und Schwingfunktion sowie elektrischen Rollläden*, wenn laut Grundriss enthalten
- Außenfensterbänke aus Naturstein
- Innenfensterbänke aus Kunst- oder Naturstein*
- Massiv-Vollholz-Treppe
- Protect Versicherungs-Paket mit Wohngebäude-Versicherung inkl. Elementarschutz, Haus- und Wohnungs-Schutzbrief, Bauleistungs-Versicherung und Bauherren-Haftpflichtversicherung sowie Job-Protect Versicherungs-Paket
- 10 sowie 30 Jahre Gewährleistung gemäß Definition in der Schwabenhaus Bau- und Leistungsbeschreibung
*Ab Ausbaustufe "Fast-Vollendet"
¹Beim Effizienzhaus 40 Kühlung nur in Verbindung mit optionaler PV-Anlage.
Die aufgeführten Mehr-Werte und Leistungsinhalte beziehen sich ausschließlich auf das in der Schwabenhaus Bau- und Leistungsbeschreibung (BLB) beschriebene Technologie + Komfort-Paket "Green -Edition". Die Mehr-Werte und Leistungsinhalte anderer Schwabenhaus Bau- und Leistungsbeschreibungen bzw. Technologie + Komfort-Pakete können hiervon abweichen.
Lage
Das Grundstück befindet sich in einer ruhigen und naturnahen Lage im ländlichen Raum, eingebettet in die malerische Umgebung der Altmark. Klötze ist eine kleine, charmante Stadt, die eine gute Anbindung an die umliegenden Städte sowie vielfältige Freizeitmöglichkeiten in unmittelbarer Nähe bietet. Die Region ist für ihre hohe Lebensqualität und ihren historischen Charme bekannt, mit einem klaren Fokus auf das Wohl der Bewohner und eine starke Gemeinschaft.
Einkaufsmöglichkeiten:
In Klötze selbst befinden sich mehrere Supermärkte und Fachgeschäfte, die für den täglichen Bedarf bestens ausgestattet sind. Hierzu gehören Discounter sowie Lebensmittelgeschäfte, die eine schnelle Erreichbarkeit bieten. Für größere Einkäufe oder eine größere Auswahl an Fachgeschäften bietet sich die ca. 20 Kilometer entfernte Stadt Salzwedel an, welche über ein breites Angebot an Einkaufszentren und spezialisierten Geschäften verfügt.
Öffentliche Verkehrsmittel:
Der öffentliche Nahverkehr in Klötze ist gut ausgebaut. Die Stadt ist über den Regionalverkehr mit benachbarten Städten und Gemeinden verbunden. Die nächstgelegene Bushaltestelle ist nur wenige Gehminuten entfernt und ermöglicht eine einfache Anbindung an den Rest der Region. Besonders hervorzuheben ist die gute Erreichbarkeit von Salzwedel, das durch den Busverkehr oder über die ca. 10 Kilometer entfernte Bahnstation problemlos zu erreichen ist. Darüber hinaus gibt es regelmäßige Verbindungen in größere Städte, wodurch eine bequeme Anreise zu weiter entfernten Zielen gewährleistet ist.
Schulen:
Für Familien mit schulpflichtigen Kindern bietet Klötze eine Auswahl an Schulen, darunter eine Grundschule sowie weiterführende Schulen im nahen Umfeld. Auch in Salzwedel gibt es eine Vielzahl an Schulen, sowohl im Bereich der Sekundarstufe als auch Berufsschulen, die gut mit öffentlichen Verkehrsmitteln erreichbar sind..
Freizeitmöglichkeiten:
Die Umgebung von Klötze bietet zahlreiche Freizeitmöglichkeiten, die sowohl für aktive Erholung als auch für ruhige Momente in der Natur geeignet sind. Direkt vor der Haustür lädt die reizvolle Altmark zur Erkundung ein, sei es bei Spaziergängen, Radtouren oder Ausflügen in den nahegelegenen Waldgebieten. Klötze selbst bietet zudem ein kleines Freizeitangebot, darunter ein Sportverein, ein Freibad und zahlreiche kulturelle Veranstaltungen. Auch in Salzwedel finden regelmäßig Veranstaltungen, Konzerte und ein Kino statt. Wer das kulturelle Angebot einer größeren Stadt sucht, erreicht die Städte Magdeburg und Braunschweig in etwa einer Stunde Fahrtzeit.
Nähe zu größeren Städten:
Die Lage des Grundstücks besticht durch die Nähe zu größeren Städten. Salzwedel ist in ca. 20 Minuten mit dem Auto erreichbar, während Magdeburg und Braunschweig etwa eine Stunde Fahrtzeit entfernt liegen. Diese Anbindung ermöglicht es, sowohl die ländliche Ruhe von Klötze zu genießen als auch die Angebote und Arbeitsmöglichkeiten der größeren Städte zu nutzen.
Sonstige Angaben
Vereinbaren Sie einen persönlichen Beratungstermin, um über Ihren Haustraum und das angebotene Objekt zu sprechen.
Bitte beachten Sie, dass die dargestellten Bilder und Grundrisse nur beispielhaft sind und unter Umständen Sonderbauteile enthalten, die nicht im aufgerufenen Preis inkludiert sind.
Haben Sie außerdem Verständnis dafür, dass erst nach dem persönlichen Gespräch weitere Details zu dem angebotenen Grundstück bekanntgegeben werden und dass nur vollständige Anfragen bearbeitet werden können.
Anbauteile, Carport, Garage und Keller können Extras sein, die als Sonderausstattung angeboten werden. Abbildungen, Grundrisse und Flächenangaben sind beispielhaft und können Extras zeigen. Flächenangaben nach DIN 277.
Profitieren Sie jetzt von der Schwabenhaus Online Beratung und verwirklichen Sie Ihr Traumhaus https://www.schwabenhaus.de/anmeldung-hausbau-beratung-online/
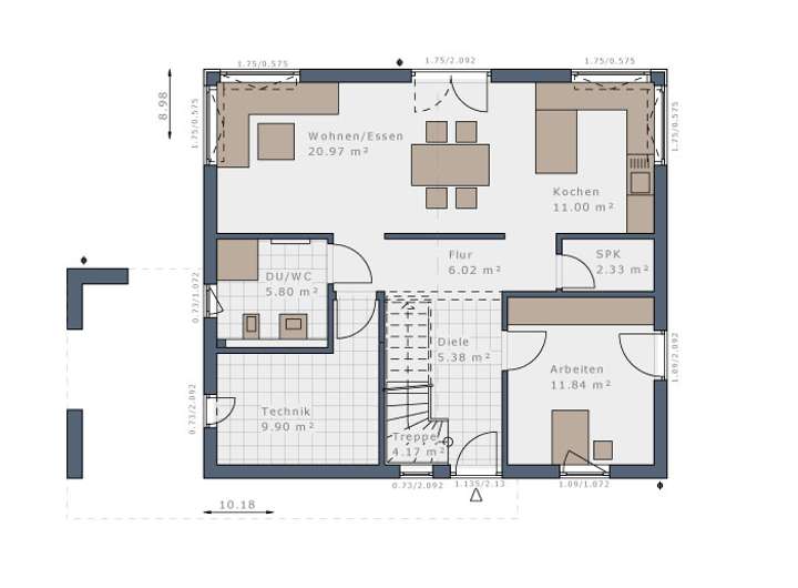
Grundriss
Erdgeschoss
>
>
Adresse
38486 Apenburg
Interessante Orte
Preis- und Lageinformationen
Preistrend für Bestandsimmobilien in Apenburg