Herzlich willkommen in Ihrem neuen Zuhause, das speziell für Familien und herzliche Menschen gestaltet wurde! Dieses großzügige Haus bietet nicht nur ausreichend Platz für Ihre Lieben, sondern auch eine warme und einladende Atmosphäre.
Im Erdgeschoss erwartet Sie ein geräumiges Wohnzimmer mit großen Fenstern, die viel Tageslicht hereinlassen. Die offene Küche bildet das Herz des Hauses und ist ideal für das gesellige Beisammensein. Das Esszimmer bietet Platz für gemeinsame Mahlzeiten und Feierlichkeiten.
Im Obergeschoss finden Sie die Schlafzimmer, darunter ein Hauptschlafzimmer mit eigenem Bad und begehbarem Kleiderschrank, sowie weitere Zimmer für Kinder oder Gäste. Der Garten ist ein Paradies für Aktivitäten im Freien.
Wenn Sie auf der Suche nach einem Zuhause sind, das mehr als nur vier Wände bietet – ein echtes Familienheim in einer herzlichen Nachbarschaft – könnte dieses Ihr perfektes Eigenheim sein. Kontaktieren Sie uns noch heute, um eine Besichtigung zu vereinbaren!
Kinderparadies – Ihr Zuhause
29413 Diesdorf
Die vollständige Adresse der Immobilie erhalten Sie vom Anbieter.
Auf Karte anzeigen
Die vollständige Adresse der Immobilie erhalten Sie vom Anbieter.
Finanzierungszertifikat
In nur zwei Minuten zu Ihrem persönlichen Finanzierungszertifkat.
Infos
| Haustyp | Einfamilienhaus |
|---|---|
| Wohnfläche ca. | 134 m2 |
| Nutzfläche | 0 m2 |
| Grundstücksfläche | 650 m2 |
| Zimmer | 5 |
| Schlafzimmer | 3 |
| Badezimmer | 1 |
| Anzahl Garage/Stellplatz | 1 |
Kosten
| Kaufpreis |
451.332 € |
|---|---|
| Provision | Nein |
Finanzierungsrechner:
Kaufpreis:
600.000 €
Eigenkapital:
600.000 €
Monatliche Rate
0 €
Effektiver Jahreszins
0 %
Sollzinsbindung
10 Jahre
Bausubstanz & Energieausweis
| Baujahr | 2026 |
|---|---|
| Bauphase | Haus in Planung (projektiert) |
| Qualität der Austattung | Gehoben |
| Heizungsart | Wärmepumpe |
Beschreibung des Objekts
Ausstattung
Neben kurzen Bauzeiten, innovativer Haustechnik, attraktiver Architektur und hochwertiger Manufaktur-Qualität bietet Ihnen das angebotene Schwabenhaus im “Green-Edition” All-Inclusive-Paket folgende Mehr-Werte:
- Bodenplatte inkl. Effizienzhaus 55 Perimeter-Dämmung unterhalb der Bodenplatte sowie stirnseitig
- Klima-Komfort-Bauweise für das Effizienzhaus 55
- Zimmermannsmäßiges Pfettendach
- Photovoltaik-Vorbereitung für die Ausführung eines Photovoltaik-Systems
- Komplette Elektro-, Sanitär- und Heizungs-Installation inkl. Grundinstallation für das Schwabenhaus auf Schwabenhaus-Bodenplatte bzw. -Keller*
- Zukunftsweisende Elektro-Installation*
- Abgeschirmte Lichtleitungen für moderne, störungsfreie Beleuchtung und Lichtszenarien
- Rollläden im Erd- und Obergeschoss Ihres Schwabenhauses
- Doppel-Wärmepumpe Eco* für Heizen, Kühlen, Lüften, Luftreinigung und Warmwasser
- Schwimmender Estrich mit Wärmedämmung*
- Blower-Door Test zur Überprüfung der Luftwechselrate*
- Klima-Komfort-Außenwand mit über 200 Putzfarben zur Auswahl
- Hochwertige, mehrschichtige Holz-Haustür in vielfältigen Design-Lösungen, mit Sicherheitsschließzylinder, 5-fach- Sicherheits-Verriegelung und 3-Scheiben-Wärmeschutzverglasung
- Kunststoff-Fenster mit 3-Scheiben- Wärmeschutzverglasung
- Dachflächenfenster mit Kipp- und Schwingfunktion sowie elektrischen Rollläden*, wenn laut Grundriss enthalten
- Außenfensterbänke aus Naturstein
- Innenfensterbänke aus Kunst- oder Naturstein*
- Massiv-Vollholz-Treppe
- Protect Versicherungs-Paket mit Wohngebäude-Versicherung inkl. Elementarschutz, Haus- und Wohnungs-Schutzbrief, Bauleistungs-Versicherung und Bauherren-Haftpflichtversicherung sowie Job-Protect Versicherungs-Paket
- 10 sowie 30 Jahre Gewährleistung gemäß Definition in der Schwabenhaus Bau- und Leistungsbeschreibung
*Ab Ausbaustufe "Fast-Vollendet"
¹Beim Effizienzhaus 40 Kühlung nur in Verbindung mit optionaler PV-Anlage.
Die aufgeführten Mehr-Werte und Leistungsinhalte beziehen sich ausschließlich auf das in der Schwabenhaus Bau- und Leistungsbeschreibung (BLB) beschriebene Technologie + Komfort-Paket "Green -Edition". Die Mehr-Werte und Leistungsinhalte anderer Schwabenhaus Bau- und Leistungsbeschreibungen bzw. Technologie + Komfort-Pakete können hiervon abweichen.
Lage
Das Grundstück befindet sich im charmanten Diedorf, einer idyllischen Gemeinde in der Lüneburger Heide, die aufgrund ihrer naturnahen Lage und guten Anbindung an größere Städte besonders beliebt ist. Die Umgebung zeichnet sich durch eine hohe Lebensqualität aus, die sowohl ruhiges Wohnen als auch eine ausgezeichnete Erreichbarkeit von wichtigen infrastrukturellen Einrichtungen bietet.
Die Anbindung an den öffentlichen Personennahverkehr (ÖPNV) ist durch die Nähe zu Diedorf hervorragend. Der nächstgelegene Bahnhof ist in wenigen Minuten erreichbar und bietet regelmäßige Verbindungen in Richtung größerer Städte der Region. Dies ermöglicht eine schnelle und unkomplizierte Anreise zu Arbeitsplätzen oder Freizeitmöglichkeiten in der Umgebung. Der ÖPNV in der Region ist gut ausgebaut, sodass auch ohne eigenes Fahrzeug eine hohe Mobilität gewährleistet ist.
In Bezug auf die Nahversorgung profitieren die Anwohner von einer guten Auswahl an Einkaufsmöglichkeiten. Supermärkte, Bäckereien und Einzelhandelsgeschäfte befinden sich in unmittelbarer Nähe und sind sowohl mit dem Auto als auch zu Fuß schnell erreichbar. Für den täglichen Bedarf ist somit gesorgt, und auch größere Einkaufszentren oder Fachmärkte lassen sich in benachbarten Städten innerhalb kurzer Zeit erreichen.
Für Familien mit Kindern bietet Diedorf eine gute Auswahl an Bildungs- und Freizeitangeboten. Es gibt Kindergärten, eine Grundschule sowie weiterführende Schulen in den umliegenden Gemeinden. Das Bildungsangebot ist somit auf die Bedürfnisse von Familien gut abgestimmt. Darüber hinaus sind auch diverse Freizeitmöglichkeiten vorhanden: Das Umland lädt zu Wanderungen, Radtouren und Ausflügen in die Natur ein, während sich auch Sportvereine und kulturelle Angebote in der Region finden lassen.
Die geografische Lage von Diedorf ermöglicht zudem eine schnelle Anbindung an größere Städte. Die Hansestadt Hamburg, ein regionales Zentrum für Wirtschaft, Kultur und Freizeit, ist mit dem Auto in etwa einer Stunde erreichbar. Auch die Städte Lüneburg und Uelzen sind gut zu erreichen und bieten eine breite Palette an zusätzlichen Freizeit-, Einkaufs- und Arbeitsmöglichkeiten.
Die Kombination aus einer ruhigen, naturnahen Lage und der Nähe zu größeren Städten sorgt für eine ideale Lebensqualität. Hier können Sie die Ruhe und den Charme der ländlichen Umgebung genießen, ohne auf die Annehmlichkeiten und die Infrastruktur größerer Städte verzichten zu müssen. Egal, ob für Berufspendler, Familien oder Naturfreunde – die Lage des Grundstücks bietet eine ausgezeichnete Grundlage für ein erfülltes Leben.
Sonstige Angaben
Vereinbaren Sie einen persönlichen Beratungstermin, um über Ihren Haustraum und das angebotene Objekt zu sprechen.
Bitte beachten Sie, dass die dargestellten Bilder und Grundrisse nur beispielhaft sind und unter Umständen Sonderbauteile enthalten, die nicht im aufgerufenen Preis inkludiert sind.
Haben Sie außerdem Verständnis dafür, dass erst nach dem persönlichen Gespräch weitere Details zu dem angebotenen Grundstück bekanntgegeben werden und dass nur vollständige Anfragen bearbeitet werden können.
Anbauteile, Carport, Garage und Keller können Extras sein, die als Sonderausstattung angeboten werden. Abbildungen, Grundrisse und Flächenangaben sind beispielhaft und können Extras zeigen. Flächenangaben nach DIN 277.
Profitieren Sie jetzt von der Schwabenhaus Online Beratung und verwirklichen Sie Ihr Traumhaus https://www.schwabenhaus.de/anmeldung-hausbau-beratung-online/
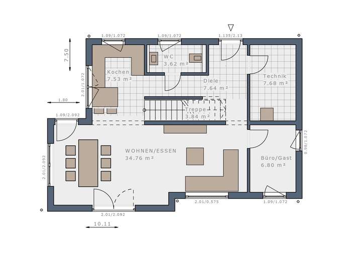
Grundriss
Grundriss Erdgeschoss
>
>
Grundriss Obergeschoss
>
>
Adresse
29413 Diesdorf
Interessante Orte
Preis- und Lageinformationen
Preistrend für Bestandsimmobilien in Diesdorf