Stadthaus im Senefelderquartier von Offenbach zu verkaufen mit acht Wohneinheiten, ca. 409 qm Wohnfläche und zusätzlichen ca. 65 qm Grundfläche im nicht ausgebauten Dachboden.
Das Haus ist Teil der Denkmalanlage Senefelder-Quartier. Für denkmalrelevante Sanierungskosten sind Denkmal-AfA-Abschreibungen möglich.
Das Haus liegt ruhig und zentral in fußläufiger Nähe zu Innenstadt, Bahnhof und Parkanlagen.
Im Innenhof gibt es eine Gartenfläche und einen Fahrradunterstand.
Die Wohnungen sind vermietet.
Die Jahresnettokaltmiete liegt aktuell bei 40.500 Euro (46.500 Euro ab 2026).
Stadthaus mit 8 WE, Offenbach Senefelderquartier, provisionsfrei
63069 Offenbach am Main
Die vollständige Adresse der Immobilie erhalten Sie vom Anbieter.
Auf Karte anzeigen
Die vollständige Adresse der Immobilie erhalten Sie vom Anbieter.
Finanzierungszertifikat
In nur zwei Minuten zu Ihrem persönlichen Finanzierungszertifkat.
Infos
| Haustyp | Mehrfamilienhaus |
|---|---|
| Etagenzahl | 5 |
| Wohnfläche ca. | 409 m2 |
| Nutzfläche | 120 m2 |
| Grundstücksfläche | 245 m2 |
| Zimmer | 18 |
| Schlafzimmer | 0 |
| Badezimmer | 0 |
| Anzahl Garage/Stellplatz | 0 |
Kosten
| Kaufpreis |
1.150.000 € |
|---|---|
| Provision | Nein |
Finanzierungsrechner:
Kaufpreis:
600.000 €
Eigenkapital:
600.000 €
Monatliche Rate
0 €
Effektiver Jahreszins
0 %
Sollzinsbindung
10 Jahre
Bausubstanz & Energieausweis
| Baujahr | 1905 |
|---|---|
| Bauphase | Haus fertig gestellt |
| Denkmalschutzobjekt | Ja |
| Heizungsart | Zentralheizung |
| Wesentliche Energieträger | Gas |
| Energieausweis | liegt vor |
| Energieausweistyp | Verbrauchsausweis |
| Energieverbrauchskennwert | 168,7 kWh/(m²*a) |
| Energieeffizienzklasse | F |
168,7
kWh/(m²*a)
Energieeffizienzklasse F
- A+
- A
- B
- C
- D
- E
- F
- G
- H
- 0
- 25
- 50
- 75
- 100
- 125
- 150
- 175
- 200
- 225
- >250
Beschreibung des Objekts
Ausstattung
Das Haus wurde 1905 in massiver Bauweise errichtet. Zur Straßenseite glänzt es mit historisch gegliederter Putzfassade. Die Hofseite besteht aus schlichtem Backstein-Sichtmauerwerk. Über dem Durchgang befindet sich noch ein niedriger Raum, der zur EG Wohnung gehört (historische Bezeichnung "Omnibus").
Beheizt wird das Gebäude mit einer modernen Gaszentralheizung.
Die vier Wohnungen im Erdgeschoss und in der ersten Etage wurden 2016 umfangreich saniert. Es wurden neue Bäder und Küchen eingebaut.
Das Haus ist voll unterkellert.
Lage
Innenstadtlage von Offenbach/ Bahnhof fußläufig in vier Minuten zu erreichen/ ruhige Straße/ optimal auch für Pendler/ die Frankfurter Innenstadt ist 9 km und der Frankfurter Flughafen 18 km entfernt/ Einkaufsmöglichkeiten/ Ärzte und Schulen sind fußläufig zu erreichen.
Offenbach und das Senefelderquartier wurden in den letzten Jahren ein immer beliebterer Wohnort.
Die Stadt hat eine gute ÖNV-Anbindung und ist ein guter Wirtschaftsstandort und hat eine Hochschule (HfG - Hochschule für Gestaltung).
Sonstige Angaben
Alle Angaben wurden sorgfältig und so vollständig wie möglich gemacht. Gleichwohl können Fehler nicht ausgeschlossen werden. Die Angaben in diesem Exposé erfolgen daher ohne jede Gewähr. Maßgeblich sind die im Kaufvertrag geschlossenen Vereinbarungen. Soweit die Pläne Maßangaben und Einrichtungen enthalten, wird auch für diese jegliche Haftung ausgeschlossen. Ebenso weisen wir darauf hin, dass die Pläne nicht maßstabsgetreu sind. Besichtigungen sind nur nach vorheriger Terminabsprache möglich. Der Verkauf erfolgt provisionsfrei vom Eigentümer.
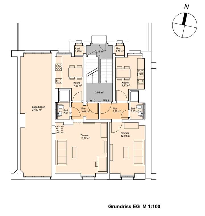
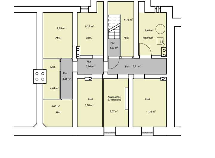
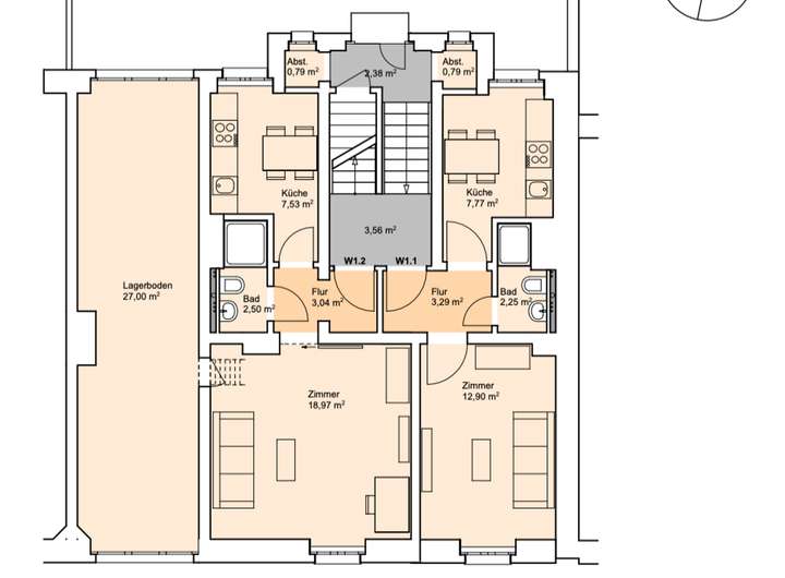
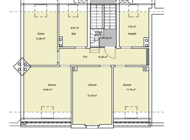
Grundriss
Grundriss EG.png
>
>
Grundriss 1. OG.png
>
>
Grundriss 3. OG.png
>
>
Grundriss DG.png
>
>
Grundriss KG.png
>
>
Grundriss Bauakte
>
>
Adresse
63069 Offenbach am Main
Interessante Orte
Preis- und Lageinformationen
Preistrend für Bestandsimmobilien in Stadtmitte