BUILD YOUR WAY. OWN YOUR SPACE.
Dein Traum vom Eigenheim beginnt hier. White&Black bringt dich dorthin – einfach, erschwinglich, zukunftssicher.
THE RIGHT MATCH.
Finanzierung, Grundstück, Haus – wir bringen alles zusammen.
FEELS LIKE HOME.
Dein Stil, dein Design, dein Zuhause.
MORE HOME. LESS WORRY.
Klare Prozesse, smarte Lösungen, stressfreier Hausbau.
SIMPLE IST THE NEW LUXURY.
Durchdachte Architektur, hochwertige Ausstattung, flexibles Design.
Es gibt nie den perfekten Moment – aber den richtigen Schritt. Warum warten?
START YOUR HOME JOURNEY TODAY.
Dein Zuhause, so individuell wie du.
38486 Kunrau
Die vollständige Adresse der Immobilie erhalten Sie vom Anbieter.
Auf Karte anzeigen
Die vollständige Adresse der Immobilie erhalten Sie vom Anbieter.
Finanzierungszertifikat
In nur zwei Minuten zu Ihrem persönlichen Finanzierungszertifkat.
Infos
| Haustyp | Einfamilienhaus |
|---|---|
| Wohnfläche ca. | 140 m2 |
| Nutzfläche | 0 m2 |
| Grundstücksfläche | 1.212 m2 |
| Zimmer | 4 |
| Schlafzimmer | 3 |
| Badezimmer | 1 |
| Anzahl Garage/Stellplatz | 0 |
Kosten
| Kaufpreis |
330.337 € |
|---|---|
| Provision | Nein |
Finanzierungsrechner:
Kaufpreis:
600.000 €
Eigenkapital:
600.000 €
Monatliche Rate
0 €
Effektiver Jahreszins
0 %
Sollzinsbindung
10 Jahre
Bausubstanz & Energieausweis
| Baujahr | 2026 |
|---|---|
| Bauphase | Haus in Planung (projektiert) |
| Qualität der Austattung | Gehoben |
| Heizungsart | Wärmepumpe |
Beschreibung des Objekts
Ausstattung
THINK FAST-VOLLENDET PLUS – Bereit für dein Finish.
- Technik, Heizung & Sanitärinstallation sind drin – du kümmerst dich nur um den Feinschliff
- Das Plus mit hochwertigen Sanitärobjekten und Fliesen
- Streichen, Böden verlegen, Türen setzen – du machst, was du willst
- Kein Stress mit Rohbau oder Technik – Fokus nur noch auf den Feinschliff
- Smartes Sparpotenzial – fertig gebaut, individuell finalisiert
- Ideal für Macher mit Anspruch – hochwertige Basis für deinen Stil
Für alle, die mitgestalten wollen – ohne auf Komfort zu verzichten.
Lage
Lagebeschreibung – 38486 Kunrau
Das Grundstück befindet sich in der idyllischen Ortschaft Kunrau, einem Ortsteil der Stadt Klötze im Altmarkkreis Salzwedel (Sachsen-Anhalt). Eingebettet in eine naturnahe Umgebung mit Wiesen, Wäldern und kleinen Gewässern bietet der Standort eine ruhige und familienfreundliche Atmosphäre – ideal für Menschen, die das Landleben schätzen, aber dennoch eine gute Anbindung an die Infrastruktur nicht missen möchten.
Einkaufsmöglichkeiten befinden sich im nahegelegenen Klötze (ca. 10 Autominuten entfernt). Dort stehen diverse Supermärkte, Bäckereien, Apotheken und Drogerien zur Verfügung. Für den täglichen Bedarf ist also bestens gesorgt. Darüber hinaus ergänzen Wochenmärkte und kleinere regionale Anbieter das Angebot um frische, lokale Produkte.
Öffentlicher Personennahverkehr (ÖPNV): Kunrau ist an das regionale Busnetz angeschlossen, welches regelmäßige Verbindungen in die umliegenden Orte sowie nach Klötze, Gardelegen und Salzwedel bietet. Von dort bestehen weiterführende Bahnverbindungen in Richtung Wolfsburg, Magdeburg oder Hannover. So bleibt man auch ohne eigenes Auto mobil.
Bildungseinrichtungen: In Klötze sowie den angrenzenden Ortschaften befinden sich Kindertagesstätten, Grundschulen sowie weiterführende Schulen (Sekundarschule und Gymnasium). Ein Schulbusverkehr ist in der Region gut organisiert und stellt eine zuverlässige Anbindung sicher.
Freizeit und Erholung: Die Umgebung lädt zu vielfältigen Freizeitaktivitäten ein – ob Wandern, Radfahren oder Ausflüge in die umliegenden Wälder und Naturschutzgebiete. Das Schloss Kunrau mit seinem Schlosspark und die nahen Waldgebiete sind beliebte Naherholungsziele. Auch Sportvereine und kulturelle Einrichtungen in Klötze und Umgebung bieten attraktive Freizeitmöglichkeiten für alle Altersgruppen.
Verkehrsanbindung und Nähe zu größeren Städten: Kunrau liegt verkehrsgünstig zwischen Wolfsburg (ca. 35 km entfernt) und Salzwedel (ca. 25 km). Die Nähe zu Wolfsburg – dem wirtschaftlichen Zentrum der Region – macht den Ort besonders interessant für Berufspendler. In rund 30–40 Minuten erreicht man die Innenstadt von Wolfsburg mit dem Auto, wo auch ICE-Anbindungen und ein umfassendes Kultur- und Freizeitangebot zur Verfügung stehen.
Insgesamt überzeugt die Lage durch eine gelungene Kombination aus ländlicher Ruhe und guter Anbindung an die städtische Infrastruktur – ideal für Familien, Ruhesuchende und Berufspendler gleichermaßen.
Sonstige Angaben
Das Haus ist projektiert inkl. Grundstück. Das Grundstück wird in Kommission angeboten bzw. direkt von Dritten verkauft. Daher kann der genannte Preis aufgrund aktueller Marktsituationen schwanken.
Die Bauabwicklung kann kurzfristig nach Grundstückserwerb begonnen werden. Bilder zeigen möglicherweise Sonderausstattungen, die auf Wunsch gegen Aufspreis zusätzlich angeboten werden können.
Erhalte in deinem persönlichen Beratungsgespräch kostenlos alle wichtigen Informationen zu diesem Projekt, insbesondere: Lage und Bebauungsmöglichkeiten des Baugrundstücks, Baukosten-Kalkulation, Finanzierungs- u. Förderungsmöglichkeiten sowie detaillierte Architektur- uund Grundrissplanung.
Wir freuen uns darauf, dich beraten zu dürfen!
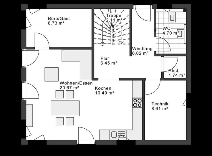
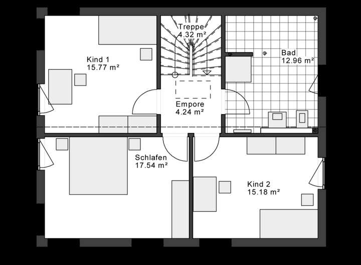
Grundriss
Grundriss EG
>
>
Grundriss OG
>
>
Adresse
38486 Kunrau
Interessante Orte
Preis- und Lageinformationen
Preistrend für Bestandsimmobilien in Kunrau